查看完整案例

收藏

下载
苏州河缓缓流过窗前,时间在室内缓步流转,他们在这片水岸边,把日子过得简静又从容。
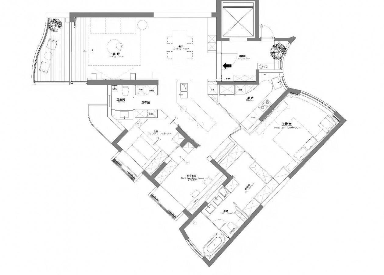
独立入户电梯厅被打造成温室般的柔和空间,天花做了格栅软膜,搭配天然石材与绿植,清爽自然。
入户门内侧同样以石材与黄铜包裹装饰,隐约流露出斯卡帕式的细腻韵味。
整体的客厅通过分段墙面划分,节奏自然而富有层次;
餐厅到阳台的圆弧顶,巧妙拉伸了空间的纵深。
墙面上的洞石背景板巧妙区分了餐厅与客厅,
延续的黄铜线条又为空间带来整体的连贯感。
墨绿色绒面沙发质感低调且饱满,
搭配浅米色地毯,打造出柔和且层次丰富的起居氛围。
阳台向内延伸的台阶,拓展了阳台面积,
室内外与苏州河风光无缝融合,更显通透。
镜面装饰画承担了巧妙借景的作用,
把苏州河的景致折射进来,丰富了室内的视角与层次。
原本通往卧室的走廊区域设置了一个异形岛台,兼具功能与设计感,
半透的格栅移门也让光线自然流动,保持明亮通透。
这组近5米长的转角岛台,将餐厅、厨房、茶室与家政区巧妙串联;
在回环动线中,各个空间的使用也更顺手高效。
岛台一侧延伸出20cm台面,作为吧台使用,
无论是夜晚小酌,还是清晨简餐,都多了几分惬意。
原本拐角繁复的异形厨房,在圆弧橱柜的修饰下变得规整,
白色橱柜与绿色石材的搭配,也延续了空间的整体色调。
格栅门后的榻榻米茶室透出一丝日式气息,麻料与木色相映,
氛围宁静舒缓,是午后静享一杯茶的理想角落。
榻榻米下方与左侧设计了丰富的收纳空间,
降下升降台后亦可灵活转换成一间次卧,满足多样生活需求。
茶室与书房以移门相隔,平时敞开保持空间连通,
关上后则成为两个独立的房间,满足不同生活需求。
灰色棉麻和黑色木板的搭配,赋予卧室墙面温暖质感,
打造一个舒适且宜人的休憩空间。
在这个通透主卫里,绿色石材搭配复古黑白花砖,
碰撞出沉稳而精致的质感,可以让人卸下疲惫,享受沐浴时光。
客服
消息
收藏
下载
最近



































