查看完整案例

收藏

下载
KiKi建筑设计事务所:Snow Peak Cafe 坐落苏州无界美罗小奢中心一栋两层红砖建筑内,毗邻拙政园北侧。园区由22栋始建于20世纪50年代的老仓库改造而成,整齐的红砖厂房与错落的园林景致,交织出工业遗存与自然意趣共存的空间基调。设计师顺应这一在地语境,从空间营造到材料选择,皆围绕品牌所倡导的“野游人生”展开,诠释其自然与自由的精神内核。
KiKi ARCHi: Snow Peak Cafe is nestled within a two-story red brick building in MATRO Luxury Centre in Suzhou, adjacent to the northern edge of the Humble Administrator’s Garden. Once 22 red-brick warehouses built in the 1950s, the site has been reimagined into the classical gardens of Suzhou, where architectural order meets the organic flow of nature — a quiet balance of industrial memory and natural ease. Responding to this unique urban fabric, the architect grounded the design in Snow Peak’s core philosophy of “Embrace Your Nature,” using spatial strategy and material articulation to interpret the essence of nature and freedom.
秉持着 “不过度干预+尊重在地性”的设计原则,设计师关佳彦保留原址的红砖肌理与空间框架,以含蓄而富有张力的手法,将在地元素转译为新的形式语言,打造出符合品牌需求的功能空间。同时,通过融入品牌对精致工艺与自然共生的思考,让历史印记在新形态中延续,最终呈现为一个通透灵动、蕴藏自然气息的留白之所。
Adhering to a principle of minimal intervention and deep respect for site-specific context, architect Yoshihiko Seki preserved the original red-brick textures and structural framework of the building. With a restrained yet expressive approach, local elements were reinterpreted into a new formal language, shaping this functional space aligned with the brand’s identity. By embedding Snow Peak’s pursuit of refined craftsmanship and symbiosis with nature, the design allows historical traces to persist within a renewed spatial narrative, resulting in an open, fluid environment imbued with natural sensibility and intentional calm.
▽改造更新前的红砖建筑场地原貌
▽设计保留原址的红砖肌理与空间框架,以含蓄而富有张力的手法,将在地元素转译为新的形式语言
步入室内,一层中央的多功能吧台成为视觉焦点。它不仅承担品牌展示、手冲咖啡制作、器具陈列与收银等功能,更是空间视觉和动线的核心。吧台主体由条状木材拼搭而成,呼应红砖叠砌的构造逻辑,表面覆盖原色钢板,形成对比鲜明的质感碰撞。钢板从吧台延展至微水泥台阶,构成连续的展示界面,营造出悬浮般的呼吸感和轻盈感。同样的材质对话在天花与座位区也得以延续,与整体环境浑然一体,细节与氛围相得益彰。
Upon entering the space, a multifunctional bar at the center of the ground floor immediately draws the eye. Serving as the core for brand display, pour-over coffee preparation, display, and cashier functions, it also anchors the spatial flow and visual focus. Constructed from layered timber strips that echo the structural logic of stacked red bricks, the bar is topped with a steel panel, creating a striking material contrast. The steel surface extends seamlessly onto micro-cement steps, forming a continuous display interface that conveys a sense of levitation and lightness. This dialogue of materials continues across the ceiling and seating area, bringing cohesion between spatial details and the surrounding atmosphere.
▽一层中央的多功能吧台成为视觉焦点
微水泥阶梯由地面自然生长,嵌合于吧台一侧,并向上延展至二层,以简洁形态串联起垂直空间。它既作为通行路径,又承载展示功能,将空间高差转化为内在节奏,使楼梯不再是割裂空间的单一构件,而是推动空间递进的结构载体。
The micro-cement staircase appears to grow organically from the ground, seamlessly integrated alongside the bar and extending upward to the second floor. With a minimal and restrained form, it connects the vertical space in a fluid, understated gesture. More than just a circulation path, the staircase also serves as a display element, transforming spatial elevation into an internal rhythm. It is not a separate structural insertion, but a spatial device that drives the continuity and progression of the space.
▽微水泥阶梯以简洁形态串联起垂直空间
来到二层,设计进一步回归克制与纯粹。设计师以轻巧而精准的方式介入,利用回收红砖铺设阶梯式坐席,并以条状木材隐性区分落座边界。置身其中,仿若栖身自然原境,又不失舒适度与精致感。原有木梁被涂白处理,弱化红砖与原木的厚重感,为“野游人生”注入在地色彩,唤起人们对自然旅途的想象。
On the second floor, the design embraces a more restrained and purified expression. The intervention is light yet deliberate—stepped seating made of reclaimed red bricks anchors the space, while slender timber strips subtly delineate seating boundaries. The result evokes a sense of dwelling within a natural terrain, balancing raw authenticity with comfort and refinement. Existing timber beams are painted white to soften the visual weight of the brick and wood, infusing the space with a local hue of the “Embrace Your Nature” and stirring the imagination of a journey into nature.
▽二层落客区利用回收红砖铺设阶梯式坐席,并以条状木材隐性区分落座边界
天然实木、斑驳红砖与精制钢板、微水泥并置使用,粗砺的地域肌理与细腻的现代工艺彼此交融。这种对比并非生硬拼接,而是通过材料语言的互补,传递出内在的协作共生关系——原始材料回应场所自然肌理,工艺细节则彰显品牌对品质的执着。
Natural timber, weathered red brick, refined steel panels, and micro-cement are applied throughout the space, where coarse regional textures meet the precision of modern craftsmanship. The contrast is not a clash but a dialogue, in which material languages complement one another. Raw materials respond to the site’s natural fabric, while crafted details reflect the brand’s uncompromising pursuit of quality, expressing a quiet yet powerful sense of coexistence and mutual reinforcement.
▽原始材料回应场所自然肌理
本项目回应并延续Snow Peak“不过度干涉自然”的理念,在“从不模仿”的品牌精神之下,探索自由而极致的空间表达。设计师通过“极简设计”的路径,尊重场地本真,塑造出独属Snow Peak 的户外生活美学——既有自然的粗犷,也具备日常的细腻,让人在城市中亦能感知野外的诗意。
This project responds to and extends Snow Peak’s philosophy of “minimal interference with nature,” exploring a spatial expression that is both free and refined. Through minimalist design, the architect honors the site’s original character and gives shape to Snow Peak’s unique outdoor living aesthetic—one that balances the rawness of nature with the subtlety of daily life, allowing even urban dwellers to sense the poetry of the wild.
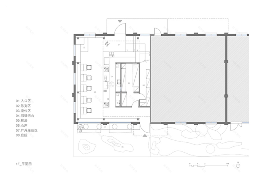
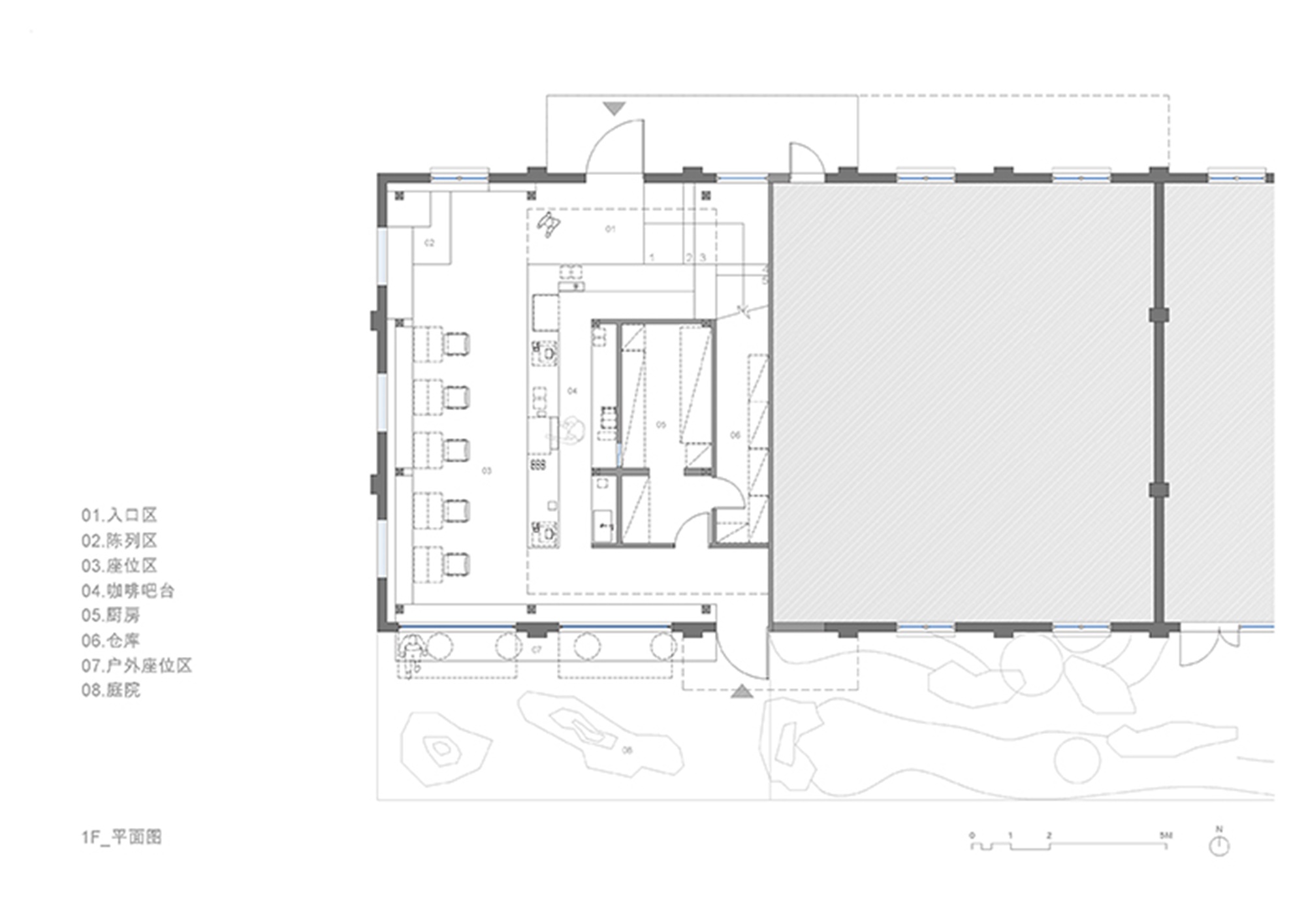
▽1层平面图
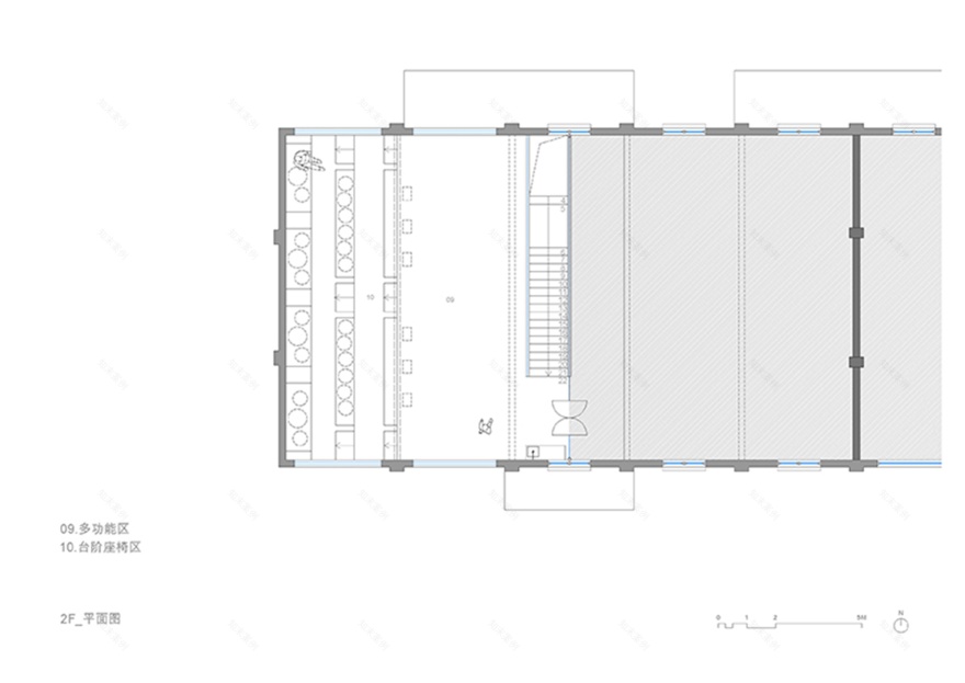
▽2层平面图
▽剖面图
项目名称:Snow Peak Cafe 苏州美罗小奢中心店
项目位置:苏州,江苏,中国
项目类型:餐饮空间,零售空间
设计公司:KiKi建筑设计事务所
主持设计师:关佳彦
设计团队:穐吉彩加,柳生田昂仁
项目面积:200㎡
完成日期:2024.10
项目摄影:锐景摄影
Project Name: Snow Peak Cafe, MATRO Luxury Centre, Suzhou
Location:Suzhou, Jiangsu, China
Element: Café, Retail Space
Company:KiKi ARCHi
Director: Yoshihiko Seki
Design Team: Saika Akiyoshi, Takahito Yagyuda
Building Area:200㎡
Completion:2024.10
Photography: Ruijing Photo Beijing
“ 让人在城市中亦能感知野外的诗意。”
客服
消息
收藏
下载
最近




























