查看完整案例

收藏

下载
子兮如斯文化行馆度假酒店座落于湖南郴州资兴市,西南侧紧邻小东江及城区,东北侧眺望起伏的山脉及千福塔,北侧与当地社区的民居相接,南侧临近小东江景区,场地内部原本杂草丛生的环境中还遗存两棵百年以上的古树,如同在昭示场地的历史。半山半城——面对这个具体且复杂的环境肌理,建筑设计试图通过一种与周围环境对话的形式,与山、水、城市、古塔、古树及周围民居建立一种有机且相互尊重的秩序。
This project is located in Zixing City, Chenzhou, Hunan Province. To the southwest, it is adjacent to Xiaodong River and the urban area; to the northeast, it overlooks the undulating mountains and the Qianfu Tower. The northern side borders the local residential community, while the southern side is near the Xiaodong River Scenic Area. Within the site, amidst the once-overgrown landscape, two heritage trees still remain, quietly bearing witness to the history of the place. Situated between mountain and city, and facing such a specific and complex environmental context, our architectural design seeks to establish an organic and respectful relationship with its surroundings. Through a dialogue with the mountains, water, cityscape, tower, heritage trees, and neighboring residences, the design aims to form a harmonious spatial order rooted in mutual respect.
▼清晨雾漫时分,In the misty early morning©黄向军 / GWPArchitects
▼雾漫小东江,The misty Xiaodong River©黄向军 / GWPArchitects
▼子兮如斯文化行馆度假酒店,ZEPHYRUS ART©陈宇威 / GWPArchitects
▼建筑与周边城市环境整体鸟瞰,Aerial view©陈宇威 / GWPArchitects
通过研究郴州当地民居的布局肌理特点及选址周边环境的具体特征,结合小东江一叶舟轻的文化意象,通过建筑形态呈现如同渔舟形态般的飘逸姿态,并将建筑体量化整为零,由几个院落空间进行体量的组织,从而塑造出整体姿态谦逊、融于当地氛围的建筑群体组合,营造雾漫小东江畔的山水院落。▼草图,Sketch©黄向军 / GWPArchitects
By examining the spatial patterns and siting characteristics of traditional residential architecture in Chenzhou, and drawing upon the cultural imagery of the light drifting boat on Xiaodong River, the architectural design seeks to embody a graceful, floating form reminiscent of a fishing vessel. The overall massing is broken down into smaller volumes, organized through a series of courtyard spaces. This strategy creates a composition that is humble in posture and seamlessly integrated into the local context, ultimately shaping a landscape-oriented courtyard ensemble along the mist-shrouded banks of the Xiaodong River.
▼顶视图,Top view©陈宇威 / GWPArchitects
▼鸟瞰,Aerial view©陈宇威 / GWPArchitects
▼沿江景观空间及建筑立面,Riverside landscape space and building facade©黄向军 / GWPArchitects
▼中轴水景倒映千福塔,The axial water feature reflects Qianfu Tower©黄向军 / GWPArchitects
▼从江对岸回望,Viewpoint from the opposite riverside©黄向军 / GWPArchitects
对话古树是设计的起点,项目以低伏的姿态环绕古树展开。
Dialogue with the heritage trees is the starting point of the design. This project unfolds around them in a low-lying and humble posture, gently embracing their presence.
▼古树、清水混凝土墙迎接第一缕晨,Morning’s earliest gold brushes the heritage tree and Fair-faced concrete wall©黄向军 / GWPArchitects
▼坐落于古树侧方的主入口,Main entrance beside the heritage tree©黄向军 / GWPArchitects
作为中式传统院落空间的核心元素与意境载体——水,其精神内涵始终贯穿于设计之中。在这个建筑中,水作为连接传统与现代的空间语言被重新诠释。“师古而不泥于古”,建筑采用现代语汇而非对传统建筑的直接摹写,试图在空间组织与氛围营造上,与中式传统山水园林的空间意蕴建立内在契合点,唤起场所精神与空间体验上的共鸣。
As a core element and carrier of meaning in traditional Chinese courtyard spaces, water embodies a deep spiritual significance that runs throughout our design. In this project, water is reinterpreted as a spatial language that bridges tradition and modernity. “Drawing from tradition without being bound by it,” the architecture adopts a contemporary vocabulary rather than directly replicating traditional forms. Instead, we seek to establish an internal resonance with the spatial essence of classical Chinese landscape gardens—through spatial organization and the creation of atmosphere—evoking a shared sense of place and emotional experience.
▼水院戏台,Water courtyard stage©黄向军 / GWPArchitects
▼中轴水景与环境的对话,Dialogue between the Axial Water Feature and its Surroundings©甘沛
▼屋顶泡池,Rooftop pool©黄向军 / GWPArchitects
▼屋顶休闲空间、水和山之间的对话,Rooftop space in dialogue with water and distant peaks©黄向军 / GWPArchitects
景观尝试以现代建筑语汇重新诠释传统园林的空间精髓。园林景观在此超越了装饰性功能,而是被策略性地运用为空间组织的骨架。通过其布局,这些不同的园林景观成为组织建筑体量、塑造空间序列的关键媒介,希望以此回应并延续中式传统院落中以景观建构空间的核心智慧。
The landscape design seeks to reinterpret the spatial essence of traditional Chinese gardens through the vocabulary of contemporary architecture. Here, landscape design goes beyond mere decoration—it is strategically employed as the structural framework for spatial organization. Through its layout, the garden becomes a key medium for shaping spatial sequences and articulating the building volumes. In doing so, we aim to respond to and carry forward the core wisdom of traditional Chinese courtyards, where landscape is used to structure and define space.
▼古树、茶室及别院顶视图,Top View of the heritage tree, tea room and forest courtyard©陈宇威 / GWPArchitects
▼晨光唤醒别院,Dawn awakens the forest courtyard©陈宇威 / GWPArchitects
主入口旁、茶室一侧的两棵古树历经沧桑,在这片场地生长了数百年,被视为承载场所记忆与自然精神的时空锚点。它们不仅是视觉焦点,更是组织空间序列、塑造场所氛围的核心元素。尝试通过建筑布局与景观流线组织,使古树与新构筑体之间形成共生互映的对话关系,令其生命痕迹深度融入此时此景的空间体验之中。
The two heritage trees beside the main entrance and adjacent to the tea room have withstood the passage of time, growing on this land for centuries. We regard them as spatial and temporal anchors that embody the site’s memory and natural spirit. These trees serve not only as visual focal points but also as core elements in organizing spatial sequences and shaping the atmosphere of the place. Through architectural layout and landscape circulation, we strive to establish a symbiotic and reflective dialogue between the ancient trees and the new built forms, allowing the traces of their life to be deeply woven into the spatial experience of the present moment.
▼古树下的茶室及别院,The heritage tree, tea room and forest courtyard©陈宇威 / GWPArchitects
▼别院曲径,Winding paththrough the forest courtyard©黄向军 / GWPArchitects
▼别院与远山,The forest courtyard and distant peaks©黄向军 / GWPArchitects
空间上塑造了一系列个性鲜明的园林空间。这些空间虽然在尺度、氛围及主题上各不相同,却通过精心的用地布局与视线安排,共同构成空间组织与序列演进的核心骨架。它们作为关键节点,既界定功能区域,又引导体验流线,共同编织出丰富而有序的空间叙事。
In this project, we have created a series of distinctive garden spaces. Although these spaces vary in scale, atmosphere, and theme, they are carefully arranged and visually connected to collaboratively form the core framework for spatial organization and sequence development. Serving as key nodes, they both define functional zones and guide the flow of experience, together weaving a rich and orderly spatial narrative.
▼入口空间、前庭院与戏台水院,Main entrance space,front courtyard and water courtyard stage©陈宇威 / GWPArchitects
▼下沉庭院及中轴景观,Sunken courtyard and axial landscape©陈宇威 / GWPArchitects
▼下沉庭院、户外休闲区及山门,Sunken courtyard, outdoor leisure are and ceremonial gate©黄向军 / GWPArchitects
▼下沉庭院及中轴景观,Sunken courtyard and axial landscape©黄向军 / GWPArchitects
▼下沉庭院,Sunken courtyard©黄向军 / GWPArchitects
室外景观被视为内部空间的延展与内在组成部分,通过通透界面、视线引导的设计策略,将园林的四季变化、光影韵律及自然气息渗透至每个功能空间,令使用者的感知体验在内外交融中得以连贯流通,形成“居景交互”的整体空间叙事。
We regard the outdoor landscape as both an extension and an intrinsic component of the interior space. Through strategies such as transparent interfaces and guided sightlines, the seasonal changes of the garden, the rhythm of light and shadow, and the essence of nature are allowed to permeate each functional area. This design approach enables a continuous and fluid sensory experience, blurring the boundary between interior and exterior, and ultimately constructing a holistic spatial narrative of interaction between dwelling and landscape.
▼入口大堂,Lobby©业主团队拍摄
▼茶室,Tea room©黄向军 / GWPArchitects
▼全日餐厅,All-day dining©黄向军 / GWPArchitects
▼包间与室外景观,Private dining room with outdoor views©黄向军 / GWPArchitects
▼客房空间,Hotel room space©黄向军 / GWPArchitects
▼庭院客房,Courtyard room©黄向军 / GWPArchitects
材料上运用了多种不同材质,如通过青砖、青石板与清水混凝土、木板的并置,构建跨越时空的物质性叙事。传统材料如青砖与青石板,被赋予现代建筑构造逻辑,而现代材料如清水混凝土、木板、玻璃,则抽象转译传统空间特质。二者在碰撞中形成非对抗性的对话——历史记忆与当代精神在物质层面达成共生,体现出我们试图探讨的一种“非怀旧地域性”的建造哲学。
This project employs a variety of materials, juxtaposing traditional elements such as blue bricks and bluestone slabs with modern materials like fair-faced concrete, wood panels, and glass to create a material narrative that transcends time and space. Traditional materials are reinterpreted through contemporary construction logic, while modern materials abstractly translate the spatial qualities of traditional architecture. Together, they engage in a non-adversarial dialogue—where historical memory and contemporary spirit coexist symbiotically on a material level—reflecting our exploration of a “non-nostalgic regionality” in architectural philosophy.
▼阳光映衬下不同材质间的对话,Dialogue between different materials under the sunlight©黄向军 / GWPArchitects
▼材料细节的呈现,Presentation of materials and details ©黄向军 / GWPArchitects
▼材料细节的呈现,Presentation of materials and details ©黄向军 / GWPArchitects
▼总平面图,Site plan©GWPArchitects
▼负一层平面图,Basementfloor plan©GWPArchitects
▼首层平面图,First floor plan©GWPArchitects
▼二层平面图,Second floor plan©GWPArchitects
▼三层平面图,Thirdfloor plan©GWPArchitects
▼四层平面图,Fourthfloor plan©GWPArchitects
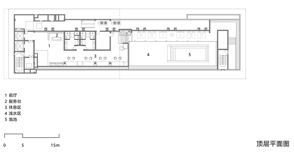
▼顶层平面图,Rooftop floor plan©GWPArchitects
▼剖面图,Section©GWPArchitects
▼节点图,Detail©GWPArchitects
项目名称:子兮如斯文化行馆
地点:湖南省郴州资兴市东江街道木根桥社区东江组
业主:资兴市子兮如斯文化艺术有限公司
设计时间:2022年—2024年
建造时间:2023年——2025年
用地面积:9033.36平方米
总建筑面积:13315.58平方米
结构类型:框架结构、钢结构
建筑及景观设计:GWP建筑事务所
主创设计:张国威、王平、黄向军
建筑及景观设计团队:GWP文旅事业部
施工图设计:广东大宸建筑设计有限公司
室内设计:GWP建筑事务所+深圳万介方合空间设计有限公司
景观施工:四川宽艺建筑工程有限公司
幕墙设计:GWP建筑事务所+史倍思建筑科技(广州)有限公司
灯光设计:四川木易易建筑景观设计有限公司
施工单位:中铁二局集团装饰装修工程有限公司
监理单位:湖南环宇建设工程咨询监理有限责任公司
摄影:黄向军,陈宇威,甘沛,业主团队
材料:清水混凝土 天然木皮 钛锌板
Project name: ZEPHYRUS ART Resort Hotel
Location: Zixing,Hunan Province,China
Clients:ZEPHYRUS ART
Design year: 2022-2024
Completion Year: 2023-2025
Site area: 9033.34㎡
Gross floor area: 13315.58㎡
Structure: Reinforced Concrete Frame Structure,steel structure
Architecture & Landscape design: GWP Architects
Leader designer: John Zhang, Tina Wang, Huang Xiangjun
Architecture & Landscape design team: GWP Cultural and Tourism Development Department
Construction Drawing Design Firm: Guangdong Diathink Design Co.,Ltd.
Interior Design Firm: GWP Architects & Shenzhen Intertex – One Design Co.,Ltd.
Landscape Construction Firm: Sichuan Kuanyi Architectural Engineering Co.,Ltd.
Curtain Wall Design Firms: GWP Architects & Spex Building Technology (Guangzhou) Co., Ltd.
Lighting Design Firm: Sichuan Muyiyi Architectural Landscape Design Co., Ltd.
Construction Contractor: The Architectural Decoration Engineering of China Railway Erju Group
Supervision Unit: Hunan Huanyu Construction Engineering Consulting Supervision Co., Ltd.
Photo credit: Huang Xiangjun, Chen Yuwei, Gan Pei, Client Team
Materials: Fair-faced Concrete, Natural Wood Veneer, Titanium Zinc Sheet
客服
消息
收藏
下载
最近

























































