查看完整案例

收藏

下载

翻译
Architects:Mariana Orsi Arquitetura + Design
Area:1187m²
Year:2023
Photographs:Carolina Mossin
Manufacturers:Automundi Automação,Casa Rara Acabamentos,Duo Gourmet Banho,Lucenera,Móveis Cardone,Roberto Chaim
Lead Architect:Mariana Orsi
Category:Houses
Coordination:Yane Gomes
Project Team:Sara Peres, Sofia Castro
Engineering & Consulting > Structural:Daniel Freitas
General Construction:Pallas Engenharia
Engineering & Consulting > Installations:Lucinéia Bueno
Engineering & Consulting > Electrical:Previatto
City:Ribeirão Preto
Country:Brazil
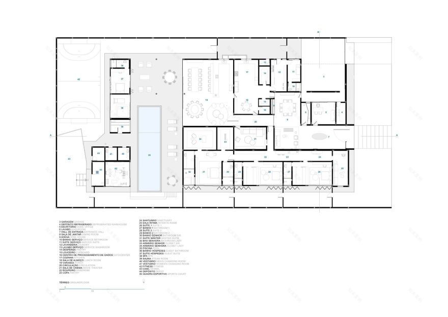
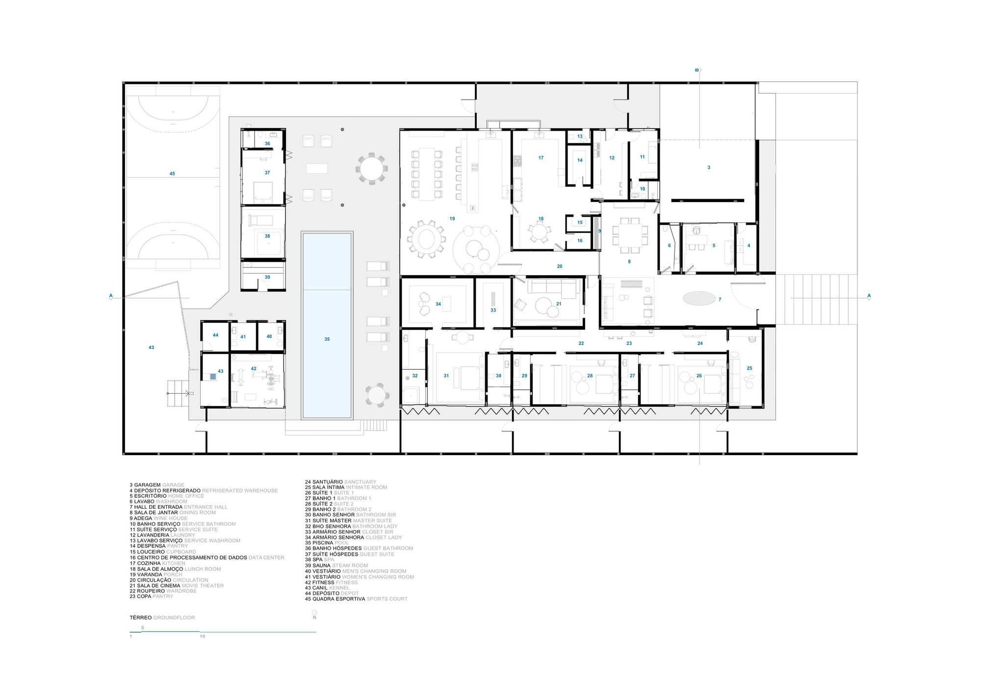
Text description provided by the architects. Designed for a young family and with an extensive program, the G+B House was born to celebrate. To celebrate gatherings. For this, we value common spaces. A large leisure area became the focal point of the project, turning into the heart of the house.
The zoning is well defined, divided into intimate, social, and service areas. A large central circulation divides the spaces and connects access to the different zones. For leisure, a large gourmet area feeds the house, along with a swimming pool, a spa with a jacuzzi and sauna, as well as a large gym and a modest soccer field.
Natural materials were chosen to create a closer connection with nature and are present throughout the house, with an emphasis on stone and the exposed concrete of the roof, giving the residence life and freshness. A large geometric concrete slab welcomes the house at its main facade, forming an air pocket that ventilates the roof overall, providing greater thermal protection.
The house also features two large water reservoirs, one for reuse. Located in a residential condominium within a golf club, the G+B House boasts an exclusive and extensive woodworking, with generous panels and cabinets that make it very special.
Project gallery
客服
消息
收藏
下载
最近
































