查看完整案例

收藏

下载
这是一套在温州平阳怀溪镇的祖宅,原来的老房子已经破旧不堪,竹编的老式房子已经摇摇欲坠,再不改建就有倒塌的风险,所以我们想要在房子倒塌之前把地基保留住,将房子重建一下,做为父母回归故里的一个居所,也是自己假日之余回归心灵的一处空间,同时还要兼顾民宿的一个属性,所以这个房子是同时兼具住宿性质的一个家宅。
This is a family house in Wenzhou Pingyang Huixi Town. The original old house is already dilapidated, the old bamboo house about to fall down, and if it is not renovated, there is a risk of collapse. Therefore, we want to preserve the foundation before the house collapses, rebuild the house and make it a place for parents to return to their hometown, and also a space for ourselves to return to our hearts during our holidays. At the same time, we also want take into account the attribute of a homestay, so this house is a family house with both residential and homestay attributes.
▼鸟瞰,Bird’s eye view© 生辉 ShengHui
外观
The appearance
重建后的整个房子南面被竹海温柔环抱,”竹深见舍,心静如筠。”所以我们为整个项目命名为“竹间”。我们希望住在里面的人可以感受到“居有竹,而心无尘。”
The entire house, once rebuilt, is gently embraced by a bamboo forest to the south, “Bamboo deep reveals the dwelling, the heart calm as bamboo. Therefore, we named the entire project “Bamboo Interlaced.” We hope that people living inside can feel “Living with bamboo, and the heart is free from dust”.
▼入口处,Entrance© 生辉 ShengHui
▼入口石阶,Entrance stone steps © 生辉 ShengHui
▼立面近景,Facade close view© 生辉 ShengHui
庭院
The Courtyard
房子的北面是一个200㎡的院子,素灰的碎石庭院,散置着几块来自房子后山上的粗犷的山石,保持着出土时的原生状态,在院墙里四十年的桂花树下,冬天烤火,夏天乘凉,坐在院子里目之所及,就是自然和宁静。
To the north of the house is a 200㎡ courtyard paved with grey pebbles, dotted with several rugged rocks from the mountain behind the house maintaining their original state when unearthed. Beneath the forty-year-old osmanthus tree within the courtyard walls, one can sit and enjoy the warmth in winter the coolness in summer. From where you sit, you can see nothing but nature and tranquility.
▼庭院概览,Overall view of the courtyard© 生辉 ShengHui
▼庭院冬天烤火,Roasting by the fire in the courtyard in winter © 生辉 ShengHui
▼庭院碎石,Courtyard gravel © 生辉 ShengHui
客餐厅
Living room and dining room
一楼是客餐厅区域,我们把客厅设置在了正对院子的位置,沙发正对一方素净庭院,院子里还保留有爷爷的爸爸那个年代用溪石手工堆砌起来的矮墙和不知名的有着几十岁的苍劲大树。
The first floor is the living and dining area, we set the living room facing the courtyard, the sofa is facing a clean courtyard, and there are still low and unnamed old trees that are decades old, which were piled up manually with stream stones in the era of grandpa’s father.
▼客餐厅区域,Living and dining area © 生辉 ShengHui
▼客餐厅区域看向室外,The living and dining area looks outside © 生辉 ShengHui
室内空间我们将建筑本身的水泥浇灌顶面外露,刻意保留了建筑顶面原来的质感,墙面用米色的艺术肌理漆平涂,把侘寂的枯淡、度假的松弛与工业的粗粝在空间里交织成三重美学。
Interior space. We deliberately exposed the original texture of the building’s poured concrete ceiling, and used a beige art texture paint to coat the walls, the austere charm of wabi-sabi, the relaxed vibe of a holiday, and the ruggedness of industry into a triad of aesthetics in the space.
▼水泥浇灌顶面外露,The cement-poured top surface is exposed © 生辉 ShengHui
▼保留原始质感,Retain the original texture © 生辉 ShengHui
▼家具近景,Furniture close view© 生辉 ShengHui
▼老木家具,Old wood furniture © 生辉 ShengHui
▼老木家具细部,Old wood furniture details© 生辉 ShengHui
▼客厅壁炉,Fireplace © 生辉 ShengHui
餐厅和走廊区域也选用了质朴色调,木色菠萝格楼梯穿插在灰色的空间里,像一个几何构建,又带有材质的冲突。值得一提的是,空间里所有的装饰画,都是我们自己出品,有的是油画,有的是艺术拼贴,每一个都是独一无二。
The restaurant and corridor area also selected simple tones, with the teak stairs interspersed in the gray space, like a geometric structure, but with a of materials. It is worth mentioning that all the decorative paintings in the space are our own products, some are oil paintings, and some are artistic collages, each of which is.
▼餐厅,Dining area© 生辉 ShengHui
▼餐厅近景,Dining area close view© 生辉 ShengHui
▼餐桌细部,Dining table details© 生辉 ShengHui
▼餐桌旁的绿植,Greenery beside the table© 生辉 ShengHui
▼楼梯,Stairs© 生辉 ShengHui
▼走廊,Corrdior© 生辉 ShengHui
卧室
The Bedroom
二三层是卧室空间,最大限度的引进了自然光,大片的落地窗和推拉门,把室外的绿植变成窗外的风景。窗帘和床上用品我们都采用了自然材质,棉麻,布艺,为空间增添舒适感。
The second and third floors are bedroom spaces, which maximize the introduction of natural light. Large floor-to-ceiling windows and sliding doors turn the greenery into a view outside the window. We used natural materials for the curtains and bedding, such as cotton and linen, which add a sense of comfort to the space.
▼卧室概览,Bedroom© 生辉 ShengHui
▼卧室落地窗,Overall view© 生辉 ShengHui
▼卧室近景,Bedroom close view© 生辉 ShengHui
▼卧室小桌,Desk in bedroom© 生辉 ShengHui
▼卫生间,Toilet© 生辉 ShengHui
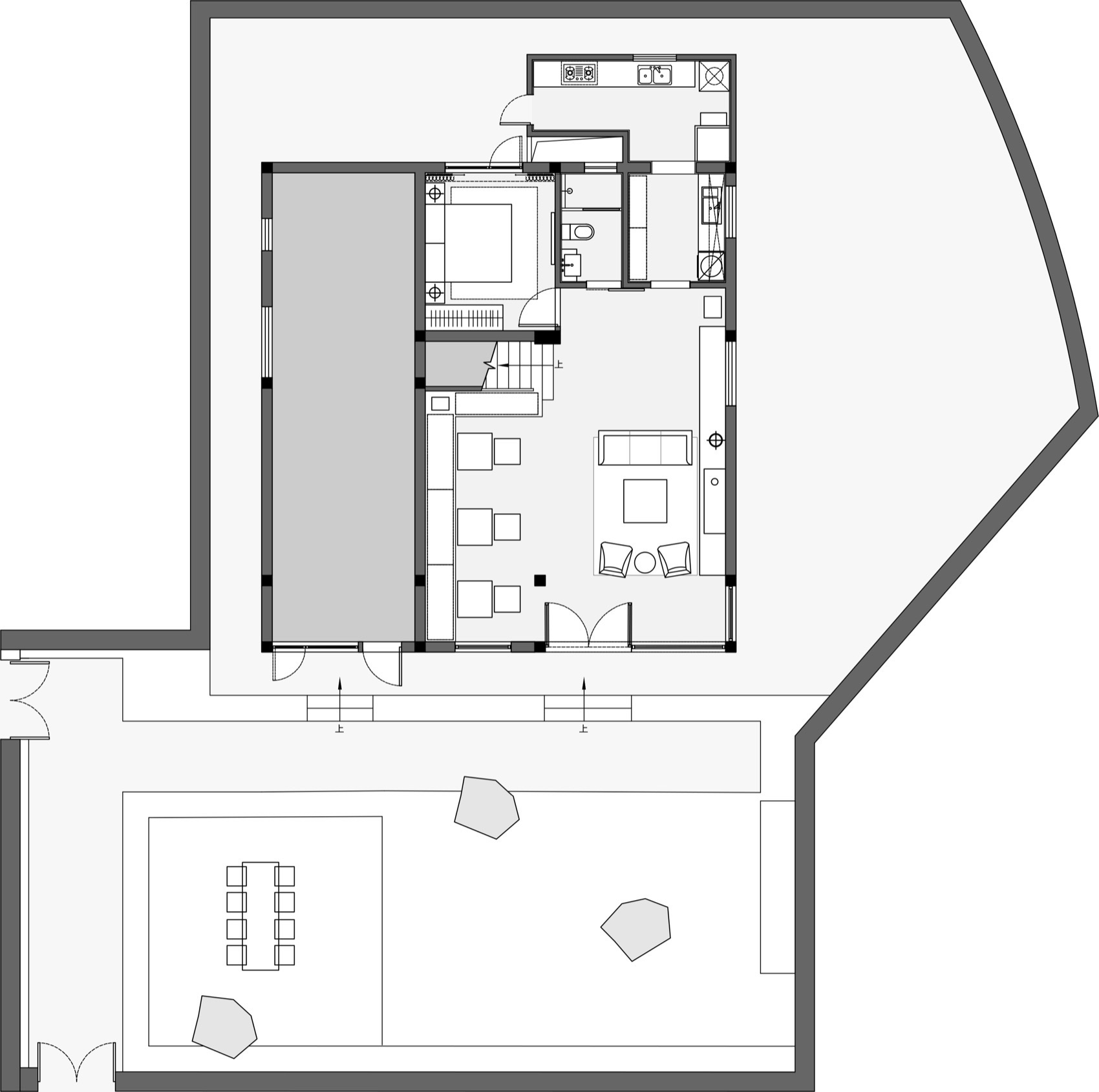
▼平面图,floor plan© 也间室内设计
项目名称:竹间居所 住进竹的光影里
Bamboo dwelling Live in the light and shadow of bamboo
建筑事务所:杭州也间室内设计有限公司
Hangzhou Yejian Interior Design Co., Ltd.
空间主创设计师: 叶增敏/Min
软装主创设计师:蔡晓蓉/XIAO
设计团队:杭州也间室内设计有限公司
Hangzhou Yejian Interior Design Co., Ltd.
项目地址:浙江温州平阳 Pinyang, Wenzhou, Zhejiang
设计时间:2024.12
设计周期:6个月/ six months
项目完成年份:2024.12
占地面积(平方米):500m²
建筑面积(平方米):300m²
摄影师: 生辉 ShengHui
客服
消息
收藏
下载
最近

























































