知末
知末
创作上传
VIP
收藏下载
登录 | 注册有礼

狗咖商业空间设计 北京三元桥店丨中国北京

2025/07/02 19:16:15
查看完整案例
微信扫一扫
收藏
下载
狗咖商业空间设计  北京三元桥店丨中国北京-0
当时灵感来自旋转的螺旋桨和辐射范围
狗咖商业空间设计  北京三元桥店丨中国北京-2
没错,那是店主人留给自己家狗狗的窝
狗咖商业空间设计  北京三元桥店丨中国北京-4
这个视角也很不错
狗咖商业空间设计  北京三元桥店丨中国北京-6
现场图
狗咖商业空间设计  北京三元桥店丨中国北京-8
甲方最喜欢的斑驳和破碎重组的感觉
狗咖商业空间设计  北京三元桥店丨中国北京-10
现场这个深渊镜自己也有动手参与
狗咖商业空间设计  北京三元桥店丨中国北京-12
现场图
狗咖商业空间设计  北京三元桥店丨中国北京-14
后期这个墙改动啦
狗咖商业空间设计  北京三元桥店丨中国北京-16
狗咖商业空间设计  北京三元桥店丨中国北京-17
狗咖商业空间设计  北京三元桥店丨中国北京-18
专门找声学厂家定制的静音墙壁和房顶,上面是住人滴,所以隔音很重要!
狗咖商业空间设计  北京三元桥店丨中国北京-20
前台也是有吸睛的斑驳感墙面,还有专门找的可组合水泥置物架
狗咖商业空间设计  北京三元桥店丨中国北京-22
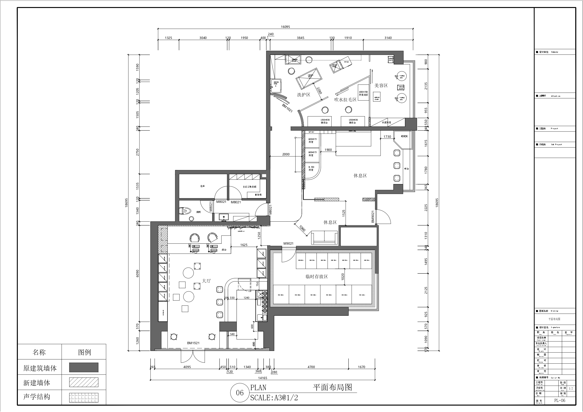
平面图欣赏啦
南京喵熊网络科技有限公司 苏ICP备18050492号-4知末 © 2018—2020 . All photos and trademark graphics are copyrighted by their owners.增值电信业务经营许可证(ICP)苏B2-20201444苏公网安备 32011302321234号
客服
消息
收藏
下载
最近