查看完整案例

收藏

下载
项目名称:四川大学博物馆改扩建
位置:四川
设计单位:中国建筑西南设计研究院有限公司
图片数量:40张
川大博物馆的历史可以追溯到1914年华西协合大学古物博物馆,是民国时期第一座综合性大学博物馆,也是西南地区历史最悠久的博物馆。博物馆用地位于川大老校区东门的锦江河畔h。校园历史轴线向西南方向偏转,博物馆建筑设计顺应校园网格,充分融入校园肌理,回应场地文脉。
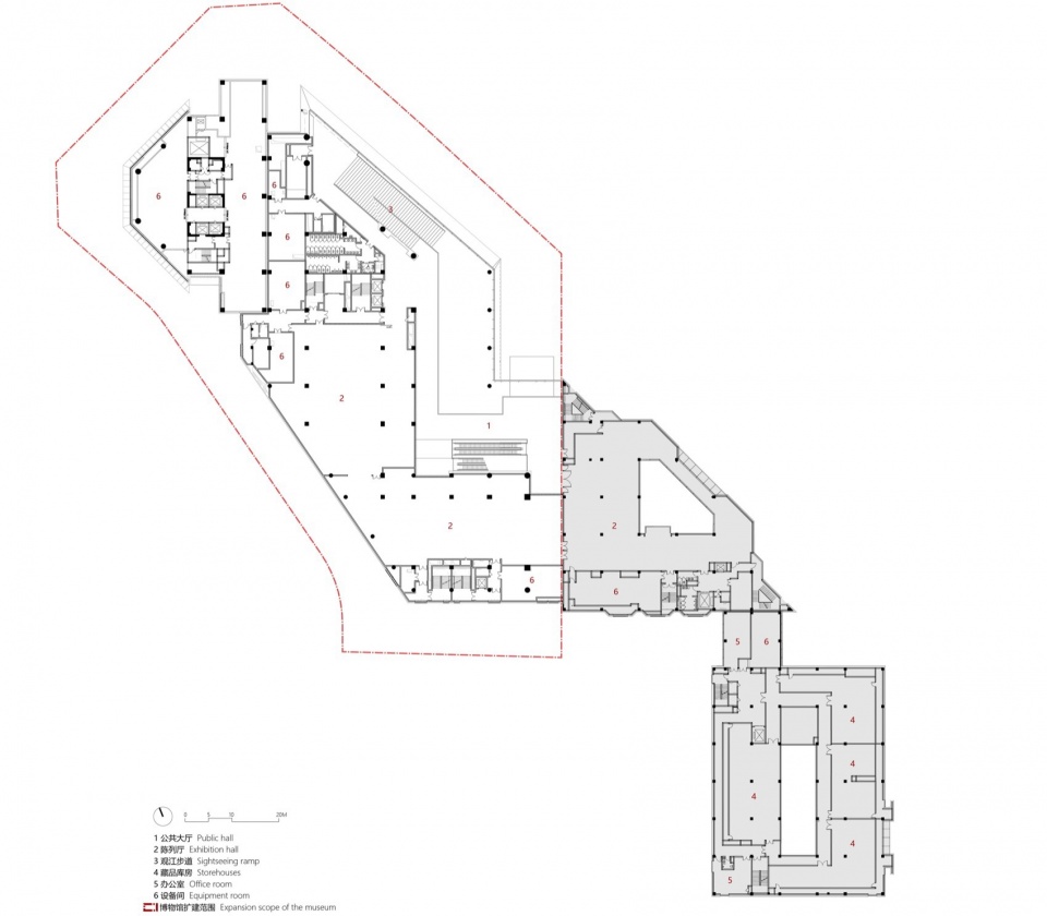
博物馆包括老馆改造和新馆两大部分。老馆建于20年前,包括原人文馆和自然馆,面积约1.47万平米。自然馆层高较低,进行功能置换改造为藏品库房,人文馆通过改造展厅空间,与新馆展陈一体化融合。新馆建筑面积约2万平米。北侧贴建校园高层综合楼,为学校提供1.87万平米的科研办公空间。
项目地处老城区,用地非常紧凑,新老馆平面上无缝崁合,通过局部坡道来弥合新老馆之间的标高差异,保持了动线和功能上的连续性。
扩建后的博物馆采用“一馆两翼”的布局,新老馆之间设置通高公共大厅,作为核心的空间枢纽。观众可通过门厅扶梯便捷到达各个楼层,也可从大厅沿江一侧的景观坡道盘旋而上,沿途眺望锦江风光。坡道外侧为超大板块玻璃幕墙,形成画框般的景象,实现博物馆与城市环境的对话。
在展陈设计上,考虑人文与自然融合,彰显川大在人文和自然学科建设上的领军地位。负一层设置临展厅、报告厅、放映厅及研学功能;一、二层为基本陈列,设考古、民俗、民族等专题展厅;三层为自然专题展厅,四层设艺术专题展厅,展示川大百余年来收集的艺术珍品。
艺术展厅利用高耸的坡顶空间,形成仪式感的空间氛围,顶部天窗内侧设电动百叶,临江一侧外窗设置铝管遮阳帘与半透明遮光帘,提供自然光漫射中的观展体验。旧馆的屋面,结合绿植打造为咖啡座和户外平台,创造鸟瞰滨江的场所。
川大历史建筑的典型元素——挑檐、青砖和坡顶歇山,在新馆中进行转译。檐口底部采用川大标志性的红色,强化了文化认同感。入口大厅的镂空砖外墙采用不锈钢拉杆串联陶砖的构造,创造巨幅的“光之墙”。三角形坡屋面采用钛锌板替代传统瓦。高层综合楼的形式参考了邻近望江公园里的望江楼,再现传统多层楼阁的层层屋檐,并利用披檐底部的百叶形成通风腔,将形态设计与环境调控相接合。川大博物馆组群的改造与扩建,重塑了滨江的公共空间,成为锦江沿岸上的重要城市人文节点。
校园历史轴线与场地文脉
锦江河畔的博物馆
博物馆顶视图
塔楼墙身大样
博物馆立面
夜览立面
承古创新的立面设计
承古创新的立面设计
首层大厅
展陈空间
老馆采光廊改造前后对比
总平面图
一层平面图
二层平面图
三层平面图
三层平面图
客服
消息
收藏
下载
最近


















