查看完整案例

收藏

下载
在600元/268560㎡的极限预算下,我们将本次设计的关注点放到人的内心感受之上,创造一个亲切,平静,自然的场所,让客人在购买产品的同时,也让其融入到空间之中。
原始场地层高有限,但好在拥有良好的自然采光,空间也比较规整,第一次踏勘现场,对空间便有了大概的轮廓。在结合展示功能的前提下,我们希望让空间关系尽量丰富一些,通过空间的开合,遮挡与局部的穿插,以纯粹的功能性体块构建出多层次的视觉与空间体验。同时,我们希望尽量削弱被动式的传统展厅体验,尽量创造一个充满自然随想与温暖光线的空间。胶合板的自然纹理,随处可见的绿植,绿色手工砖,将自然,空间与产品和谐相融。
▽多层次的视觉与空间体验
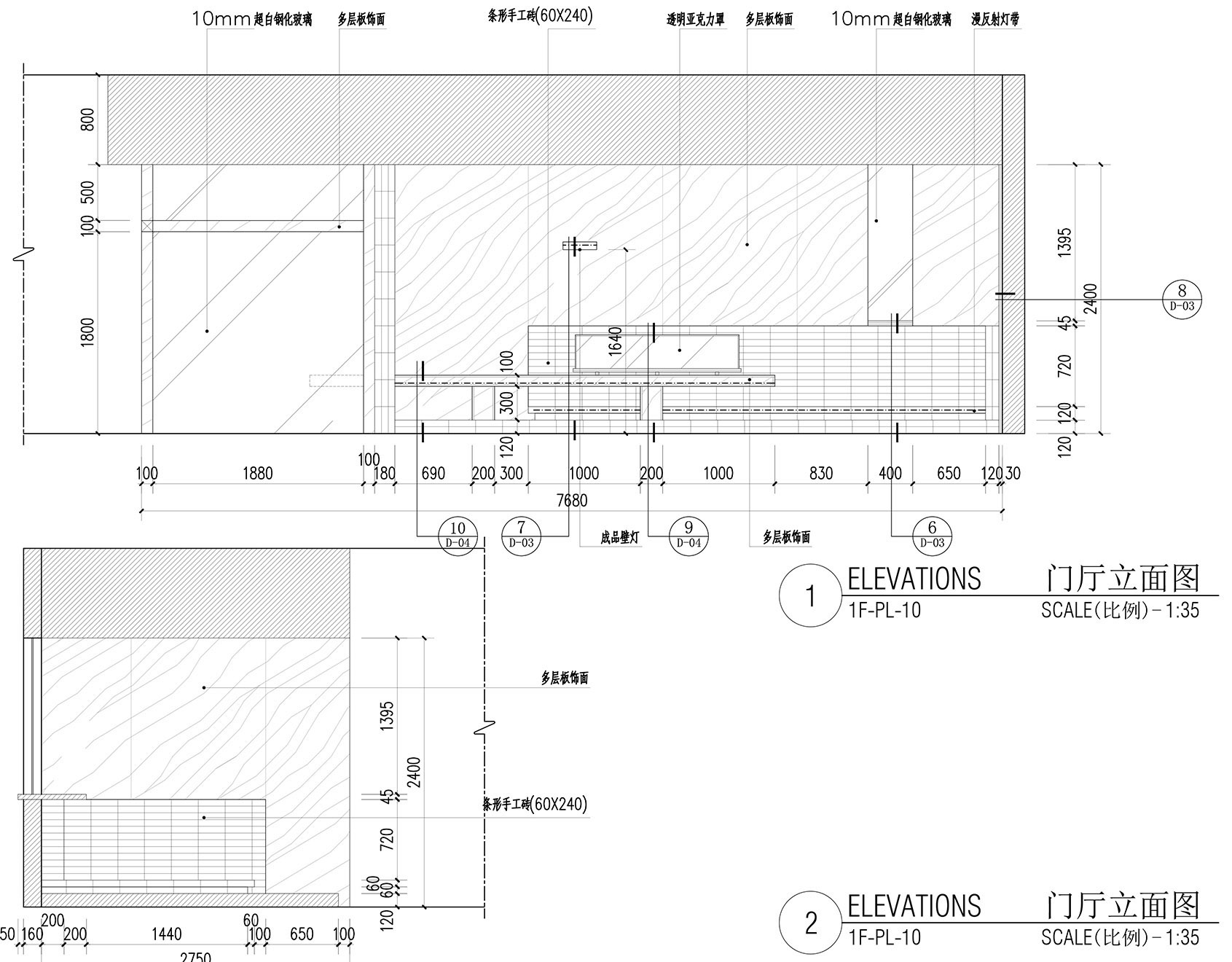
入口的内退空间,通过质朴的手工砖与胶合板围合成一个半开放的盒子,而胶合板展台上放置的手工砖,矿石,也在开始讲述空间的故事,吸引人们在此驻足。虚实结合的墙体关系,将观者视线通过玻璃引入室内,激发着观者进入空间的好奇心。
▽入口的内退空间
▽虚实结合的墙体关系
▽展台
▽激发进入空间的好奇心
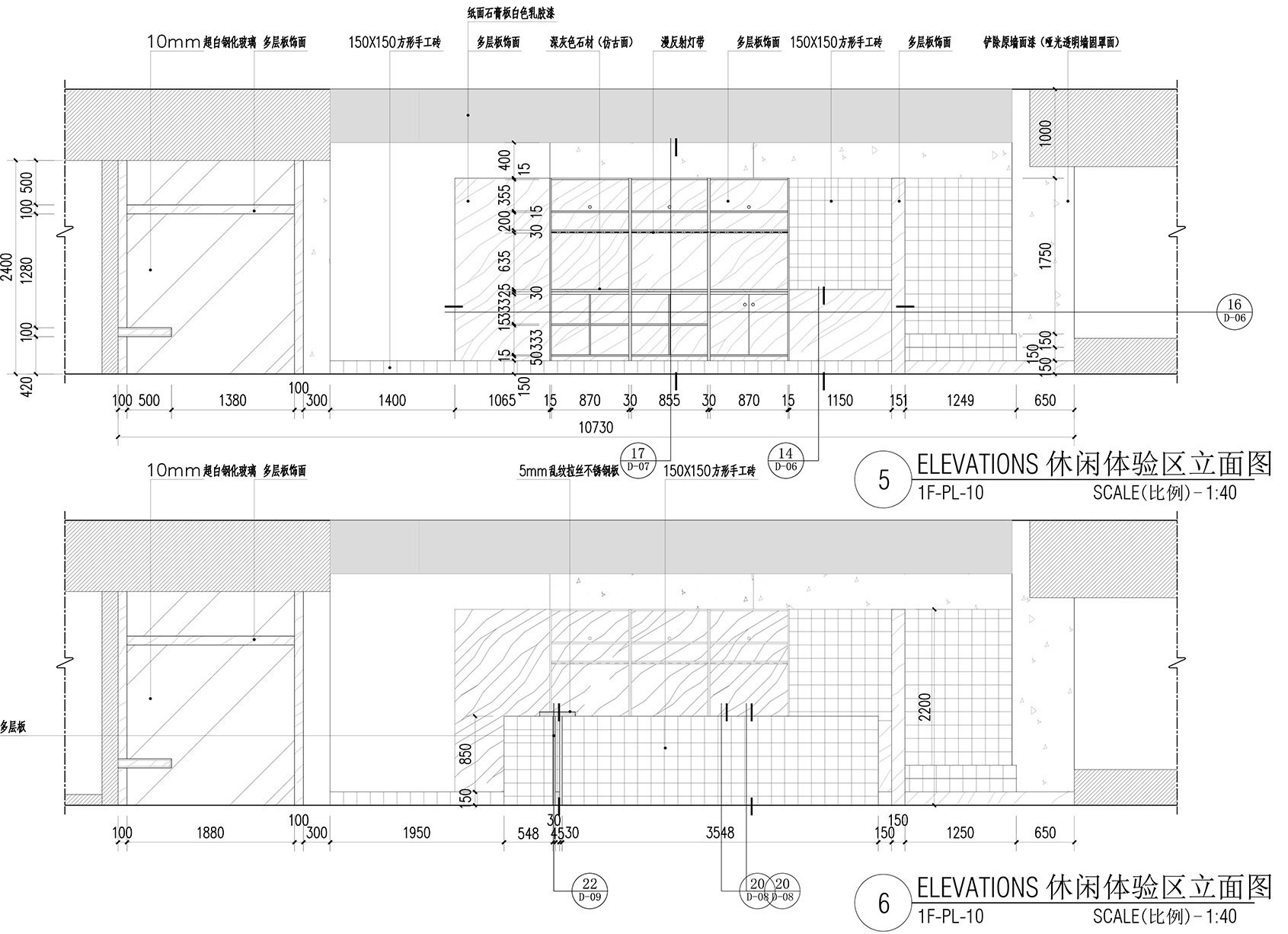
核心区域作为接待与社交空间,我们希望这里不仅局限于产品的交易,更是一种过程的体验。主理人可以在这里与业主,设计师或朋友愉悦的交流;也可以在此安心享受阳光,绿植与咖啡带来的惬意时光…
▽吧台
▽接待与社交空间
窗边绿意盎然的花池,将内外空间融合,与室内绿色手工砖呼应,俨然一个迷你小花园,令人心神愉悦。
▽绿意盎然
▽迷你小花园
▽橱柜
在有限的预算下,设计选择最简单常见的材质构筑空间,胶合板制作的柜体,家具;墙面以最普通的腻子刮涂出自然的肌理与质感。局部手工砖的搭配,强调出空间的细节与质感,也将产品自然的融入空间中。
▽胶合板细部
▽绿植细部
我们希望以人为出发点,构筑一个能够打动人,且产生熟悉度,放松戒备心的展厅空间;同时塑造出其自身的气质与专属的场景记忆点。
▽一角
▽平面
项目名称:MIX瓷砖工作室
项目类型:展示空间
设计方:有物空间设计
项目设计:有物空间设计
完成年份:2024.12
设计团队:黄磊 阙桂平 皮宏林
项目地址:重庆市
建筑面积:280㎡
摄影版权:偏方摄影 石梓峰
客户:MIX瓷砖工作室
客服
消息
收藏
下载
最近



































