查看完整案例


收藏

下载
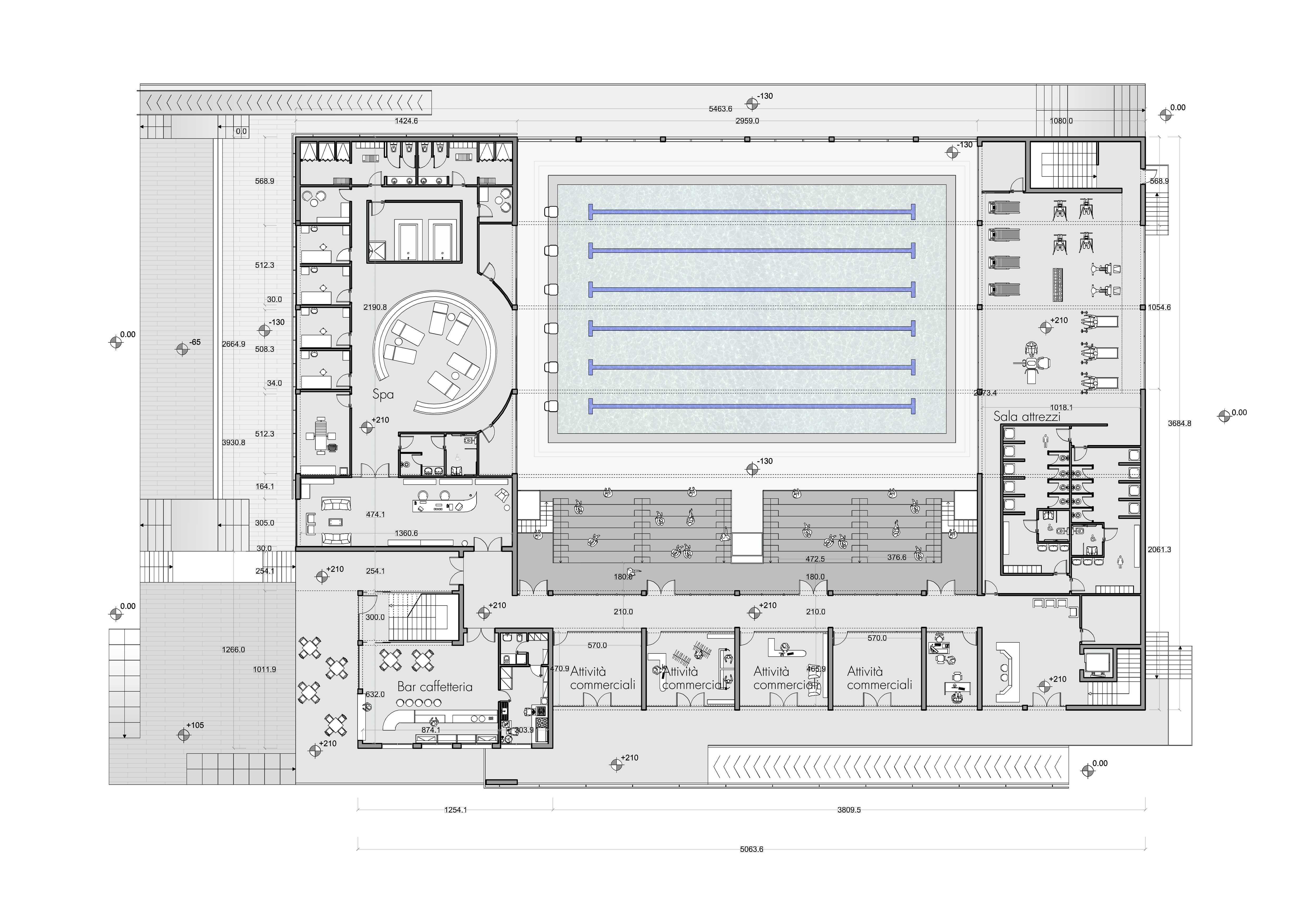
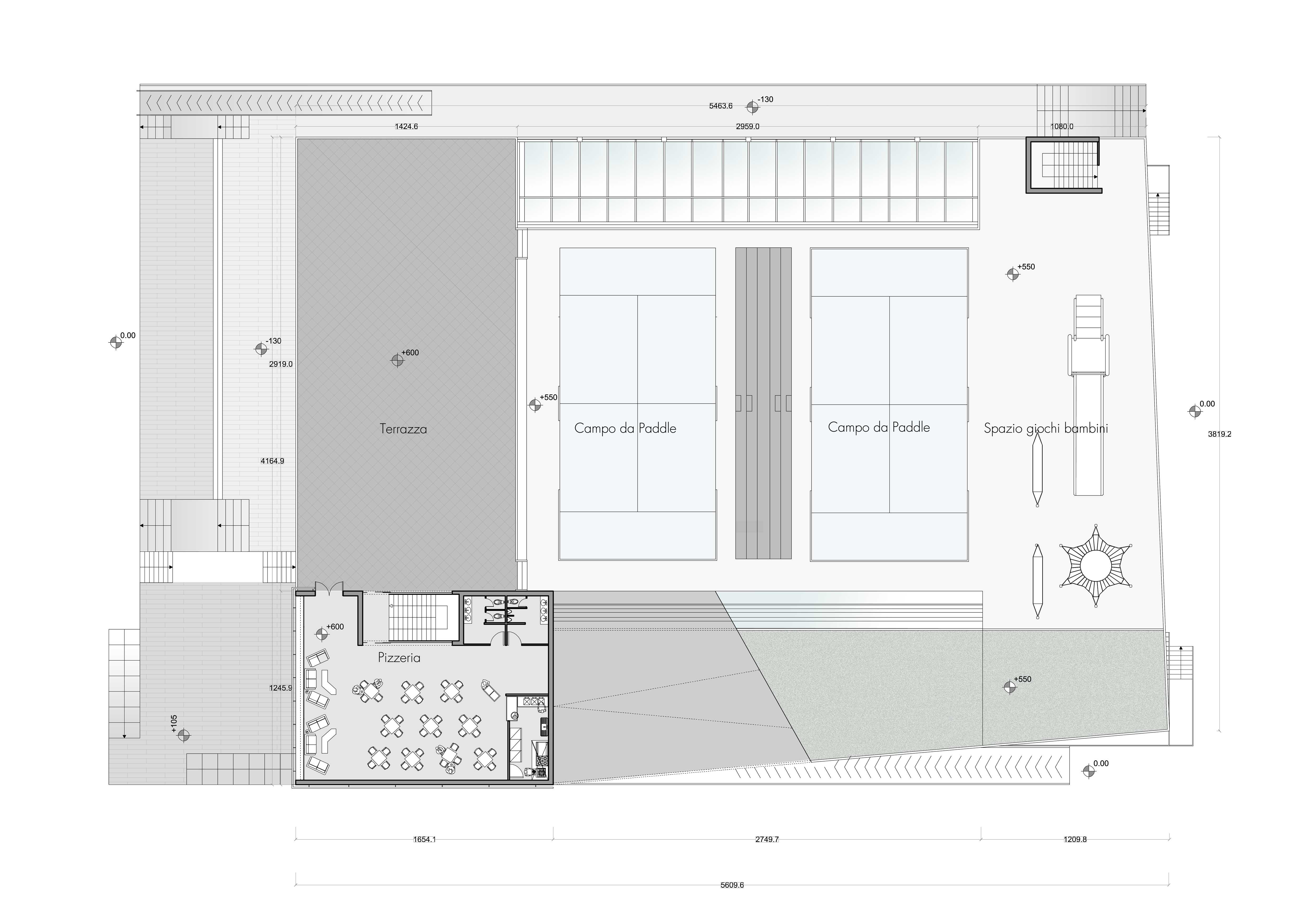
La Spiaggia di Sesto是一个运动综合体的项目,由Archilea建筑,Renato Pucci建筑师与拱门合作设计。Giovanni Carignani和Arch。玛丽亚·尼杜。
新的体育中心项目位于意大利卡帕诺里的乡村,靠近古城卢卡,自然风光秀丽,与自然环境和谐融合,汲取了传统建筑和该地区自然景观的灵感。
该项目的目的是提供新的公共服务领域,鼓励体育活动,以此促进该地区居民,特别是青年的社会融合。
新的体育中心的体积发生在维索纳小溪附近,在Compito城堡上可以看到壮观的景色;由于该建筑群位于一个受保护的景观区,其体积部分位于地下,以减少对该地区的视觉影响,并将外部设施置于不同的水平上。
通过优化新容积的形状,将建筑外部不同层次的空间与室内空间连接起来,最大限度地利用建筑内部的自然光照,以减少能耗,控制湿度。
在室外游泳池附近有一间酒吧、一家餐厅和一个大露台,可以欣赏城堡的全景,专为特殊活动而设计。
拉斯皮亚吉亚迪塞斯托体育综合体从一开始就为长期的遗产使用而设计,它将为适应性和社会融合设定一个新的标准,并在卡帕诺里提供一个新的综合体,以促进居民的体育和福祉。
Firm Oficina urbana
Type Hospitality + Sport › Sports Center Wellness/Spa
STATUS Concept
keywords:architecture, architecture news, interiors, interior design, portfolio, spec, brands, marketplace, products New sport center, Lucca
关键词:建筑、建筑新闻、内部设计、室内设计、产品组合、规格、品牌、市场、产品新体育中心、LUCA
客服
消息
收藏
下载
最近













