查看完整案例


收藏

下载
© Imagen Subliminal
意象潜意识
© Imagen Subliminal
意象潜意识
架构师提供的文本描述。该项目涉及对现有体育设施进行大规模翻新和扩建。
Text description provided by the architects. The project involves an extensive refurbishment of the existing sports facilities and its extension.
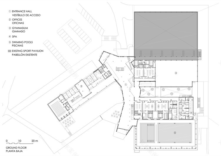
为保护旧运动场所需的整修。该项目包括两座新的独立建筑,以及一个连接新旧建筑的新入口大厅。
The refurbishment required to conserve the old sports hall. The project includes two new separate buildings, and a new entrance hall that links the old and the new constructions.
© Imagen Subliminal
意象潜意识
这两座新建筑被设想成两个普通的棱镜。一个是室内游泳池、更衣室、水疗区和多用途客房,另一个是市政体育部和一个小礼堂。
The two new buildings are conceived as two regular prisms. One houses the indoor pool, its locker rooms, spa area and multipurpose rooms, and the other the Municipal Sports Department and a small auditorium.
© Imagen Subliminal
意象潜意识
相比之下,入口大厅是一个完全不规则的分配量。它调整其形状,成功地将新建筑与现有建筑结合起来。它是完全密封在锌片,被解读为一个单一的元素,没有正面和屋顶之间的区别。
By contrast, the entrance hall is a completely irregular distribution volume. It adapts its shape to successfully integrate new buildings with the existing one. It is cladded entirely in zinc sheet, to be read as a unitary element, with no difference between facades and roof.
© Imagen Subliminal
意象潜意识
© Imagen Subliminal
意象潜意识
游泳池的棱镜是一个玻璃卷三面,南,东,西。在夏天,它的下部向草地开放,穿过断头台,窗户9米。很高。在上面,玻璃是保护从遮阳水平铝百叶窗。屋顶由四个大天窗组成,也可以打开。在北侧有更衣室和水疗区,有桑拿浴室、按摩浴缸、苏格兰淋浴、冷水游泳池和可俯瞰公园的日光浴室。游泳池下面设有技术室(净化和空调)和多功能体育馆。
The pool building prism is a glass volume on three sides, South, East and West. In summer, its lower part opens to the grassland, through guillotines windows 9 m. high. Above, the glasses are protected from the sunshade with horizontal aluminum louvers. The roof, formed by four large skylights, it can also be opened. On the North side are located the locker rooms and the spa area, with saunas, Jacuzzis, Scottish showers, cold water swimming pools, and a solarium overlooking the park. Below the pool, technical rooms (purification and air conditioning) and multi-purpose sports halls are located.
© Imagen Subliminal
意象潜意识
体育部办公室所在的棱镜由三卷(礼堂、仓库和楼梯)组成,形成了一个混凝土讲台。在这个讲台上,第一层写字楼是解决通风的正面,高压层压板完成了木材三面。第四个立面朝南,有最好的花园景观,是一堵用木制百叶窗遮阳的幕墙。
The prism which houses the offices of the Sport Department is formed on the ground floor by three volumes (auditorium, warehouse and the staircase) forming a concrete podium. Above this podium, the first office floor is solved with ventilated facades of high pressure laminated panels finished on wood on three sides. The fourth facade, facing south and with the best views of the garden, is a curtain wall protected from the sun with wooden louvers.
© Imagen Subliminal
意象潜意识
该项目是在对现有设施进行翻新后完成的。一个新的健身房坐落在旧游泳池,它的一个正面完全向花园开放。在健身房下面,医疗单位和监控室取代了旧的技术室。所有这些房间都通往一个新的内部庭院,作为连接元素的新建筑物,在那里也可以俯瞰新的多用途房间和游泳池储物柜。
The project is completed with the refurbishing of the existing facilities. A new gym is located in the old swimming pool, opening one of its facades entirely to the garden. Under the gym, medical units and monitors offices replace the old technical rooms. All these rooms open to a new inner courtyard, which serves as connecting element with the new building, where also overlooks the new multipurpose rooms and the swimming pool lockers.
© Imagen Subliminal
意象潜意识
Architects Pablo Notari Oviedo Pablo Notari Oviedo , SUMAR urbanismo y arquitectura , CONURMA Ingenieros Consultores
Location Av. Ntra. Sra. del Retamar, 28232 Las Rozas, Madrid, Spain
Category Renovation
Architect Team Leader Steffen Ringler
Area 10254 sqm
Project Year 2007
Photographs Imagen Subliminal
Manufacturers Loading...
客服
消息
收藏
下载
最近




























