查看完整案例


收藏

下载
结构工程师Elliott Wood Partnership Ltd.M
Structural Engineer Elliott Wood Partnership Ltd M&E consultant Hoare Lea Quantity Surveyor Synergy Planning Supervisor Synergy Lighting Consultant White Light Ltd Audio Consultant Autograph Sound Ltd Main Contractor Jerram Falkus Construction Ltd Client Latymer Upper School Manufacturers Loading... More Specs Less Specs
© Guy Archard
C.Guy Archard
架构师提供的文本描述。拉蒂默高中的优雅而高效的体育中心最大限度地利用了一个受到严格限制的场地上的可用空间,以创建一个运动卓越和抱负中心。
Text description provided by the architects. The elegant and efficient sports centre at Latymer Upper School maximises the available space on a tightly constrained site, to create a centre for sporting excellence and ambition.
© Guy Archard
C.Guy Archard
拉蒂默高中是伦敦西部Hammersmith的一所独立学校,可容纳1200名学生。现有的体育设施已於一九八零年落成,为学校提供了良好的服务,有助学校建立卓越的体育声誉。快到2014年,这座大楼就不再适合使用了。
Latymer Upper School is an independent school for 1,200 pupils in Hammersmith, west London. The existing sports facilities were completed in 1980 and served the school well, helping to establish its reputation for sporting excellence. Fast forward to 2014, and the building was no longer fit for purpose.
© Guy Archard
C.Guy Archard
学校希望保持这种强烈的体育血统,这使得学校决定重新开发现有的项目,建立一个最先进的游泳池和体育中心。希望这不仅能培养下一代世界级的运动员,而且能在整个学生群体中培养出更广泛的健身和健康意识。
The school’s ambition to maintain this strong sporting pedigree led to the decision to redevelop its existing offer with a state of the art swimming pool and sports centre. It was hoped that this would not only cultivate the next generation of world-class athletes, but also develop a wider appreciation of fitness and wellbeing within the whole student body.
© Guy Archard
C.Guy Archard
雄心勃勃的简报确定了需要:
The ambitious brief established the need for:
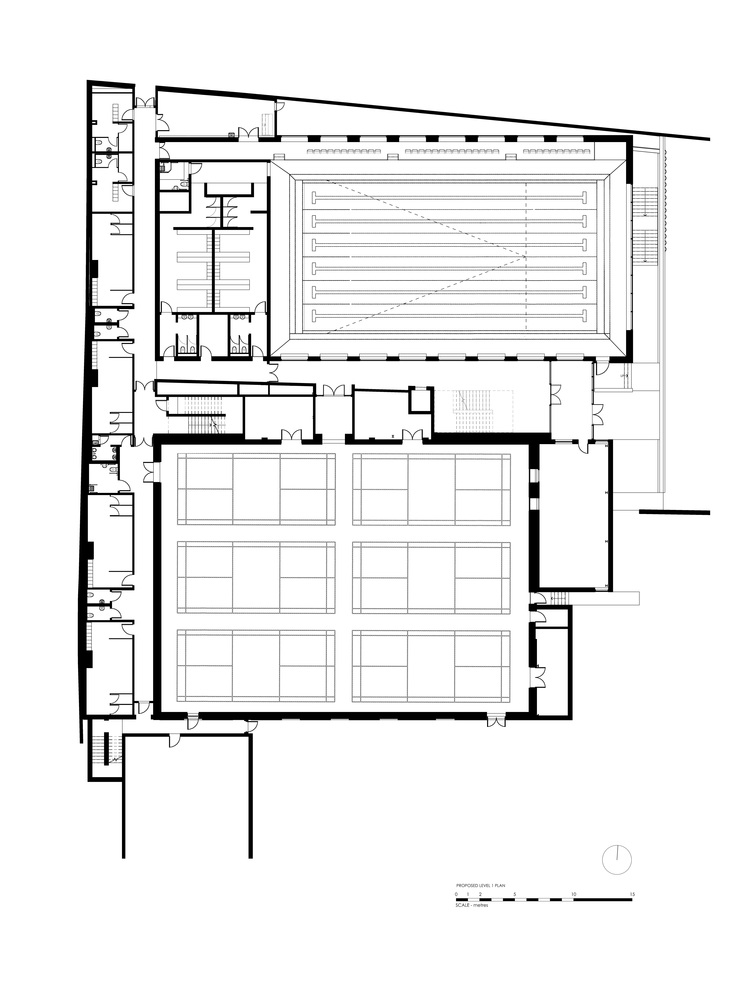
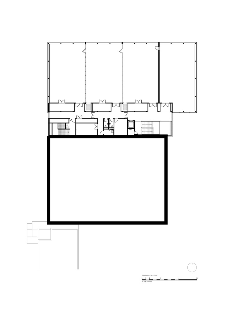
-六线泳池(25米),设有浮地,可供以速度为方向的比赛游泳,水深为两米,而教学及社区用途则较浅。-观众座位。-健身套房-三个大型多用途演播室,可合并成一个考场。-翻新现有的六间运动场。-支助工作人员住宿。
-A six lane swimming pool (25m) with a floating floor, to enable a water depth of two metres for speed orientated competition swimming, and shallower water for teaching and community use. -Spectator seating. -Fitness suite. -Three large multi-purpose studios which could be combined to produce an exam hall. -Renovation of the existing six court sports hall. -Support accommodation for staff.
© Guy Archard
C.Guy Archard
该网站从物理和规划两方面都提出了相当大的挑战。
The site presented considerable challenges from both a physical perspective and a planning context.
具体的限制包括:A4下的行人隧道,这是一条繁忙的主干道,到达北部边界中心的地点;以及现有的运动场,必须保持目前的位置。这些限制在很大程度上决定了新大楼的位置,新大楼需要填满可用的场地,以满足学校的需要。
The physical constraints included; a pedestrian underpass beneath the A4, a busy arterial route which arrives on the site in the centre of the northern boundary; and the existing sports hall, which had to remain in its present position. These constraints largely dictated the location of the new building, which would need to fill the available site to accommodate the school’s requirements.
从规划的角度来看,虽然这是在取代现有的设施,但该幅土地位于一个自然保育区内的两幢列入名单的建筑物附近。
From a planning perspective, whilst this was replacing an existing facility, the site was located within the vicinity of two listed buildings in a conservation area.
© Guy Archard
C.Guy Archard
设计解决方案将运动场和游泳池块的两个简单的几何体积与包含主要水平和垂直循环路线的空间脊柱连接起来。通过将工作室空间堆放在游泳池大厅的顶部,这个街区可以在非常小的足迹范围内支持广泛的活动。由于建造了一个大地下室,大楼的大部分厂房被从计划的主体中移除。这样做的好处是增加了核心功能的可用空间,降低了结构的整体高度,从而产生了一座非常优雅和高效的建筑。
The design solution linked the two simple geometric volumes of the sports hall and pool block with a spine of accommodation that encompasses the main horizontal and vertical circulation routes. By stacking the studio spaces on top of the pool hall, this block supports a wide range of activities in a very small footprint. The creation of a large basement allowed for much of the building’s plant to be removed from the main body of the plan. This has the benefit of increasing the available space for the core functions and reducing the overall height of the structure, thereby producing a very elegant and efficient building
从外部看,建筑的表现非常简单和克制,有一个纤维水泥和玻璃调色板。体育馆和游泳池的主要体积都是用灰色纤维水泥板覆盖的,不同的色调和大小都可以调节。演播室的空间表现为一个在围墙上方漂浮的铸玻璃盒子。利用透明和半透明面板的混合,工作室内的运动将呈现一个不断变化的外观:一个活生生的画布,它将通过阴影和剪影,在白天和夜晚使高地充满生气。
Externally, the expression of the building is very simple and restrained, with a palette of fibre-cement and glass. The primary volumes of the sports hall and swimming pool are clad in grey fibre–cement panels, modulated with different shades and sizes. The studio space is expressed as a cast-glass box ‘floating’ above the perimeter wall. Utilising a mixture of clear and translucent panels, the movement within the studios will present a constantly changing appearance: a living canvas which will, through shadow and silhouette, animate the elevation by day and night
© Guy Archard
C.Guy Archard
产品说明。建筑概念是一个含玻璃盒子的活动工作室和一个包含游泳池的混凝土盒。上框的玻璃窗需要半透明的,具有有限的透明度以提供隐私和隔热以提供热效率。自支撑、无框架轮廓面板被使用-喷砂清理-完成了这些目标。
Product Description. The architectural concept was a glass box - containing activity studios and fitness - over a concrete box containing a pool. The glazing to the upper box needed to be translucent with limited transparency to provide privacy, and insulation to provide thermal efficiency. Self-supporting, frameless Profilit panels were used - sandblasted and clear – which fulfilled these objectives.
Architects FaulknerBrowns Architects
Location Hammersmith, London W6, United Kingdom
Category Gymnasium
Area 3500.0 m2
Project Year 2016
Photographs Guy Archard
Manufacturers Loading...
客服
消息
收藏
下载
最近

















