查看完整案例

收藏

下载
Keely Espinoza
Hartford, SD, US
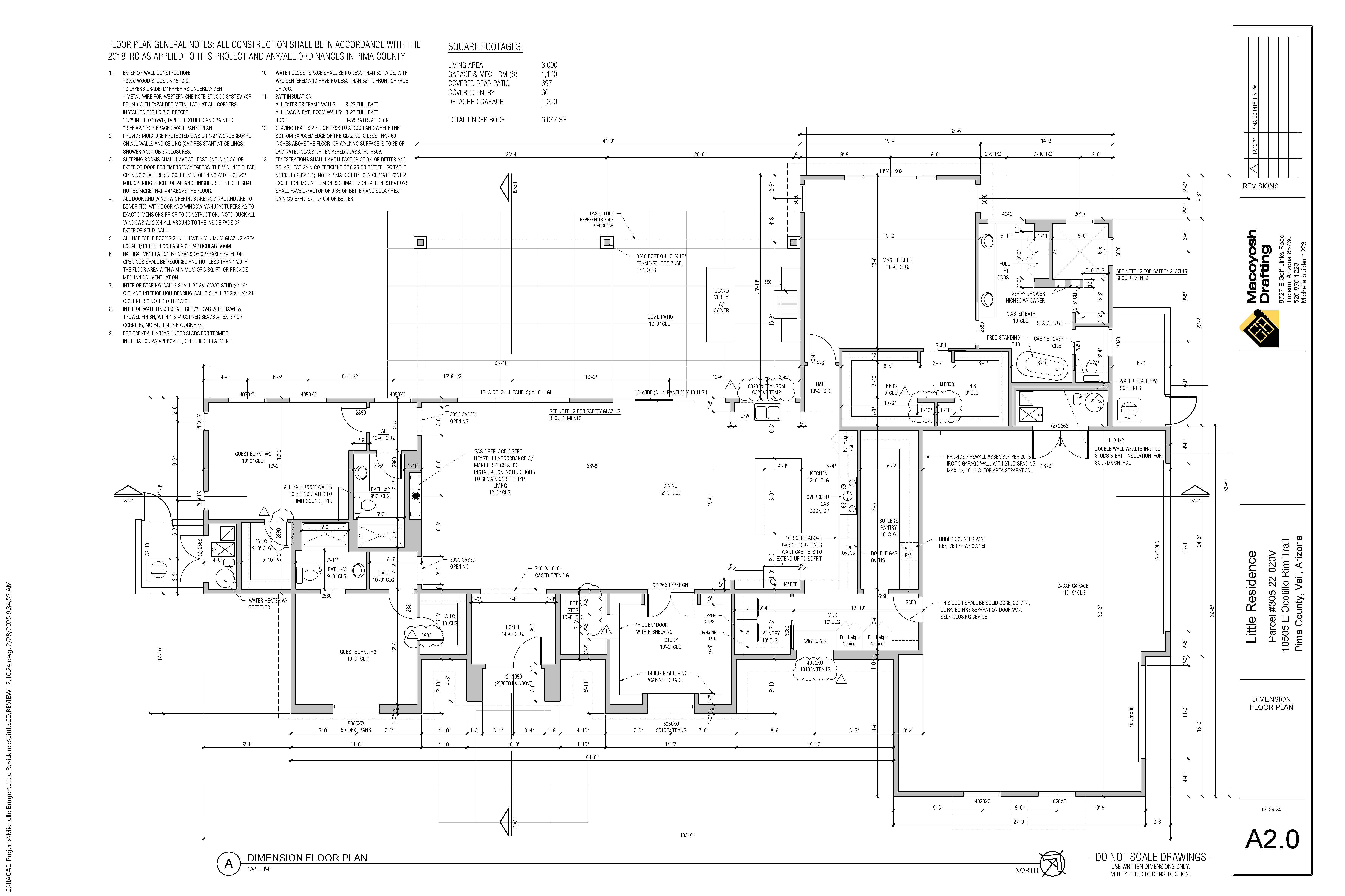
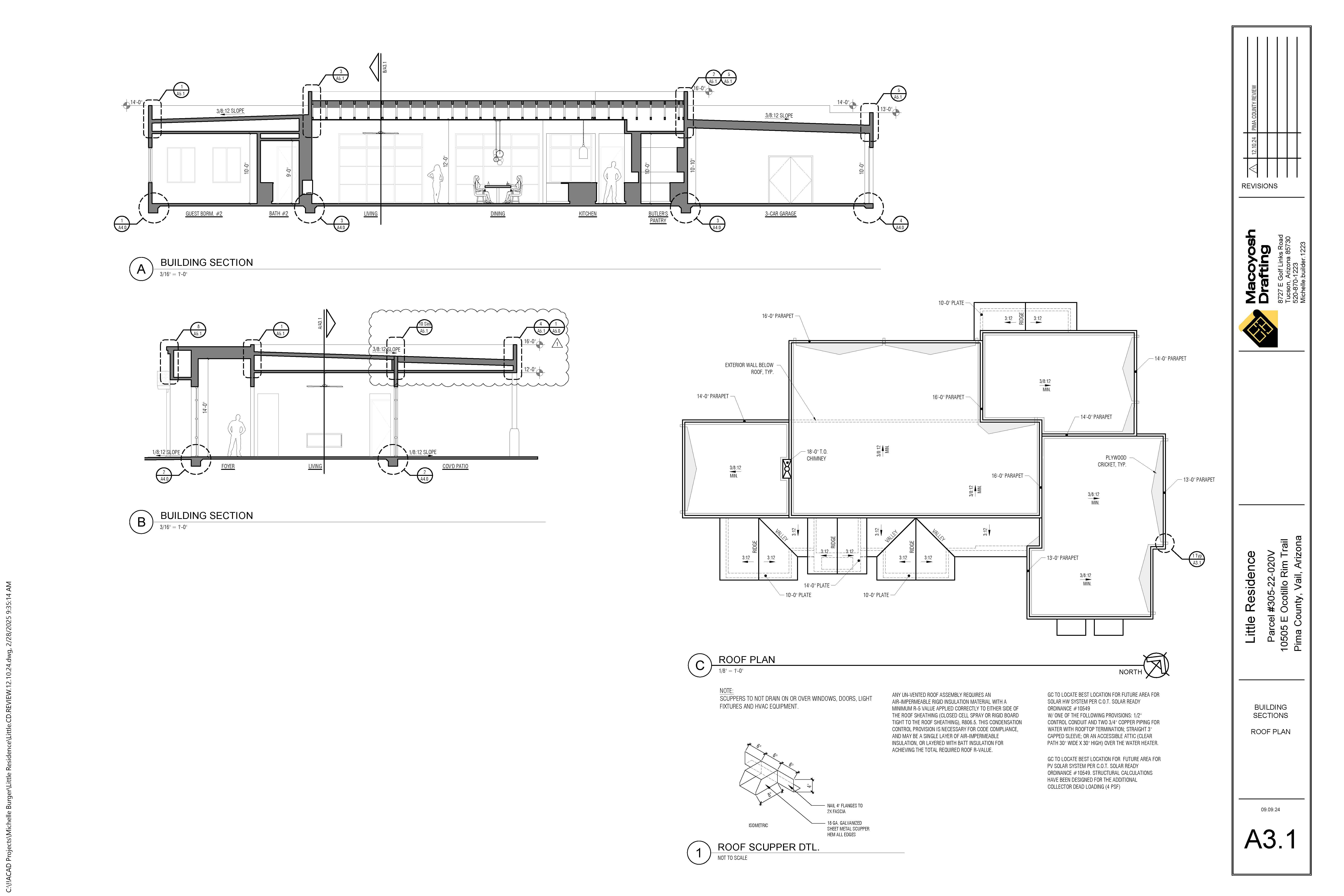
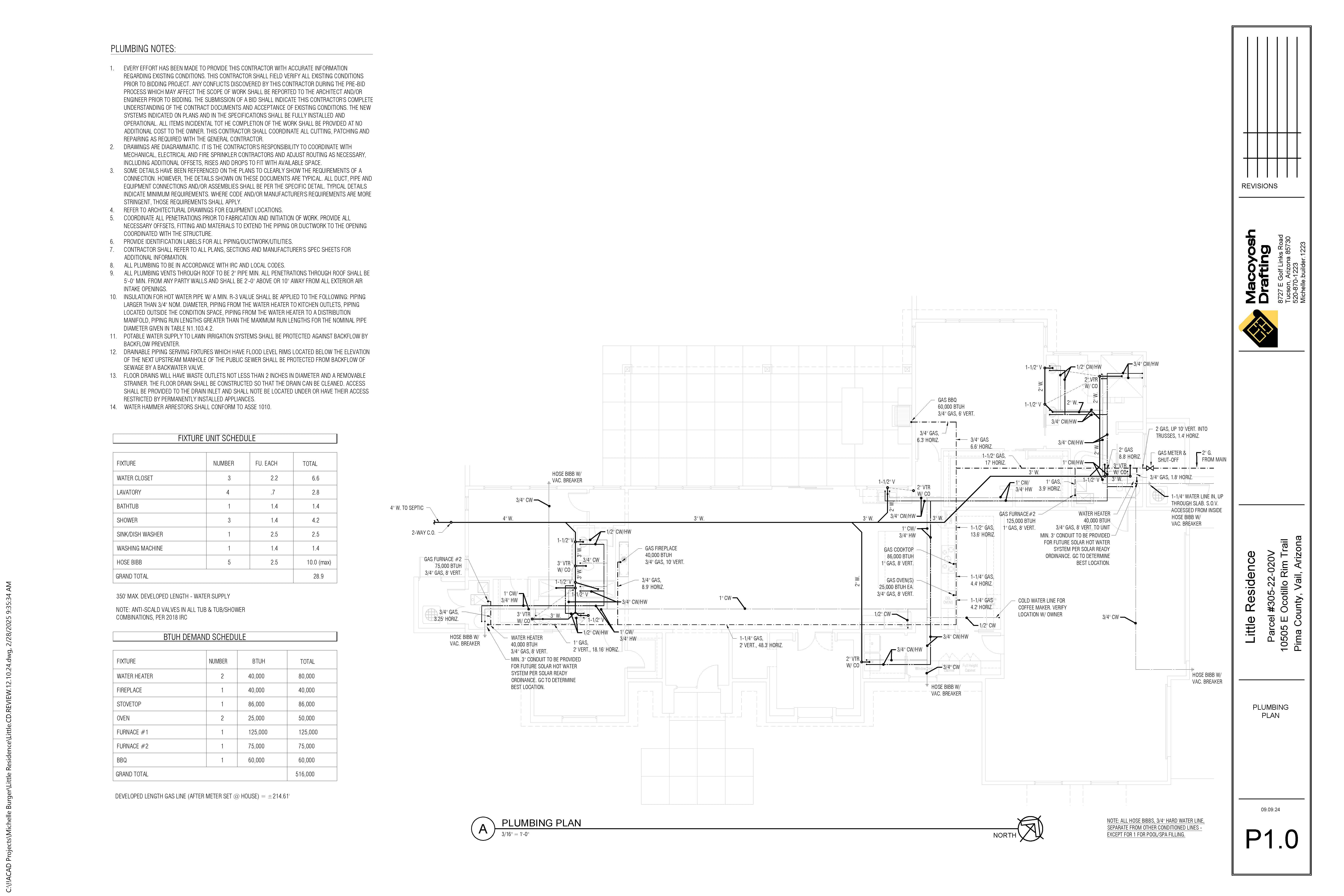
Little Residence
The majority of construction documents I do is in the state of Arizona. They require: 1) Site Plan 2) Dimension Floor Plan 3) Exterior Elevations/Building Sections 4) Foundation Plan & Details 5) Roof Framing Plan & Details 6) Plumbing Plan 7) Mechanical Plan 8) Electrical Plan
On the attached set, I also needed to provide a braced wall plan. This is not always required but I'm able to do it when it is.
A lot of times in Arizona, the site they build on are sloped at greater than 15% and extensive grading is required. There are many rules and regulations attached to this. I'm able to manipulate contours and provide the required site plan as needed.
Status:
Under Construction
Location:
Tucson, AZ, US
My Role:
I designed this home from Client's initial concept and created the Construction Documents
客服
消息
收藏
下载
最近








