查看完整案例


收藏

下载
© Per Kristiansen
c Per Kristiansen
架构师提供的文本描述。位于Sundbyberg的室内游泳池,最初由艾克奥斯廷于1978年设计,现已扩大,以容纳该市不断增长的人口。新增加的包括一个新的25米游泳池,一个高度可调的底部,一个儿童游泳池,一个新的侧门,更衣室,办公室,会议室和一个大型太阳甲板。该项目还包括一个由独立经营者经营的新的健康中心。
Text description provided by the architects. The indoor swimming pool located in Sundbyberg, originally designed by Åke Östin in 1978 has now been expanded to accommodate the municipality's growing population. The new addition includes a new 25-meter pool with a height adjustable bottom, a children´s swimming pool, a new side entrance, locker rooms, offices, conference rooms and a large sun deck. The project also included a new wellness center run by an independent operator.
© Per Kristiansen
c Per Kristiansen
这座新建筑形成了一个单独的空间,指向西边的运动场。新的游泳池空间由两个平行的木镶板墙所支撑,这些墙似乎是从一个天然的花岗岩露头和一个新的混凝土地基上冒出来的-它的特点是粗糙的木质模板仍然暴露出来。巨大的太阳甲板向南延伸,拥抱旧建筑的体积,把旧的和新的连接起来。在温暖的夏天,当大玻璃门打开时,太阳甲板就成了新游泳池空间的自然延伸。
The new building forms a separate volume that directs itself toward the sports field to the west. The new pool space is cradled by two parallel wood-paneled walls that seem to spring from a natural granite outcropping and a new concrete foundation - its characteristic, rough-hewn wood formwork still exposed. The large sun deck opens up to the south, embracing the older building volume and connecting the older to the new. On warm summer days, when the large glass sliding-doors are open, the sun deck becomes a natural extension of the new swimming pool space.
© Per Kristiansen
c Per Kristiansen
Sundbyberg的游泳馆在很多方面都是瑞典20世纪70年代建造的许多游泳馆的典型例子-这是一座简单的砖砌建筑,没有不必要的装饰,旨在为市民提供学习游泳的机会。尽管它的谦逊和功利的野心,它显示了一个清晰的设计和一些精心挑选的元素和细节,以加强建筑的超乎寻常。
Sundbyberg’s swimming hall is in many ways a typical example of the many swimming halls that were built in Sweden in the 1970’s – a simple brick building devoid of unnecessary embellishment, meant to provide citizens with the opportunity to learn to swim. Despite its humble and utilitarian ambitions, it demonstrates a clarity of design and a number of carefully chosen elements and details that enhance the architecture beyond the ordinary.
© Per Kristiansen
c Per Kristiansen
游泳池位于弗雷德加坦的中央街道上,坐落在一座岩石小丘上,与周围的建筑物相比,它的平面略显偏斜,这是这段时期的典型情况。屋顶的轮廓是突出的波纹金属屋顶,它延伸到正面上方的窗户,为游泳池空间提供自然光。外部砖在内部重新出现,部分作为空心砖,以改善声学。
The swimming pool is located along the central street of Fredsgatan, raised above the surrounding landscape upon a rocky knoll and slightly skewed in plan compared to the surrounding buildings, as was typical for the time period. The roof's profile is accentuated by the corrugated metal roofing which stretches down onto the façade above a strip of windows that provide the pool space with natural light. The exterior brick reappears on the inside - partially as airbrick, to improve the acoustics.
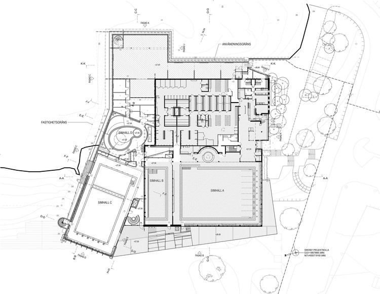
Floor Plan
由于建筑物是混凝土结构,对湿度的控制要求很高,我们将木立面设计成一系列“漂浮”在建筑围护结构外的面板,便于日后维修。这个木制正面指的是原建筑的水平特征,而新的游泳馆的大悬臂玻璃幕墙则明显是垂直的。山墙正面的坚固的玻璃横梁与水池本身的车道对齐,有助于遮阳池子。
Since the building is a concrete structure with high demands for humidity control, we designed the wooden facade as a series of panels that “float” outside of the building envelope, easy to demount for future maintenance. This wooden facade refers to the original building’s horizontal character, while the large cantilevered glazed gable façade of the new swimming hall is clearly vertical. The robust glulam beams of the gable façade align with the lanes of the pool itself and help to shade the pool from the sun.
© Per Kristiansen
c Per Kristiansen
在大厅内,木头以声板的形式重现,这种材料也可以在原来的室内找到。又一次,气砖被用来改善声学,但这一次,他们被釉在一种令人愉快的绿松石颜色。高的房间给空间提供了额外的质量,与较老的大厅的较低的高度形成对比。
Inside, wood recurs in the form of acoustic panels in the large swimming hall, a material which can also be found in the original interior. Again, airbricks are used to improve acoustics, but this time they are glazed in a cheerful turquoise color. The lofty height of the room gives the space an added quality, in contrast to the more modest height of the older hall.
© Per Kristiansen
c Per Kristiansen
Sundbyberg的游泳池于2015年1月1日落成,并立即被新老游客视为巨大的成功,这反映在游客人数的急剧增加上。游泳池对所有人开放,是第一个通过LGBTQ认证的瑞典室内游泳池,室内设有一个性别中立的更衣室,可以私下更换。新的游泳池是一个多池,这意味着底部是可调节的高度,因此它可以适应各种需要的训练,儿童和成人游泳课程。游泳池还配备了电梯平台,方便残疾人使用。游泳池作出了引人注目的努力,使社区所有居民都受到欢迎,这在每年一度的圣诞浴等活动中都可以看到,这些活动特别针对无家可归和经济上处于不利地位的人。
Sundbyberg’s swimming pool was inaugurated on January 1, 2015 and was immediately seen as a great success by both new and old visitors, reflected in the dramatic increase in visitor numbers. The swimming pool is open to all and is the first LGBTQ-certified Swedish indoor swimming pool with a designated gender-neutral locker room where it is possible to change in private. The new pool is a multi-pool, which means that the bottom is adjustable in height, thus it can adapt to the varied needs for training, children and adult swimming classes. The pool is also equipped with lift-platforms and is handicap-accessible. The swimming pool makes a noted effort to make all residents of the community welcome, as can be seen in events such as the annual Christmas Bath, that is particularly aimed at the homeless and economically disadvantaged.
© Per Kristiansen
c Per Kristiansen
Architects Urban Design
Location Sundbyberg, Sweden
Category Swimming Pool
Architect in Charge Erik Jarlöv
Area 3500.0 m2
Project Year 2015
Photographs Per Kristiansen
Manufacturers Loading...
客服
消息
收藏
下载
最近

































