查看完整案例

收藏

下载
Biblioteca universitaria / OFFICE Kersten Geers David Van Severen
Biblioteca universitaria / OFFICE Kersten Geers David Van Severen
Bibliotecas
Remodelaciones
Ghent,
Bélgica
Arquitectos:
OFFICE Kersten Geers David Van Severen
OFFICE Kersten Geers David Van Severen
Área:
285
m²
Año:
2014
La nueva biblioteca de la Facultad de Arquitectura y Urbanismo de la Universidad de
Gante
puede ser considerada como una gran pieza de mobiliario tipo pabellón, insertada bajo el balcón de la sala de física existente. El armario accesible de tres pisos forma un perímetro completo alrededor del espacio central, similar a un atrio, imponiendo su escala monumental. Tanto la colección abierta como los libros más preciosos que sólo se pueden consultar, se presentan visiblemente a su alrededor.
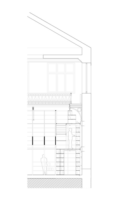
Planta
Corte
El perímetro de los armarios, realizado completamente como una construcción atornillada de elementos de acero prefabricados, contiene pasajes, escaleras, escritorios y pasillos, y organiza tanto la propia biblioteca como el acceso a las múltiples funciones de oficinas administrativas y auxiliares. Un sistema de paneles perforados verticalmente permite que los armarios se cierren, protegiendo la colección durante conferencias y otros eventos, manteniéndolos visualmente presente.
Ghent, Bélgica
OFFICE Kersten Geers David Van Severen
Acero
Acero
客服
消息
收藏
下载
最近













