查看完整案例

收藏

下载
Vila u Splitu od bračkog kamena
Igor Conić,
24.06.2016.
Kuća za odmor projektovana je na parceli okruženoj maslinicima s pogledom prema Bračkom kanalu i plavetnilu Jadranskog mora.
Prema projektu studija
DAR612
, urađen je projekat vile Ana nadomak Splita od 300 kvadrata na parceli od 800m2. Pošto je kuća okrenuta ka severu, to je uslovila dvostranu orijentaciju dnevnih prostora, a urbanistički uslov kosog krova inicirao je podelu na dva volumena spojena ravnim krovom.
Jedan deo kuće obložen je čuvenim bračkim kamenom koji se vadi sa susednog ostrva.
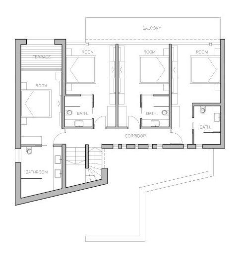
Prizemni deo kuće namenjen je odmoru i dnevnim aktivnostima a na spratu su smeštene četiri spavaće sobe s kupatilima.
Kuća je oblikovno podeljena na kameni postament vezan uz teren i levitirajući beli korpus dela sprata ispod kojeg su smešteni dnevni sadržaji.
U središnjem delu prizemlja smeštena je trpezarija, koja se u produžuje na severnu i južnu terasu, čineći tako središnju osu kuće.
Severna terasi završav se otvorenim bazenom, a južni kraj definisan je jacuzzijem.
客服
消息
收藏
下载
最近














