查看完整案例

收藏

下载
Casa moderna de dos pisos en México, analizamos un diseño único con interiores contemporáneos tradicionales
diseño de casa moderna de dos pisos ubicada en México
, más precisamente en Valle de Bravo. de manera que sin más preámbulo vamos a dirigirnos directamente al grueso del post del día de la fecha, esperamos que les sea de gran ayuda de cara a respectivos trabajos o estudios… comenzamos!
Fachada de casa de dos pisos en México
Bien sabemos que la arquitectura en cierto sentido es la herramienta más importante del hombre para poder interactuar con el paisaje o con el entorno que nos rodea, solamente a través de ella podemos apropiarnos un paisaje y vivirlo. En el ejemplar de hoy, un diseño de
casa moderna en México
, la intención es justamente apropiarse del entorno privilegiado en el que se sitúa y sentir el lago como parte de la vivienda.
Fachada de casa moderna de dos pisos en México – vista frontal
La vista frontal nos muestra la
fachada de una casa moderna con piedras
, la forma de la vivienda es característica de las casas de la zona y es impuesta por un reglamento local. La vista principal del lago hacia el norte y el clima frío sub-húmedo obligó a buscar orientación solar en otras direcciones, para ello se abrieron balcones laterales gracias a los cuales se hizo posible recibir la radiación solar en las mañanas y en las tardes, también aprovechando los ángulos más agudos de la forma de esta
casa moderna de dos pisos
.
La mezcla de materiales naturales como: piedra, madera, acero y cristal; junto con los espacios agudos de gran altura crean un ambiente cálido y contemporáneo. Definiendo esta construcción, podemos decir que es de concepción moderna con materiales y técnicas de construcción tradicionales del sitio, una
casa con fachada de piedra
(fachada posterior) cuyos interiores comparten una definición tradicional y rústica a su vez.
Fachada posterior en piedra para casa de dos pisos – vista posterior
Diseño de interior moderno para casa de dos pisos
Comedor con salida al patio – diseño interior moderno
Diseño interior tradicional contemporáneo con salida al patio
Escaleras para casa de dos pisos – barandal en color negro
Diseño de cocina moderna para casa de dos pisos
Interior rústico para casa de dos pisos
Diseño de cuarto moderno con vistas al lago
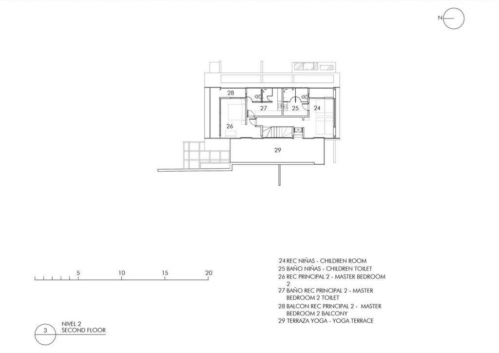
Planos de casa de dos pisos en México
Plano de planta – Planta baja
Primer piso
Segundo piso
Corte Longitudinal
Corte longitudinal casa moderna de dos pisos
Fachada norte
Fachada oeste
客服
消息
收藏
下载
最近






















