查看完整案例

收藏

下载
Blending Japanese traditional and modern architecture, this Kyoto guest house is a quiet stunner
By
Alexander Walter
B.L.U.E. Architecture Studio's makeover emphasizes the essence of traditional Kyoto culture: the courtyard. © Toshiyuki Yano
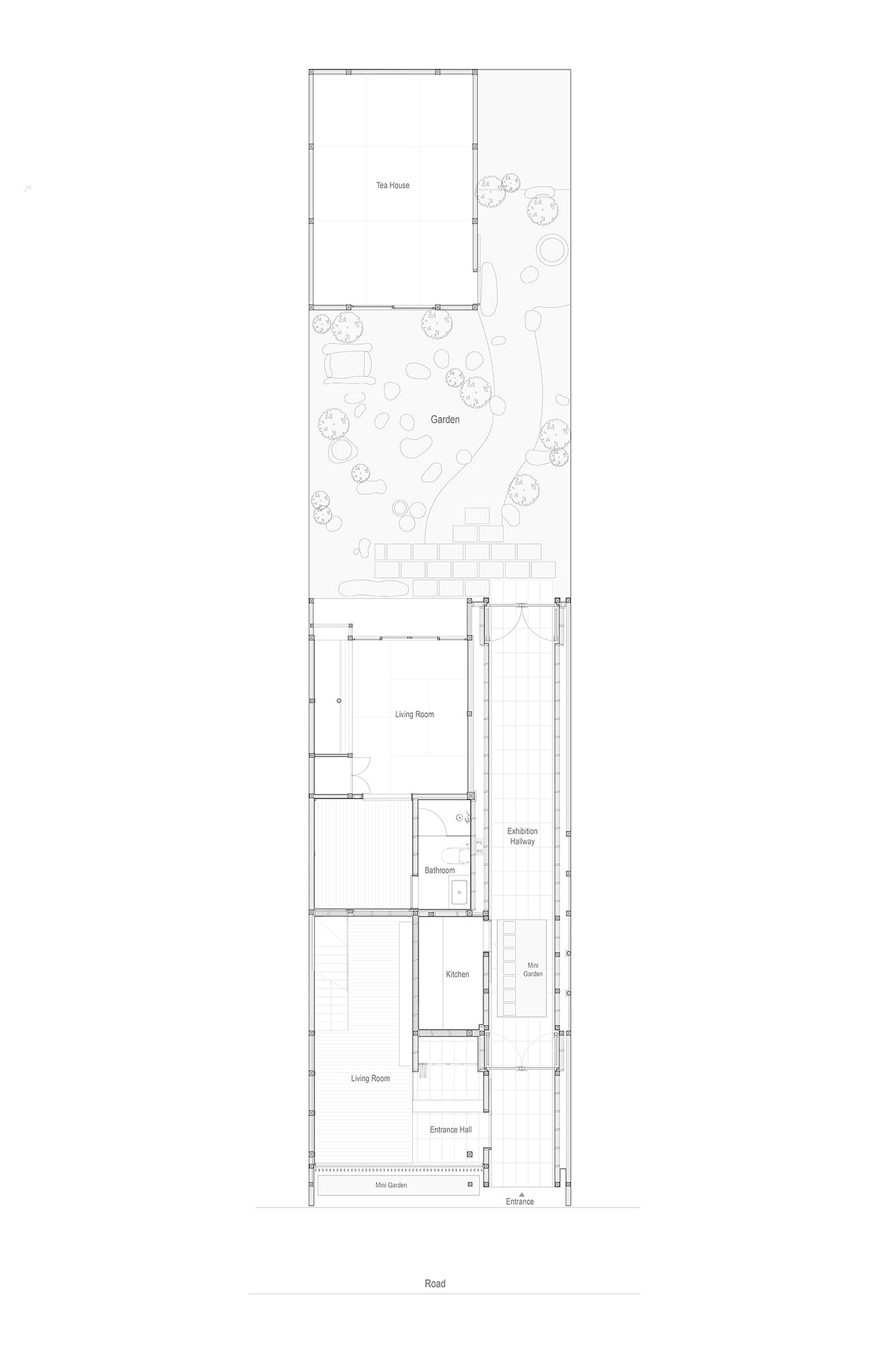
Tucked away in the dense network of narrow streets in Kyoto's central Gojo Karasuma district, an old house has come back to life and—after a thorough, yet thoughtful, makeover—enjoys now a refreshed existence as a boutique guest house for tourists visiting the area.
In charge of the redesign was
B.L.U.E. Architecture Studio
, a young Japanese practice founded in 2014 by Yoko Fujii and Shuhei Aoyama in Beijing. An emphasis on structure, materiality, and light can be traced throughout B.L.U.E.'s work, primarily in Beijing, Shanghai, Chongqing, and increasingly in other Chinese cities.
© Toshiyuki Yano
Project description from the architects: "Located at Gojo Karasuma, Kyoto, the original house has more than 100 years history. It is a traditional timber-structure house in typical form of Kyoto house, and the main skeleton remains in good condition except for some random later rebuilt. The owner intended to transform it into a unique boutique homestay."
© Toshiyuki Yano
© Toshiyuki Yano
"The program’s principle is to try our best to preserve as much
original building as we could, and at the same time, we need to update
the house to meet the demand of modern life, which leads to a mix of old
and new building style spontaneously, like a hybridism.
Different
from the normal homestay, we provide a small cultural exhibition museum
space in the house, that is why the program is called as
“He-courtyard”(合庭)."
© Toshiyuki Yano
© Toshiyuki Yano
© Toshiyuki Yano
"Design inserts a purely modern style tunnel as the main entrance, the
tunnel extends outside to the street, inside through the main house and
finally reach the courtyard at the back. Thus allows visitors can look
deep inside to the view of the courtyard when they pass by the street.
It is the new interacting dialogue scenes which aims to express the
essence of traditional Kyoto cultural – the courtyard.
Except for the function of connecting different spaces, the tunnel is
also served as exhibiting hall, providing a clear platform to display
different kinds of old Japan collection."
© Toshiyuki Yano
© Toshiyuki Yano
© Toshiyuki Yano
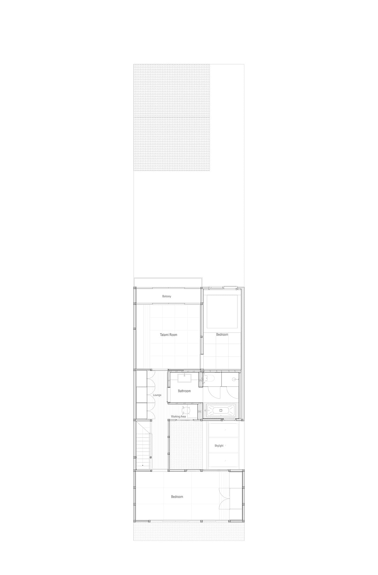
"To meet the new demands of modern life, we reorganised the interior
space of the main house without destroying the original structure, we
reframed the staircase and changed its direction since the old staircase
was steep and narrow.
In addition, we added modern bathrooms for both first and second floors, which increase the comfortability of visitors’ stay.
The strengthening of original structures is also very essential. We
reuse the old house’s wood planks to make the store drawers underneath
the staircase, reflecting the house’s historical emotion."
© Toshiyuki Yano
© Toshiyuki Yano
© Toshiyuki Yano
"When cleaning the back yard, we dug out many historical stone and
stone cylinder and the design of backyard’s landscape is based on these
stone, meanwhile, the original maple tree was kept.
By combining modern and tradition style, we created a mix of Japanese
style and modern style courtyard, making an infinite garden space
within such a small area."
© Toshiyuki Yano
© Toshiyuki Yano
"As for the selection of materials, we give priority to logs and soil
texture coating for the main body, brass and old metal for handles and
other hardcore. Aimed at keeping the original natural texture of
materials, we try to continue the beauty of plainness of the old
building.
The combination of old timber structure and the new wooden furniture
can be seem in each room, which creates an interesting scene. In a
seemingly contradictory expression, we hope to lead people to experience the trace of different era of Japan in this house."
Project Details:
Project Name: Guest House in Kyoto
Location: Kyoto, Japan
Architects: Shuhei Aoyama, Yoko Fujii, Huiyong Yang / B.L.U.E. Architecture Studio
Size: 2-story building
Site area: 185 sqm
Building area: 120 sqm
Construction period: December 2017
客服
消息
收藏
下载
最近



























