查看完整案例

收藏

下载
Waves on the grass. Shenning Art Museum, Jining Museum by Nishizawa Ryue [Shuning - Shandong] China
Waves on the grass. Shenning Art Museum, Jining Museum by Nishizawa Ryue
The first museum in China designed by Japanese architect, Ryue Nishizawa was opening in May 2019, with its first exhibition “Spirit of Ink Art: New Creation from Traditional Thoughts and Wisdom”, which is part of a series of exhibitions to promote Chinese culture.
The museum is located in Taibai Lake New District, Jining, Shandong Province, China, an area that is an important foothold of traditional Chinese culture.
Jining Art Museum complex forms part of a larger master plan. In order to integrate the museum into this context, the architects proposed a single-story building with a large organically-shaped roof. Below, exhibition galleries are complemented by a library, offices, and other back-of-house facilities.
First words by Ryue Nishizawa at the opening ceremony expressed the intention to maintain traditional Chinese architectural elements in the project. Under the lotus-shaped, free-floating roof, for example, 800,000 blue locally sourced bricks were used as decorative materials to symbolise the relationship between Chinese cultural traditional construction methods and modern civilisation.
The other two elements of the complex, the building and pergola, repeat the same language of flat roofs in organic forms, like lotuses moved by the waves. The pergola that takes the form of a very thin canopy that seems to flow like a river is reminiscent of the proposal designed by SANAA for the 2009 Seperntine pavilion, winding through the Hyde Park trees.
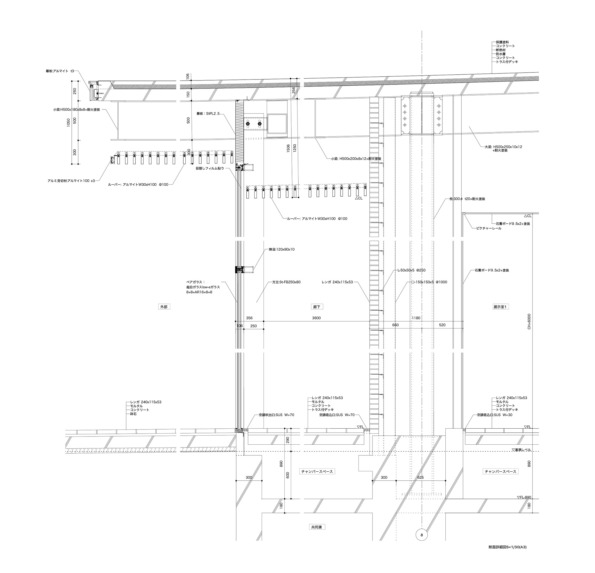
Construction detail. Jining Museum by Nishizawa Ryue. Image courtesy of Office of Ryue Nishizawa.
Jining Museum by Nishizawa Ryue. Photography by Paulo dos Sousa.
Project description by Ryue Nishizawa
This project was to design a museum with a park and café in Jining City, Shandong Province, China. It was completed in May 2019. The site is in part of a large development area about twenty minutes by car from the city. This is an extensive development project that will become a new cultural centre of Jining City. The plan includes four cultural facilities including a library, three different types of museums, commercial facilities, an office, and a park. This new art museum was planned inside the park. The site itself is surrounded by nature with a large lake adjacent to the property, as well as greenery and some waterfront space inside the lot.
We wanted the museum to blend into nature so the main architectural design was to incorporate an organic curve shape to the big roof. The big roof height gradually changes from 4 to 13 meters so that it naturally continues from the organic landscape of the park. The structure itself is made of steel frames. Approximately half of the space underneath this roof is used as park space and the rest of the space functions as museum space. Large and small exhibition rooms and various other rooms are arranged independently in the museum space, surrounded by glass corridors to form courtyards.
The corridors are not only connecting to each exhibition space but also become multi- function spaces as they change their width for particular spaces such as cafés, lounges and book shops. The park-side space is covered by the eaves on the outer periphery of the big roof, which is a semi-outdoor space that can also be used as part of the museum, but it can also be approached directly from the park side and used independently. We hoped the roof to act as a sunshade for people during hot summer days in Jining. A sense of transparency and brightness is created by the courtyards, and at the same time, shady and dark spaces exist that are made by a big roof and a solid volume of bricks. We aimed for this architecture to become part of the park and harmonizing with the surrounding landscape.
In this project, we used local bricks to create a sense of contrast against the light and transparent feelings of the steel frames. These bricks were fired in traditional kilns and were made with time-honoured materials and recipes. Bricks are an attractive material for us to directly feel and appreciate China’s history and the earth’s strength. We hope this architecture would not only be modern and transparent but also possess a sense of connection to the tradition and history of China.
Ryue Nishizawa Architects. Basic design / implementation design (supervision).- Ryue Nishizawa, Motoyasu Matsui, Kenichi Fujisawa, Takuya Yokoyama, Rio Uematsu.
Implementation design.- East China Architectural Design & Research Institute Co., Ltd. UD Architectural Design Institute. Responsible / Xiaoyan Zhang, Lisha Zhang.
Structure.- East China Architectural Design & Research Institute Co.,Ltd. UD Architectural Design Institute / Responsible: Feng Jian (Jian Feng).
Structure (basic design + detailed design advisory).- Arup / Persone in charge: Mitsuhiro Kanada, Masaki Tokubuchi, Katsuya Sakurai.
Equipment.- East China Architectural Design & Research Institute Co., Ltd. UD Architectural Design Institute / Responsible: Ji Zhang, Lingjie Shi, Yi Lu.
Equipment (basic design + detailed design advisory).- Arup / Persone in charge: Hirotaka Ogihara, Kazuhiro Hashida, Saki Iwamoto.
Façade (basic design + detailed design advisory).- Arup / Persone in charge: Koji Shigenaga.
Landscape (basic design + detailed design advisory).- GA Masako Yamazaki, Hung Shu-Ting. Implementation design.- Shanghai Yuanjing Architecture Engineering Corporation Limited / Person in charge / Feng Yang.
Implementation design.- East China Architectural Design & Research Institute / Persone in charge: Jia Luo.
Structure.- East China Architectural Design & Research Institute / Persone in charge: Zhishen Shi, Pengzhi Wang.
Equipment.- East China Architectural Design & Research Institute / Persone in charge: Yifan Wei, Yun Gu, Chen Ji.
Project Management.- Raiser Architects, Shanghai / Persone in charge: Lihang Jiang, Heping Lei, Lin Che.
Supervision.- Shandong Dongfang Management Consulting Co., Ltd. / Persone in charge: Tao Sheng.
Ryue Nishizawa Architects (cooperation with design supervision)
Architecture.- 中建三局集团有限公司(China Construction Third Engineering Bureau Co.,LTD) / Persone in charge.- Huanran Xiong.
Equipment.- China Construction Third Engineering Bureau Co., LTD.
Electricity.- China Construction Third Engineering Bureau Co., LTD.
Air-conditioning.- China Construction Third Engineering Bureau Co., LTD.
Interior: Suzhou Gold Mantis Construction Decoration Co., Ltd. In charge / Wei Wu.
Curtain wall.- China Construction Shenzhen Decoration Co., LTD In charge / Yunmíng Xiong.
Site dimentions.- 151,711m².
Building area (footprint).- 14,094m².
Floor area.- 14,299m², 1st basement floor (basement floor) / 6191m², 1F / 8,108m².
Construction rate.- 0.093%
Number of floors.- above ground floor, below grade 1st floor
Ceiling height (floor height).- 2794 ~ 10,594mm Ceiling height (exhibition floor height).- 6,000 ~ 9,900mm
Highest eave height.- 13,400 mm
Highest height.- 13,517mm
Parking space.- 61 cars
Design phase.- October 2014 (October) -November 2016 (November).
Construction phase.- December 2016 (December) -April 2019 (April).
Main structure.- iron structyure.
Pile / foundation.- concrete pile.
External finish in Roof.- Asphalt sheet waterproof + insulation + concrete + protective paint (asphalt sheet + insulation + concrete).
Outer wall.- brick.
Aperture.- Curtain wall (8 + 8 + AR16 + 8 + 8 (Ultra White, Low-e)).
External floor.- Brick.
Exterior.- grass.
- Entrance, corridor, lounge, cafe, library.- Ceiling: Anodized louver. Wall: brick. Floor: brick.
- Exhibition room, multipurpose room.- Ceiling: plasterboard (painting). Wall: plasterboard (painting). Floor: brick.
Shuning, Shandong province, China.
Office of Ryue Nishizawa. Paulo dos Sousa.
RYUE NISHIZAWA
Ryue Nishizawa. Architect. Born in 1966 in Tokyo. In 1990, he graduated from Yokohama Graduate School of Architecture, Yokohama National University, and joined Kazuyo Sejima & Associates. In 1995, he founded a firm named SANAA together with Kazuyo Sejima. He established Office of Ryue Nishizawa in 1997. In 2001, he was appointed as Assistant Professor at Yokohama Graduate School of Architecture, Yokohama National University (Y-GSA), and has been a Y-GSA Professor since 2010.
His numerous awards include the Golden Lion Award of the 9th International Architecture Exhibition at the 2004 Venice Biennale of Architecture, and the 2010 Pritzker Architecture Prize.
His main works include: International Academy of Media Arts and Sciences (IAMAS) Multimedia Studio*, Weekend House, Dior Omotesando Store*, 21st Century Museum of Contemporary Art, Kanazawa*, Moriyama House, House A, The Glass Pavilion of the Toledo Museum of Art*, Marine Station Naoshima*, Stadttheater Almer (De Kunstlinie)*, New Museum*, Towada Art Center, ROLEX Learning Center*, Teshima Art Museum. * SANAA design collaborated with Kazuyo Sejima.
客服
消息
收藏
下载
最近










































































