查看完整案例

收藏

下载
Piccoli spazi: 44m2 minimalisti, smart e colorati vicino al Parc des Buttes-Chaumont, a Parigi
Da un bilocale obsoleto ed eccessivamente diviso che si affaccia sul Parc des Buttes-Chaumont, lo studio OUI Architecture ha creato un piccolo spazio dalla circolazione fluida e aperta, luminoso e funzionale.
Nicolas Milon
Nel living di questo piccolo spazio, una libreria modulare (String Furniture) e vernice verde petrolio (Ressource) rivestono una delle pareti in uno spirito anni Sessanta rivisitato. Il pavimento in legno chiaro posato a lastre (Bauwerk).
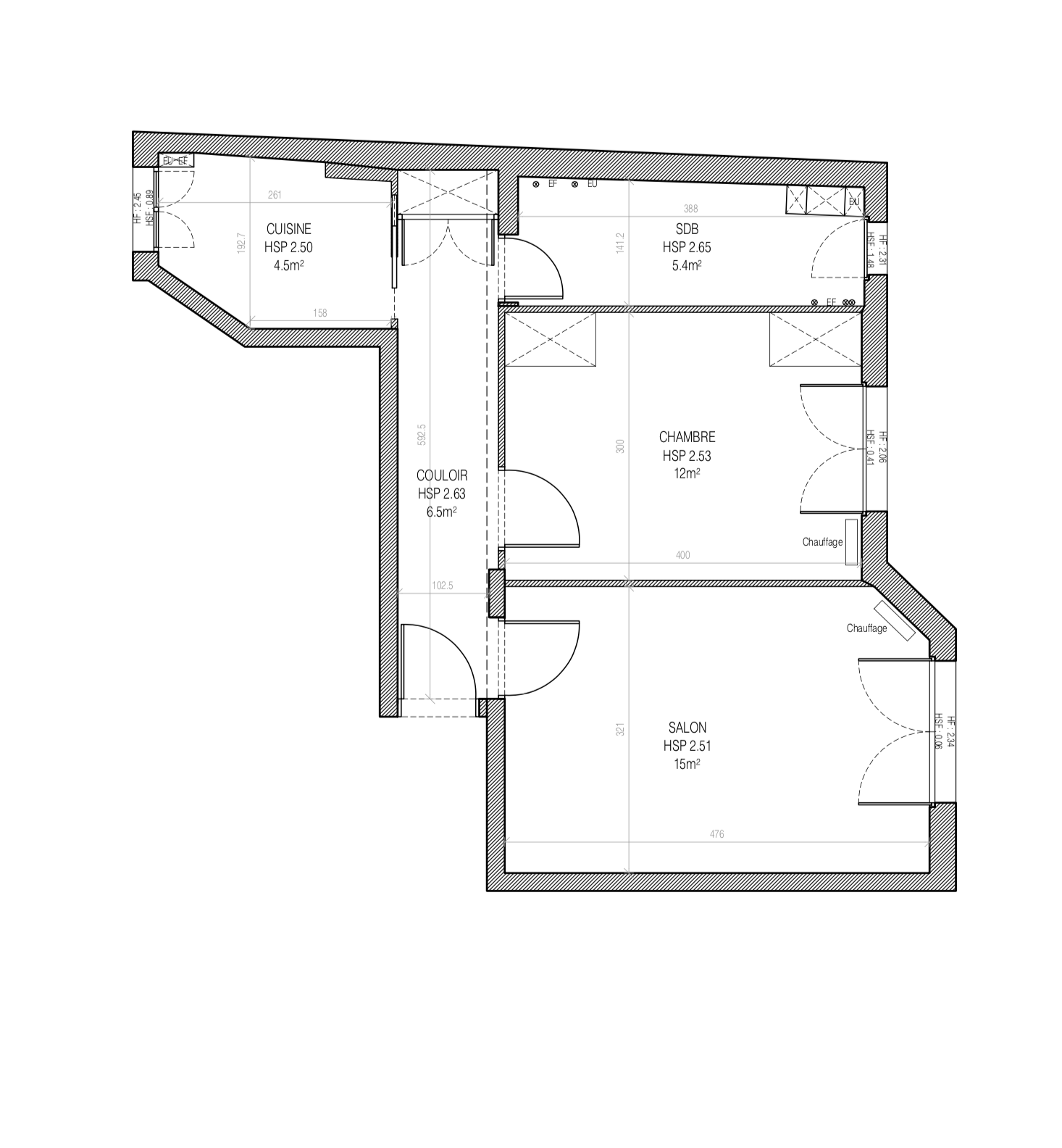
Questo appartamento è piccolo, ma si affaccia sul Parc des Buttes-Chaumont, a nord-est di Parigi, nel XIX arrondissement. Il difetto principale? Era eccessivamente suddiviso e doveva essere riprogettato per avere a disposizione più spazio. "Il proprietario, trentenne, voleva dare priorità alla zona giorno", affermano Noa Peer e Flore Raimbault, architetti fondatori di OUI Architecture. “Vivendo da solo, era importante per lui avere lo spazio per ospitare la sua famiglia e far dormire i suoi ospiti in un vero letto e non su un divano letto. Persona dai gusti minimalisti, voleva avere soprattutto un grande living e una certa flessibilità nell’organizzazione degli ambienti”.
Dopo aver esaminato varie versioni del progetto, ha scelto quella che più gli somigliava: una pianta semplificata con tre nicchie - che integrano l’ingresso, la cucina e altri elementi - dipinte in una tonalità verde petrolio, e con la pavimentazione in micro mosaico bianco. La zona giorno di 25 metri quadrati che integra l’ingresso, il living, la cucina aperta e la zona pranzo, il tutto orientato verso le due grandi finestre che danno sul parco.
"Quando si entra vede subito il verde esterno che ha ispirato il colore delle nicchie, uno dei punti forti dell’appartamento, che sono come un riflesso della vegetazione del Parc des Buttes-Chaumont".
Anche nel living, una nicchia in tono con la parete dello stesso colore. Idee smart e belle
Nella parte più interna dell’appartamento si trovano la zona notte e il bagno, separati da una porta scorrevole e concepiti come una suite aperta, divisa in quattro aree: dressing room, lavanderia, bagno con doccia e camera da letto. Quest’ultima ha una conformazione davvero originale che la rende il secondo punto di forza del progetto. Aperta, con il letto collocato su una piattaforma, non c’è nulla di convenzionale in questa reinterpretazione della cabina da barca, con arredi ridotti al minimo ma che integrano contenitori ovunque, sotto il letto, all’interno della testata e nelle mensole-nicchia in compensato leggero. Un oblò ottagonale funge da finestra, ricordando l’anno di costruzione dell’edificio, il 1930, così come il pavimento in terrazzo, che unifica e amplia visivamente lo spazio e richiama quello utilizzato all’ingresso e nei corridoi. E risponde alla piccola parete a mosaico, questa volta color nero opaco, che conduce dalla camera da letto al bagno. Pochi materiali, quindi, a cui si aggiunge il vetro scanalato che permette si avere un po’ di privacy senza impedire il passaggio della luce. Sul lato del living, con il pavimento in parquet di legno chiaro, si aprono un letto scorrevole integrato sotto la pedana della camera da letto e una piccola panca/punto di appoggio che funge da comodino e può aprirsi facilmente lungo la finestra, mettendo in luce la grande funzionalità del progetto dello studio OUI. Di fronte, una parete verde petrolio, come quella delle nicchie, fa da sfondo colorato a una libreria modulare in noce, che evidenzia il minimalismo di ispirazione anni ’60 che non esclude idee forti e scelte estetiche smart, come in tutto l’appartamento.
La cucina è aperta. Di dimensioni ridotte, ingloba tutto quel che serve. La seconda nicchia conduce all’ingresso. Sul pavimento, le micro piastrelle bianche a mosaico armonizzano con il pavimento in legno chiaro.
Un gioco minimalista di materiali e toni tra la cucina, il living e il vestibolo della zona notte. Le porte scorrevoli a scomparsa rendono più fluida la circolazione e aprono gli spazi.
La camera da letto è rialzata, con vani contenitori ai piedi dei piccoli gradini, all’interno della testata e sulla parete sinistra. La vernice è nera opaca.
Il multistrato di betulla forma un involucro morbido che contrasta delicatamente con il nero opaco.
La camera da letto, pur essendo estremamente funzionale, è stata ridotta al minimo, con un solo letto, che poggia sul suo cassettone. Quest’ultimo nasconde un letto supplementare e una panca, che possono essere aperti sul lato della zona giorno.
Il corridoio che conduce al bagno è in terrazzo (Linea Carrelage) e vernice nera opaca (Ressource). La luce è valorizzata dai contrasti tra i materiali e i colori. L’occhio segue la pendenza della parete fino all’apertura in vetro opalescente.
Il bagno con doccia, in fondo all’appartamento, è esposto a sud-ovest. Lo spazio è generoso, e la luce abbondante.
Nel bagno, il vetro scanalato e il terrazzo veneziano danno vita a un minimalismo moderno e chic. Applique (&tradition). Rubinetti (Neve).
La pianta dell’appartamento prima dei lavori.
La pianta dell’appartamento dopo i lavori.
客服
消息
收藏
下载
最近















