查看完整案例

收藏

下载
穿越時空的甜蜜滋味:長坂常改造函館百年老店「千秋庵總本家」,紅磚咖啡館的日西合璧
函館元町:東西交匯的歷史風華,漫步在異國情調的坡道上
踏上北海道函館的土地,許多旅人總愛流連於蜿蜒的街道,細細品味這座城市的歷史風華。紅磚倉庫、西式建築,以及那訴說著歲月故事的古老藏身之所,無一不勾勒出函館作為國際港口的輝煌過去。而其中,最令人心馳神往的,莫過於那充滿異國情調的元町。
元町坐落在函館山腳下,依山傍海,坡道交錯,宛如一幅充滿層次的立體畫卷。拾級而上,放眼望去,海灣與街景交織成一幅絕美的港口風情畫,令人陶醉其中。作為北海道最早開港的城市之一,函館曾是各國商賈雲集之地,外國人紛紛在此落腳,也因此,元町的建築風格呈現出多元文化的交融。各式各樣的教會、領事館,以及華麗典雅的西式建築,與傳統日式建築並存,交相輝映,營造出獨特的異國風情。
漫步在元町的坡道上,不時可見一棟棟融合了日式與西式風格的建築,一樓是傳統的日式設計,二樓則搖身一變,成為充滿歐式風情的空間。這種獨特的建築風貌,不僅是歷史的見證,更是文化交流的結晶,為函館增添了無限魅力。
函館必访:千秋庵总本家,品味历史的甜蜜滋味
时光倒流回1860年,那是一个充满变革的时代,日本刚与美国签订《日米和亲条约》,函馆成为对外开放的港口。就在这历史性的时刻,一位来自秋田藩的武士——佐佐木吉兵卫,怀抱著创业的梦想,踏上了这片新天地。他以精湛的制菓技艺,在函馆街头贩售起各式糕点,就此开启了千秋庵总本家的传奇篇章。明治时期,千秋庵的足迹拓展至小樽;大正与昭和年间,旭川和钏路也陆续出现了从函馆独立出来的分店。这家老字号的魅力不仅在于其悠久的历史,更在于它那散发着岁月风华的店铺,以贩售传统日式甜点闻名,长期以来深受当地居民喜爱。
百年老店變身:從和菓子店到複合式咖啡館
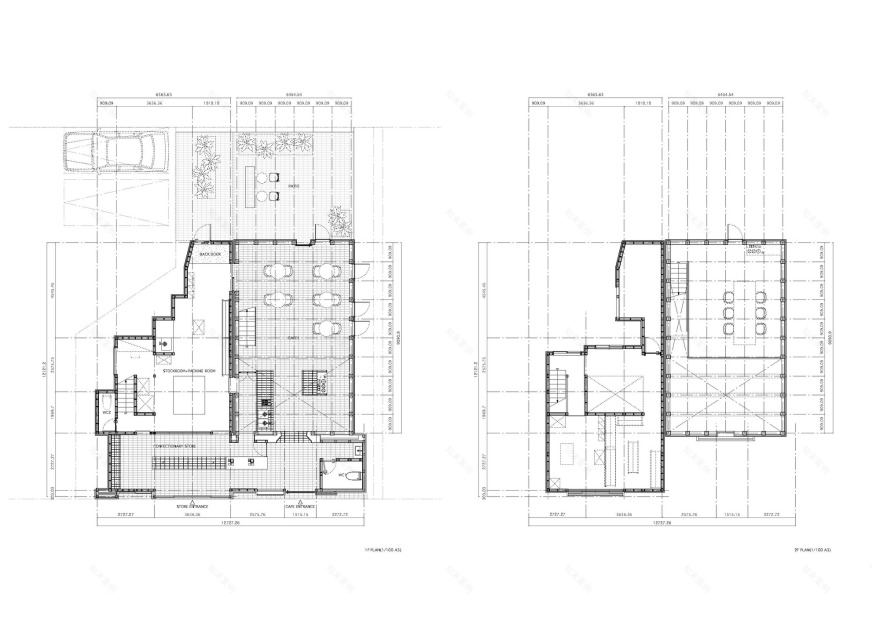
在函館眾多建築中,千秋庵總本家(Sensyuan Sohonke)也就是「函館元町」寶來町本店,坐落於函館市電「寶來町」站旁,交通便利,是旅客漫步元町地區時不容錯過的甜蜜驛站。走進這日式老屋的店內,彷彿穿越時光隧道,感受百年老店的歷史底蘊,品味那份歷久彌新的甜蜜滋味。千秋庵總本家是一棟日式木造建築,中央有一個倉庫,而正面的外觀多年來一直是函館的地標之一。
紅磚的巧妙運用:在傳統日式建築中注入西洋元素
在規劃店面翻新時,長坂常帶領的Schemata Architects設計團隊決定增設一間咖啡館,讓前來購買和菓子的顧客可以在此稍作休息,享受一杯咖啡的時光。設計團隊將原本用於儲存和包裝的倉庫改造成咖啡館,並翻新了現有的店面和辦公室。在這個過程中,設計團隊注意到了一個西式元素,即建築外部的一小部分磚塊。
尺貫法與紅磚的結合:打造獨特的空間氛圍
於是,設計團隊將磚塊延伸到現有木造建築的內部,用它覆蓋了泥土地板,並在某些地方將其抬高,創造出櫃檯、長椅和其他必要的家具。這些凸起的磚砌結構是根據日本傳統木結構的日本傳統度量單位「尺貫法」(shaku module,約30.3公分)切割而成,切割後的磚塊橫截面出現在邊緣,以這樣的設計在將西式材料磚塊與現有的日式建築相互融合,創造出一家不僅在表面上,而且在整個內部都融合了日式和西式風格的店鋪。
新舊交融的設計理念:為老店注入新的活力
設計團隊提出了一種新的方式,將函館居民熟悉的材料——磚塊,與傳統日式房屋和老字號和菓子店的外觀相結合,創造出日式和西式風格的融合。他們希望這家店能繼續成為當地居民喜愛的甜點店,並在未來繼續傳承下去。
千秋庵総本家宝来町本店
營業時間:9:30~18:00
定期休息日:週三
停車:有
地址:日本北海道函館市宝来町9−9
マップコード MAPCODE:86 041 023*82
電話: 0138-23-5131
網站:
建築圖
作品資訊
作品名稱:千秋庵総本家 Hakodate Sensyuan Sohonke Café
作品位置:日本 北海道函館
作品類型:咖啡館、日本建築、餐飲設施、室內設計、木構、舊建築改造
設計單位:長坂常(Jo Nagasaka)+ Schemata Architects
基地面積:197 平方米
竣工:2024 年
攝影:Yurika Kono
主持建築師:Jo Nagasaka, Schemata Architects
專案協調:Moeko Yamaguchi
廚房設計:FUKUSHIMA GALILE
文字:Rikako Sho
營造廠:Hiranokengyo
結構顧問:Ladderup Architects
燈光設計:ENDO Lighting Corporation
客服
消息
收藏
下载
最近




















