查看完整案例

收藏

下载
Casa en Camps Bay / Malan Vorster Architecture Interior Design
Casa en Camps Bay / Malan Vorster Architecture Interior Design
Arquitectos:
Malan Vorster Architecture Interior Design
Área:
720
m²
Año:
2020
Fotografías:
Adam Letch
Proveedores:
GRAPHISOFT
Hansgrohe
Villeroy & Boch
Hakwood (supplied by BestWood)
Arquitectura / Diseño De Interiores:
Pieter Malan, Jan-Heyn Vorster, Noel Janse van Rensburg
Ciudad:
Cape Town
Pais:
Sudáfrica
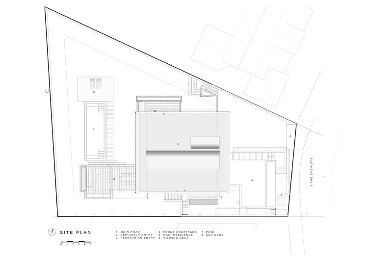
Esta casa ubicada en Camps Bay se caracteriza por su pronunciada pendiente desde el nivel de la calle hacia la costa con el Océano Atlántico por el oeste, gozando de una gran exposición solar y a fuertes vientos.
La casa responde al paisaje urbano con dos pisos. La estructura se aleja de la calle para preservar los árboles maduros existentes, que forman parte del jardín establecido y actúan como puntos focales. La masa de construcción se expresa en formas robustas simplificadas y formas geométricas puras, y se organiza verticalmente en un diagrama de apilamiento tripartito:
Un zócalo de piedra natural surge de la pendiente del sitio y se conecta con el jardín inferior. Tiene capacidad para la suite de invitados, las habitaciones de la familia, la sala de estar con televisión y el patio cubierto.
El nivel medio se relaciona con la entrada de la calle y es el núcleo social de la casa. Las puertas corredizas permiten que los espacios interiores y exteriores se mezclen. La elevación sobre la pendiente del sitio ofrece vistas al mar y a los Doce Apóstoles. Una terraza de entretenimiento con pérgola de madera se proyecta en la vista.
Un cubo flotante en el primer piso; dos frentes están abiertos a las vistas a ambos lados, y dos lados se mantienen predominantemente sólidos para brindar privacidad de los vecinos. Es un contenedor para la zona de los padres; dormitorio y salón privado (con vistas al mar), y estudio y baño-vestidor (con vistas a Lion's Head).
Un atrio está tallado en los dos niveles superiores y organiza la progresión de los espacios. La experiencia de la luz a lo largo de la ruta juega un papel importante; un techo en forma de pala de luz curvada refleja la luz del sur hacia el atrio, lo que garantiza un interior brillante.
El control del clima y la privacidad se proporcionan con una pantalla giratoria ajustable en el lado de la calle, contraventanas corredizas para regular la exposición al oeste y pérgolas para proporcionar sombra. La masa edificatoria está dispuesta para albergar los espacios internos y externos de la Semana Santa Sur. Los detalles de las contraventanas, con trazos cortados en la madera, exploraron el filtrado modelado de la luz como una oportunidad de diseño.
Malan Vorster Architecture Interior Design
Materiales
Madera
Piedra
Concreto
客服
消息
收藏
下载
最近























