查看完整案例

收藏

下载
Planirani objekat u Vojvođanskoj 88; Vizuelizacija: City Invest
Roma Company planira na Novom Beogradu zgradu od 8.000 kvadrata
U objektu su projektovana 54 stana, jedan lokal i sedam poslovnih administrativnih prostora, kao i 73 parking mesta u podzemnoj garaži.
U Vojvođanskoj ulici na Novom Beogradu u narednom periodu mogla da nikne nova četvorospratnica namenjena stanovanju i poslovanju, za čiju izgradnju je izrađen urbanistički projekat koji se do 4. juna nalazi na javnom uvidu.
Nosilac izrade UP-a je beogradska firma MN Group, investitor je Roma Company iz Zemuna, dok idejno rešenje projekta arhitekture potpisuje preduzeće City Invest iz Beograda, sa Vladimirom Petrovićem, dia, kao glavnim projektantom.
Položaj planiranog objekta u bloku; Vizuelizacija: City Invest
Svi postojeći objekti predviđeni za rušenje
Parcela je locirana u ulici Vojvođanskoj ulici br. 88 na Novom Beogradu i ima saobraćajni i pešački pristup sa ulice Vojvođanske. Ukupna površina građevinske parcele iznosi 1.947 m², a širina fronta parcele prema javnoj saobraćajnoj površini ulice Vojvođanske iznosi 23,12 m.
Na parceli postoji jedan prizemni stari stambeni objekat lošeg boniteta, kao i 4 pomoćna objekta upisana u zemljišne knjige kao objekti bez odobrenja za gradnju, te jedan stambeni nelegalni objekat neupisan u zemljišne knjige, novijeg datuma gradnje, a svi pomenuti objekti su predviđeni za rušenje.
Ortofoto snimak lokacije
U podrumu objekta smeštena su 73 parking mesta i tehničke prostorije toplotne podstanice, kao i dva magacina.
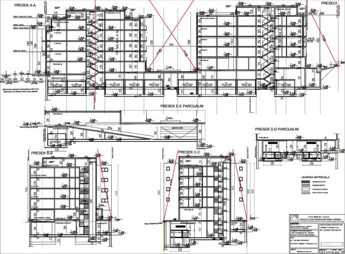
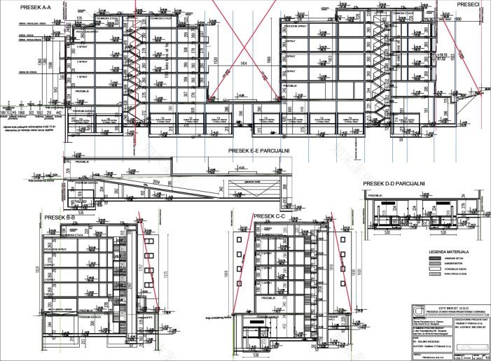
Spratnost novoprojektovanog stambeno-poslovnog objekta je Po+Pr+3+Ps, dok ukupna BGRP objekta sa tehničkom etažom iznosi 7.999 m².
U podrumu objekta smeštena su 73 parking mesta i tehničke prostorije toplotne podstanice, kao i dva magacina – od poslovnog prostora i lokala.
Iz podruma je omogućen pristup u objekat liftom i stepenicama preko dva vertikalna požarno izolovana jezgra za svaki nadzemni deo posebno.
Osnova prizemlja
Pored lokala, u prizemlju je projektovano 7 poslovnih administrativnih prostora sa pristupom iz unutrašnjeg dvorišta.
U prizemlju objekta smešten je 1 lokal sa zasebnim pristupom iz ulice Vojvođanske. Sa leve strane objekta smešten je glavni ulaz u objekat preko kontrolisanog ulaza i otvorenog pešačkog koridora kojim se pristupa stambenim ulazima, kao i poslovnim prostorima koji imaju odvojene ulaze iz zajedničkog dvorišta.
Pored lokala, u prizemlju je projektovano 7 poslovnih administrativnih prostora sa pristupom iz unutrašnjeg dvorišta. U prizemlju se nalazi i prostor za kontrolu ulaza i izlaza sa toaletom, kao i ulazni lobi oba ulaza u stambeni deo objekta.
Idejno rešenje potpisuje beogradski studio City Invest; Vizuelizacija: City Invest
Ukupno 54 stambene jedinice
Na prvom spratu ulaza A i ulaza B projektovano je po 7 stanova.
Na 2. i 3. spratu ulaza A projektovano je po 7 stanova na svakom.
Na 2. i 3. spratu ulaza B projektovano je po 6 stanova na svakom spratu.
Na povučenom spratu ulaza A projektovano je 7 stanova, kao i na povučenom spratu ulaza B.
Ukupno su projektovane 54 stambene jedinice različitih struktura i površina, navodi se u Idejnom rešenju koje potpisuje beogradski studio City Invest.
Situacija – partnerno uređenje
Osnova podruma
Osnova prizemlja
Osnova prvog sprata
Osnova drugog/trećeg sprata
Preseci 3D vizuelizacija
Planirani objekat u Vojvođanskoj 88; Vizuelizacija: City Invest Vizuelizacija: City Invest
Vizuelizacija: City Invest
Vizuelizacija: City Invest
Vizuelizacija: City Invest
客服
消息
收藏
下载
最近














