查看完整案例

收藏

下载
Функциональный минимализм
Современный дом в поселке Борки
Автор проекта: Кашин Максим
Объект: Функциональный минимализм
Общая площадь: 500 кв.м.
Уникальные характеристики обьекта
функциональный дом с эмоциональной выразительностью
разделение объема на три модуля в соответствии с задачей семейного проживания
реечные потолки из массива дерева
ограждение лестницы из переплетенных металлических прутьев
Фасады дома оформлены в духе модернизма и облицованы армянским травертином и реечными панелями из массива лиственницы, они подчеркивают структуру постройки.
Фото фасада дома с деревянной реечной структурой, вдохновленной постройками архитектора-модерниста Алваро Аалто.
Интерьер прихожей и центральной лестницы двухэтажного дома с аскетичным дизайном и яркой образностью.
Центральный элемент белоснежного интерьера в стиле минимализм – реечная отделка потолка и стен деревом – реверанс в сторону работ архитектора Алвара Аалто.
Интерьер двухуровневой гостиной дома в стиле функциональный минимализм. Топка камина облицована камнем, скульптурный дымоход словно прорастает через объем гостиной.
Интерьер функционального дома с эмоциональной пластикой.
Двери в доме сделаны из закаленного стекла с металлическим профилем.
Библиотека расположена в общей зоне гостиной и сделана по чертежам автора проекта.
Самая выразительная деталь лестниц – перила. Они представляют собой переплетенные металлические прутья, которые помимо эстетической функции выполняют ещё и конструктивную задачу: без дополнительных несущих элементов они держат всю структуру и придают жёсткость лестничному ограждению.
В доме две лестницы. Одна, центральная, находится в двухсветной гостиной, вторая – ведет с улицы в приватные помещения и на эксплуатируемую кровлю с патио.
Фото интерьера дома в стиле минимализм. Стены во всех помещениях выкрашены однотонной белой матовой краской.
Лестница на приватной половине.
Интерьер кухни в стилистке минимализм. Интерьер дома строится на сочетании белого цвета и теплой фактуры натурального дерева.
Интерьер кухни выполнен в белом цвете с обилием деревянных текстур. Столешница обеденного стола сделана из цельного куска дерева, кухонный фартук выложен гранитом и деревом, а столешница рабочей зоны кухни – из цельного куска гранита. Кухня, Virs.
Фото интерьера прихожей дома в белой цветовой гамме с реечными конструкциями.
Холл второго этажа. Межкомнатные двери Invisible сливаются с плоскостью стены.
Фото интерьера белой спальни в стиле минимализм.
Ванная комната. Стены, пол и столешница под раковину отделаны натуральным камнем – армянским травертином. Раковина, Villeroy & Boch.
Интерьер санузла в современном стиле. Сантехника, Villeroy & Boch.
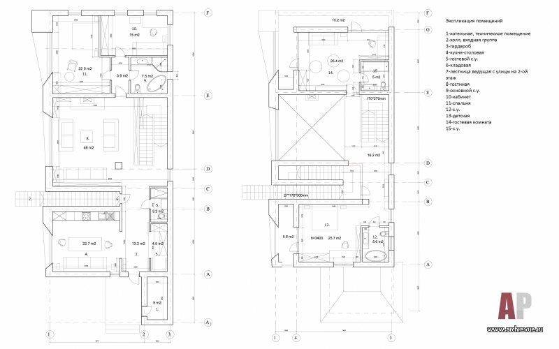
Поэтажный план современного двухэтажного дома в поселке Борки. Общая площадь - 500 кв. м. Архитектор - Максим Кашин.
Концепция
На проект этого дома и его декоративное решение архитектора Максима Кашина вдохновил интерьер церкви в Вольфсбурге, спроектированной финским архитектором - модернистом Алваром Аалто в 1963 году. Строгая геометрия, использование реечного декора, аскетизм и спокойствие стали визитной карточкой современного двухэтажного особняка, спроектированного для большой семьи.
Заказчики поставили задачу создать дом с выразительной архитектурой, но при этом предельно функциональный, чтобы в нем было бы удобно жить разным поколениям семьи. Архитектор предложил современный проект в форме параллелепипеда, который состоит из квадратных в плане, последовательно выстроенных, модулей. Фасады дома оформлены в духе модернизма и облицованы армянским травертином и деревянными реечными панелями, они подчеркивают структуру постройки.
Планировка
Объем дома набран из трех модулей, которые соответствуют трем основным функциональным зонам: жилой блок родителей, жилой блок детей, взрослого сына с семьей, и общее связующее пространство. Дом имеет два входа, первый расположен с торцевой стороны, он ведет через кухню и гостиную в зону для родителей с отдельным кабинетом, спальней и большим санузлом.
Через второй вход, с террасы главного фасада, можно подняться сразу на второй этаж, в зону для младшего поколения с двумя спальнями и санузлами. Разные по назначению модули связывают лестничные марши с выразительной пластикой. На эксплуатируемой кровле дома расположена зона отдыха с открытым патио для отдыха на природе.
Декор
Архитектор стремился создать аскетичный интерьер с яркой эмоциональной выразительностью, минималистичный, но в то же время с мощной внутренней динамикой. В белоснежном пространстве обозначено несколько доминант: реечная отделка потолка и стен деревом (реверанс в сторону работ архитектора Алвара Аалто), скульптурный камень из травертина и контрастные лестничные полотна, созданные из переплетенных между собой металлических прутьев, – конструкции легкие и воздушные.
Прутья без дополнительных конструктивных элементов обеспечивают жесткость всему лестничному ограждению.
Комплектация объекта
Строительные и отделочные материалы и изделия
Кровля, фальцевая стальная, компания «Уникма»; эксплуатируемая кровля, производитель «ТехноНиколь»
Вентилируемые фасады Delta, поставщик Radders
Окна, витражи, двери, поставщик Alutech и Schuco
Межкомнатные двери
, поставщик Union Мрамор, камин, компания «КАМ»
Напольная массивная доска, дуб, поставщик «Атмосфера дерева»
Оформление стен, краска, Sikkens, поставщик «Дом Краски / Деко – Эм»
Свет Kartell
Сантехника Villeroy & Boch
Мебель Poliform, Virs, Kartell
Оборудование
Газовый котел Wolf
Внутрипольные ковекторы и батареи Kermi
Энергообеспечение внутренридомовая элетрораспределительная система ABB, система домофона и контроля входа на территорию участка ABB, Welcome
Системы вентиляции и кондиционирования Toshiba
Внутренние инженерные системы, системы водоснабжения, канализации и отопления Rehau
客服
消息
收藏
下载
最近























