查看完整案例

收藏

下载
庄惟敏:渭南市文化艺术中心 / 清华大学建筑设计研究院
庄惟敏:渭南市文化艺术中心 / 清华大学建筑设计研究院
清华大学建筑设计研究院
清华院渭南文化艺术中心西立面 © 姚力
陕西省渭南市文化艺术中心是由三幢建筑聚落。庄惟敏的设计团队调研了近二十个案例,并考虑到二三线城市的剧场维护成本过高、消费需求过剩等社会因素。最终,设计团队决定此次项目在不设置整体集散大厅的设计思路下,研究建筑的在地性问题,以非对称布局方式,弱化了所在行政中心区主轴线带来的呆板感,并加强了建筑的群体感。
电影院玻璃幕墙细部 © 姚力
临水面视角 © 姚力
电影院与培训中心细部 © 姚力
总平面图
三座建筑的外墙材料分别采用关中传统的青砖、石材,以及当代的玻璃幕墙。青砖墙面做凸凹肌理变化,玻璃幕墙采用开缝构造(形成灰空间避免能耗),强调两种不同时代材料的质感对比。青砖立面上有2厘米、6厘米和10厘米三种凸出尺寸,以砖的光影变化为建筑增添生气。型钢的斜线手法实际是与文化行政中心区的大绿地肌理有所呼应,由墙面延伸下来和地面融合,与绿地景观形成一种同质关系。
电影院西立面 © 姚力
电影院南侧通道 © 姚力
西侧青砖墙 © 姚力
西侧青砖墙细部 © 姚力
南立面窗檐部分进行多重的叠涩处理,延续关中传统建筑的特质。建筑的场地规整,通过不规则的地景和水池设计,以及丰富的建筑形体关系和表皮肌理,活化并激发出独特的场所氛围。
南立面 © 姚力
整个文化艺术中心根据调研结果还配了约1万平米的商业配套设施,以商养文。小剧场不设固定座椅便于商业会议、派对等租赁。考虑到周边社区群众活动问题,小剧场北侧设置了室外舞台,专业的舞台后台因此可以得到充分的利用。中心景观水景可供作亲子活动场所,退坡景观下还设置了供户外活动的卫生间以及更衣间。
三幢建筑各成方向,相互对话,共同营造文化的场所感。秦腔高亢激昂、激烈碰撞,借此文化特性,建筑以长方盒子为基础进行变形,形体之间相互碰撞,相互耦合。
西侧广场视角 © 姚力
非物质文化遗产室内 © 姚力
大剧院室内 © 姚力
大剧场立面图
电影院立面图
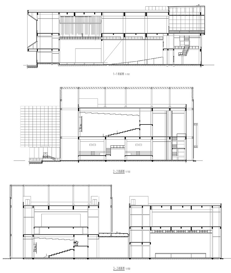
剖面图
大剧场一层平面图
大剧场二层平面图
大剧场三层平面图
项目地点:陕西省渭南市
建设单位:渭南市文化局
设计单位:清华大学建筑设计研究院
项目负责人:庄惟敏
设计团队:庄惟敏、张维、高国成、梁思思、康立桥、潘安平、刘忆川、罗新宇、米忠、高桂生、徐华、李淑琴、孟秀婷等
室内设计合作方:陕西金菱建筑装饰工程有限公司
场地面积:40000平方米
总建筑面积:33942平方米
建筑高度:24米
设计时间:2009.7—2010.9
竣工时间:2014.8
摄影:姚力
客服
消息
收藏
下载
最近




















