查看完整案例

收藏

下载
Дача в Нормандии
Небольшой двухэтажный дом с садом в стиле Прованс
Автор проекта: Зеленецкая Варвара
Соавтор(ы): Петухова Мария
Объект: Дача в Нормандии
Общая площадь: 220 кв.м.
Уникальные характеристики обьекта: реновация общественного пространства без планировочных и конструктивных изменений, элементы стиля Прованс, прохладная пастельная гамма на основе разных оттенков синего цвета
Нормандский дом. Фасад дома в Подмосковье с садом.
Для семейной пары, которая любит принимать гостей, дизайнер Варвара Зеленецкая реконструировала загородный дом в Подмосковье, придав ему черты уютного домика в Нормандии.
Стены холла выкрашены в сложный сине-зеленый оттенок. С ним контрастирует лестница из мореного дуба, а также встроенные шкафы нежного сливочного цвета. В единую композицию интерьер объединяет цветовая палитра напольной каменной мозаики в виде многогранников.
Холл с лестничным маршем занимает отдельное помещение с выходом в гостевой санузел и постирочную.
Цветовая гамма кухни выдержана в пастельных тонах с яркими акцентами. Пестрая напольная плитка, Manifattura Ceramiche. Кухонный гарнитур Schuller в синих тонах.
Стилистику Прованса задали существующие потолочные деревянные балки. В поддержку к ним появились деревянные изделия из светлого дерева, декоративная штукатурка, имитирующая кирпичную стену, каменная плитка в форме многогранников, которой выложен пол в кухне-столовой.
Фоно для синей кухни служит белая плитка-кабанчик и отделанные штукатуркой под кирпич стены.
Основную декоративную задачу дизайнер видела в создании уютного, открытого дома, где гостеприимные хозяева часто собирают друзей, родных и близких.
Гостиная от кухни-столовой отделена двусторонним стеллажом нежного сливочного цвета, выполненным на заказ в стиле Прованс.
Интерьер гостиной дачного дома с элементами кантри и стиля Прованс.
Выложенный из кирпича камин с дубовыми вставками выглядит основательно и брутально.
Синий цвет стал своеобразным лейтмотивом интерьера, повторяясь в фасадах буфета в гостиной и группе мягкой мебели.
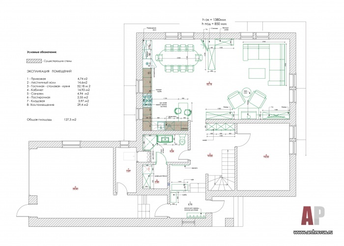
План первого этажа реконструированного дома в Подмосковье.
Концепция
Для семейной пары, которая любит принимать гостей, дизайнер Варвара Зеленецкая реконструировала загородный дом в Подмосковье. «Задача состояла в том, чтобы, не меняя конструктива и уже существующей планировки здания, полностью обновить первый этаж. Создать удобную зону для приема гостей и общения, в дизайне мы хотели соединить черты камерной виллы в Нормандии и привычной дачи старой русской интеллигенции, - рассказывает дизайнер. – Второй уровень, на котором находятся спальни, заказчиков полностью устраивал».
Планировка
Первый этаж площадью 127 кв. м был изменен с помощью исключительно декораторских средств. Прежде всего, дизайнер визуально объединила зоны гостиной, кухни и столовой, создав просторное помещение (площадью 52 кв. м) с комфортными камерными зонами: диванной группой, зоной отдыха у камина и парадной кухней-столовой. От гостиной она отделена двусторонним стеллажом, выполненным на заказ в стиле Прованс. Холл с лестничным маршем занимает отдельное помещение с выходом в гостевой санузел и постирочную. Для него был специально спроектирован встроенный вместительный гардеробный шкаф с зеркалами. Прихожая вынесена самостоятельным блоком, благодаря чему личные помещения максимально удалены от входа.
Декор
Стилистику Прованса задали существующие потолочные деревянные балки. В поддержку к ним появились деревянные изделия из светлого дерева, декоративная штукатурка, имитирующая кирпичную стену, каменная плитка в форме многогранников, которой выложен пол в кухне-столовой. Лейтмотивом интерьера стала прохладная пастельная гамма, в частности разные оттенки синего цвета, которые использованы в отделке кухонных фасадов, буфете, текстиле мягкой группы. Основную декоративную задачу дизайнер видела в создании уютного, открытого дома, где гостеприимные хозяева часто собирают друзей, родных и близких.
Комплектация объекта
Строительные и отделочные материалы и изделия
Изделия из дерева, лестница, компания «Бристоль »
Двери, поставщик «Софья»
Оформление стен, штукатурка Derufa, финишная отделка – краски Little Greene, поставщик «Салон краски»
Массивная половая доска, поставщик «Лесресурс»
Свет Fine Art Lamps
Плитка Manifattura Ceramiche, поставщик «Базальт Керамика»
Мебель
Кухня Schuller
Корпусная и встроенная мебель, на заказ, компания «Бристоль »
Мягкая мебель, аксессуары Flamant
Оборудование
Оборудование кухни Miele
客服
消息
收藏
下载
最近
















