查看完整案例

收藏

下载
Современная двухэтажная квартира в Хамовниках
Лаконичный интерьер для семьи с двумя детьми в комплексе Knightsbridge Private Park
Автор проекта: Шилова Евгения, Ерошевич Илья
Объект: Современная двухэтажная квартира в Хамовниках
Общая площадь: 200 кв.м.
Уникальные характеристики обьекта: городская квартира с хорошими пропорциями и большими помещениями, семейная двухэтажная квартира с современным дизайном, природные материалы и брутальные фактуры, воздушная стеклянная лестница с арт-объектом, стеклянный куб с кабинетом на втором этаже
Стеллаж с подсветкой на первом этаже. Керамогранит, Porcelanosa.
Лаконичный интерьер гостиной со светлыми стенами и современным дизайном. Диван заказчики приобрели сами. Кресло, Lema, модель Lennox.
Особенность дома – увеличенные окна и рамы с тонким перелетом. Декорированные деревом они создают настроение загородного дома. Акцентное кресло, Lema, модель Lennox.
Двухэтажная квартира с природными фактурами. Интерьер гостиной.
Декоративная домината гостиной – каменная облицовка стены за ТВ. Архитекторы рассматривали варианты из итальянского камня и отечественного гранита, пока не увидели дагестанский песчаник: эффектный, брутальный, легкий в обработке и монтаже.
Обеденная группа в общей гостиной. Стулья, Molteni&C, модель Barbicann. Стол с брутальной деревянной столешницей на заказ. А полу – дубовая доска.
Двухэтажная квартира с природными фактурами. Интерьер столовой. Технический свет, Flos.
Интерьер кухни выполнен на стыке эко-дизайна минимализма. От верхних шкафов дизайнеры отказались. Фасады нижних шкафов и острова решены в дереве с натуральной брутальной фактурой. Технический свет, Flos.
Зона кухни. Кухонный гарнитур, Aster Cucine.
Интерьер кухни выполнен на стыке эко-дизайна минимализма. Барные стулья, Bonaldo, модель Lamina too.
Коридор первого этажа. На первом этаже находится одно жилое помещение – просторный open space, который просматривается от входа. Встроенная мебель, на заказ.
Гостевой санузел на первом этаже выполнен в серой гамме. Керамогранит, Porcelanosa. Мебель, на заказ.
Гостевой санузел на первом этаже. Черный унитаз, Ceramica Cielo. Полотенцесушитель, Terma.
Лестничный холл. Первые две ступени сделаны более широкими, чтобы можно было присесть. Перила выполнены из закаленного стекла. Пространство под лестницей заполнено белой галькой, стены декорированы медными панелями, в центре композиции размещен арт-объект.
Лестница получилась легкой, воздушной и функциональной. Стены выкрашены в белый цвет.
Стены в кабинете на втором этаже сделаны стеклянными.
Зона кабинета на втором этаже. Столярные изделия из дерева с природной фактурой сделаны на заказ. Рабочее кресло, Vitra, модель AC 5 Work. Настольный светильник, Flos
Кабинет размещен в стеклянном кубе, из него открывается вид на лестничный холл. Кресло Minotti, модель Jensen. Торшер, Flos.
Холл второго этажа.
Площадь хозяйской спальни – 21 кв. м. Спальня совмещена с гардеробной и главным санузлом.
Хозяйская спальня решена в теплой цветовой гамме с добавлением деревянных и латунных панелей, камня. Кровать, на заказ. Кресло, L’Appartement, коллекция Norr11, модель Elephant. Торшер, декор винтаж.
Двухэтажная квартира с природными фактурами. Интерьер спальни хозяев.
Главный санузел решен в темной цветовой гамме. Керамогранит под дерево X-Light размером 1000х2500, Porcelanosa. Стена над умывальником сделана из тонированной в черный цвет зеркальной панели, на ней – круглое с подсветкой зеркало.
Вид на одну из детских комнат. У семейной пары две дочери: 9 и 5 лет. Для них архитекторы сделали не просто детские, а комнаты, куда будет приятно позвать друзей и провести с ними время.
Интерьер одной из детских. Комната большая (площадь – 22 кв. м), светлая, с интересной графикой и без излишеств. Вдоль окна – большой стол, за ним удобно делать уроки и заниматься творчеством. Торшер, Gubi, модель Grashoppa.
Лаконичная квартира с природными мотивами. Комната одной из дочерей, площадь – 22 кв. м.
Особенность интерьера – разнообразные световые сценарии и необычные подсветки.
Детская с диваном и принтом с изображением тропических растений. Комната площадью 26 кв. м. Мебель сделана на заказ.
В комнате старшей помимо систем хранения для игрушек есть зон make up. Торшер, Normann Copenhagen.
Вдоль окна в детской находится большой стол, за ним удобно делать уроки и заниматься творчеством. Здесь же – удобная система хранения.
Детский санузел решен в солнечной желтой гамме. Керамогранит, Porcelanosa. Мебель, на заказ.
Детский санузел выполнен в современной стилистике. Зеркало, тумба, раковина, на заказ. Сантехника, Tres.
Зона душевой в детской ванной комнате. Керамогранит, Porcelanosa.
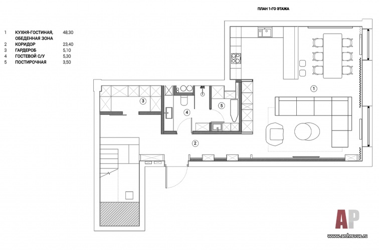
План первого этажа двухэтажной квартиры в ЖК Knightsbridge Private Park. Общая площадь – 200 кв. м.
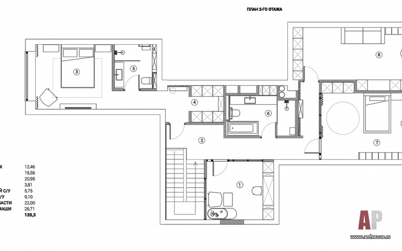
План второго этажа двухэтажной квартиры в ЖК Knightsbridge Private Park. Общая площадь – 200 кв. м.
Концепция
Семейная пара с двумя детьми обратилась в студию Design Rocks с пожеланием создать в центре Москвы двухэтажную квартиру с атмосферой загородного дома и дала архитекторам полный карт-бланш. Заказчики любят семейный отдых на природе и современный дизайн, они были открыты к новому и готовы экспериментировать, поэтому не стали присылать примеры вдохновляющих их интерьеров, а сказали архитекторам самим придумать для них наилучший вариант.
«Оказанное доверие было нам приятно и в то же время накладывало большую ответственность, - рассказывают архитекторы. – Над проектом трудилась команда из 5 человек. Каждый внес что-то свое, благодаря чему дизайн получился разнообразным и необычным».
Планировка
Двухэтажная квартира площадью 200 кв. м находится в клубном доме Knightsbridge Private Park в Хамовниках. Она имела неплохие исходные данные: свободную планировку, хорошую инсоляцию и выразительные окна с тонким переплетом. Первый этаж архитекторы не стали дробить на комнаты: выделив лишь гостевой санузел, гардероб и постирочную, всю оставшуюся площадь они отдали общей гостиной, столовой и кухне.
Размеры open space оставляют 48 кв. м – площадь хорошей однокомнатной квартиры! Второй этаж с окнами на две стороны занимают приватные помещения: хозяйская спальня со своей ванной комнатой, две детские с общим санузлом и стеклянный объем кабинета, который служит также местом для отдыха. Все помещения получились просторные, например, детские (22 и 26 кв. м) проектировались с расчетом на то, что в них приятно позвать друзей и провести вместе время.
Декор
Интерьер квартиры выполнен в стилистике рационального минимализма с акцентом на природные материалы и текстуры. Вместе с большими площадями помещений и открытыми перспективами они создают ощущение загородного интерьера. Декоративная домината гостиной – каменная облицовка стены за ТВ. Архитекторы рассматривали варианты из итальянского камня и отечественного гранита, пока не увидели дагестанский песчаник: эффектный, брутальный, легкий в обработке и монтаже.
Он прекрасно сочетается с натуральным необработанным деревом, из которого сделана кухня и стеллаж в холле. Еще одной ключевой точкой дизайн-проекта стала лестница, ведущая на второй этаж. Хотелось сделать ее очень легкой, воздушной, но функциональной, поэтому первые две ступени были специально оставлены более широкими (чтобы можно было присесть на них), а перила выполнены из закаленного стекла. Пространство под лестницей архитекторы заполнили белой галькой, а в оформлении холла применили подсветку и декоративные медные панели, которые придали квартире сходство с актуальным арт-пространством. Чтобы не утяжелять лестничный холл, кабинет на втором этаже было решено сделать стеклянным. Прозрачные перегородки зонируют объем, но сохраняют пространство и воздух. «Заземляют» интерьер и создают уют столярные изделия из некрашеного дерева и декоративные стеновые покрытия с эффектом бетона.
Комплектация объекта
Строительные и отделочные материалы и изделия
Стеклянные перегородки, компания Pro/stranstvo
Изделия из металла, компания Dordi
Половая доска, дуб, поставщик «Архипол»
Керамогранит Porcelanosa
Фурнитура для дверей Dnd Martinelli
Свет декоративный Flos, Normann Copenhagen, Gubi
Свет, винтажный, поставщик Repeat story
Свет технический Flos
Ковры, поставщики Art de Vivre
Постельное белье, поставщик Embra
Декор, поставщики BoConcept, BD Barcelona Design, DesingBoom
Керамика Farol, Attribute, Ксения Клайда, Ульяна Хохлова
Искусство, ArtBrut Moscow
Сантехника Tres, Fima Carlo Frattini; унитазы Ceramica Cielo, полотенцесушители Terma
Мебель
Гостиная кресло Lema (модель Lennox)
Столовая стулья Molteni&C (модель Barbicann)
Кухня Aster Cucine, барные стулья Bonaldo (модель Lamina too)
Спальня кровать, на заказ; кресло L’Appartement (коллекция Norr11, модель Elephant)
Детская диваны, корпусная мебель, на заказ; кресла Hay
Мебель для санузлов, на заказ
Кабинет кресло Minotti (модель Jensen); корпусная мебель, на заказ; кресло рабочее Vitra (модель AC 5 Work)
Оборудование
Радиаторы Irsap (модель Tesi)
Электроустановочные изделия Berker
Оборудование кухни вытяжка Faber (модель Cylindra)
Фото: Сергей Красюк
Стилист: Татьяна Гедике
客服
消息
收藏
下载
最近






































