查看完整案例


收藏

下载
结构工程师Heyne Tillett钢M
Structural Engineer Heyne Tillett Steel M&E Consultant Sweco Quantity Surveyor Fanshawe Main Contractor Total Construction Ltd Client Charterhouse School Type of Project Independent School Funding Private Form of Contract Traditional Total Cost £6.1 million More Specs Less Specs
Structural Engineer Heyne Tillett Steel M&E Consultant Sweco Quantity Surveyor Fanshawe Main Contractor Total Construction Ltd Client Charterhouse School Type of Project Independent School Funding Private Form of Contract Traditional Total Cost £6.1 million More Specs Less Specs
© Peter Blundy/Design Engine
(c)PeterBlddy/设计引擎
架构师提供的文本描述。设计引擎最初赢得了委员会,设计新的国家最先进的科学和数学设施后,邀请后,在2009年的比赛,击败了一个强大的领域,包括霍普金斯,贝斯建筑师,潘特哈德斯皮斯和普林格尔理查兹沙拉特。查特豪斯建于1611年,是英国历史上最伟大的公立学校之一。有了四个世纪的历史,学校致力于站在二十一世纪教育进步的前列。学校的目标是通过促进部门间和部门内的合作,为当代和未来一代的学生提供世界级的学习环境,从而彻底改变科学和数学学科在夏特豪斯的教学方式。
Text description provided by the architects. Design Engine originally won the commission to design the new state-of-the-art science and mathematics facilities after an invited competition in 2009, beating a strong field including Hopkins, Belsize Architects, Panter Hudspith and Pringle Richards Sharratt. Founded in 1611, Charterhouse is one of the great historic public schools of England. With four centuries of history behind it, the School is committed to being at the forefront of educational progress in the twenty‑first century. The School’s aim was to revolutionize the way Science and Mathematics subjects are taught at Charterhouse by fostering inter- and intra-departmental collaboration, providing a world-class learning environment for current and future generations of pupils.
Text description provided by the architects. Design Engine originally won the commission to design the new state-of-the-art science and mathematics facilities after an invited competition in 2009, beating a strong field including Hopkins, Belsize Architects, Panter Hudspith and Pringle Richards Sharratt. Founded in 1611, Charterhouse is one of the great historic public schools of England. With four centuries of history behind it, the School is committed to being at the forefront of educational progress in the twenty‑first century. The School’s aim was to revolutionize the way Science and Mathematics subjects are taught at Charterhouse by fostering inter- and intra-departmental collaboration, providing a world-class learning environment for current and future generations of pupils.
© Peter Blundy/Design Engine
(c)PeterBlddy/设计引擎
Ground Floor Plan
© Peter Blundy/Design Engine
(c)PeterBlddy/设计引擎
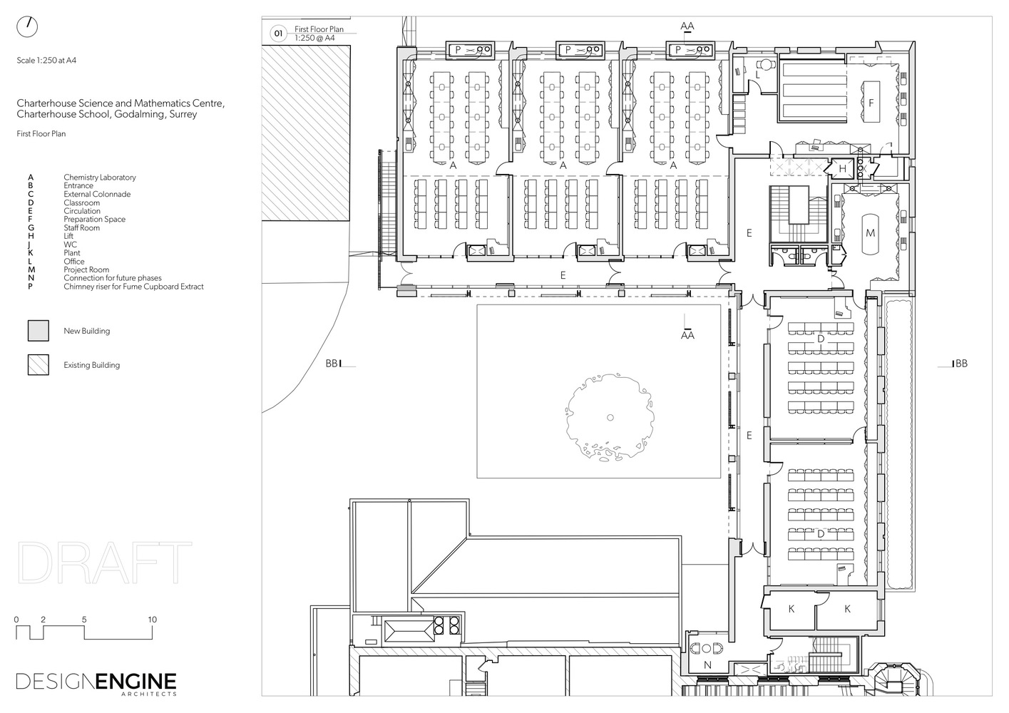
新的科学和数学中心提供:-50%以上的空间,包括7个具有干湿教学区的新化学实验室、5个数学教室、2个准备室和一个项目研究室----一个灵活而现代的环境,在新的教学方法的发展中创新,确保夏特豪斯第一次在学术上--科学和数学的共同位置,促进更大的协作-更多的实际工作空间和可能引入更长的实验,这些实验将不再需要在每个类别的末端拆除
The new Science and Mathematics Centre provides: - 50% more space overall, comprising 7 new chemistry laboratories with wet and dry teaching areas, 5 mathematics classrooms, 2 preparation rooms, and a project research room - A flexible and modern environment of the highest quality - More scope to innovate in the development of new teaching methods, ensuring Charterhouse continues to lead the way academically - The co-location of Science and Mathematics for the first time, fostering greater collaboration - Additional space for practical work and the potential to introduce longer-running experiments which will no longer need to be dismantled at the end of each class
The new Science and Mathematics Centre provides: - 50% more space overall, comprising 7 new chemistry laboratories with wet and dry teaching areas, 5 mathematics classrooms, 2 preparation rooms, and a project research room - A flexible and modern environment of the highest quality - More scope to innovate in the development of new teaching methods, ensuring Charterhouse continues to lead the way academically - The co-location of Science and Mathematics for the first time, fostering greater collaboration - Additional space for practical work and the potential to introduce longer-running experiments which will no longer need to be dismantled at the end of each class
© Peter Blundy/Design Engine
(c)PeterBlddy/设计引擎
该网站位于校园的东北边缘。这些建筑以历史建筑和环境为特征,主要由建筑师菲利普·查尔斯·哈德威克(Philip Charles Hardwick)设计,本质上主要是哥特式复兴/新哥特式建筑,可以追溯到19世纪末20世纪初。我们的计划,包括三个陡峭的屋顶,表达下面的6个化学实验室,创造了一个微妙但重要的建筑链接到原来的校园,严重依赖这些形式。
The site lies towards the North Eastern edge of the campus. Characterized by the historic architecture and setting, the buildings, largely designed by the Architect Philip Charles Hardwick, are predominately Gothic Revival / Neo-Gothic in nature, dating back to the late 19th and early 20th Centuries. Our scheme, featuring three steeply pitched roofs expressing the 6 Chemistry Labs below, creates a subtle but important architectural link to the original campus which is heavily reliant on these forms.
The site lies towards the North Eastern edge of the campus. Characterized by the historic architecture and setting, the buildings, largely designed by the Architect Philip Charles Hardwick, are predominately Gothic Revival / Neo-Gothic in nature, dating back to the late 19th and early 20th Centuries. Our scheme, featuring three steeply pitched roofs expressing the 6 Chemistry Labs below, creates a subtle but important architectural link to the original campus which is heavily reliant on these forms.
© Peter Blundy/Design Engine
(c)PeterBlddy/设计引擎
这个屋顶不仅勾勒出一种与环境相适应的建筑形式,而且从普林斯大道小学入口处起,还提供了一个重点,并提供了适当的形式来处理内部化学实验室的内部和功能要求。Charterhouse学校的财产管理学院的EmmaHumphreys说:“我们对我们的新的科学和数学建筑以及工作和学习的新的激励空间感到高兴。设计引擎和承包商努力工作以满足我们的简报需求,并提供了一流的设施,学校对此感到自豪。“
Not only does this roof articulate a building form which is contextually appropriate, but also provides a focal point to the vista from the primary entrance to the school on Prince’s Drive, as well as providing the appropriate form to deal with the internal and functional requirements of the Chemistry Labs within. Emma Humphreys, Estate Bursar, Charterhouse School, said ”We are delighted with our new Science and Mathematics building and the new inspirational spaces within which to work and learn. Design Engine and the Contractor have worked hard to meet our briefing needs and have delivered a top class facility of which the school is rightfully proud.”
Not only does this roof articulate a building form which is contextually appropriate, but also provides a focal point to the vista from the primary entrance to the school on Prince’s Drive, as well as providing the appropriate form to deal with the internal and functional requirements of the Chemistry Labs within. Emma Humphreys, Estate Bursar, Charterhouse School, said ”We are delighted with our new Science and Mathematics building and the new inspirational spaces within which to work and learn. Design Engine and the Contractor have worked hard to meet our briefing needs and have delivered a top class facility of which the school is rightfully proud.”
© Peter Blundy/Design Engine
(c)PeterBlddy/设计引擎
理查德·乔布森,设计引擎创始总监,他说:“在这样的历史背景下,设计一座当代建筑的前景总是令人望而生畏,但我们感到难以置信的是,我们最初的理念,再加上菲利普·查尔斯·哈德威克(Philip Charles Hardwick)吸收了哥特式校园的一些精神,导致了一座新建筑,我们希望这座建筑能够讲述未来,但我们尊重过去,同时帮助修复学校受损和被遗忘的部分
Richard Jobson, Founding Director, Design Engine, said “It is always a daunting prospect designing a contemporary building within such an historical context but we are incredibly pleased that our original concept coupled with absorbing some of the spirit of the Gothic campus by Philip Charles Hardwick has resulted in a new building which we hope speaks about the future but respects the past whilst helping to restore a damaged and forgotten part of the school.”
Richard Jobson, Founding Director, Design Engine, said “It is always a daunting prospect designing a contemporary building within such an historical context but we are incredibly pleased that our original concept coupled with absorbing some of the spirit of the Gothic campus by Philip Charles Hardwick has resulted in a new building which we hope speaks about the future but respects the past whilst helping to restore a damaged and forgotten part of the school.”
© Peter Blundy/Design Engine
(c)PeterBlddy/设计引擎
Sections A and B
A和B节
© Peter Blundy/Design Engine
(c)PeterBlddy/设计引擎
Architects Design Engine Architects
Location Charterhouse Rd, Godalming GU7 2DL, United Kingdom
Area 1800.0 m2
Project Year 2018
Photographs Peter Blundy/Design Engine
Category Science Center
Manufacturers Loading...
客服
消息
收藏
下载
最近


































