查看完整案例

收藏

下载
Rola (Chunni) Ko
Brooklyn, NY, US
Long Section Render. (hand and digital collage)
Transitional Family (UG Thesis)
The increasingly mobile society in fast paced cities like NY, with population moving in and out on a constant bases, newcomers move away from their home and losing the sense of belonging in the transition. In these cities, many are on a temporary stay, some are on an indefinite temporary stay; always living with the idea of leaving soon, to somewhere they belong.
In response, the transitional family is a form of communal housing to provides new city dwellers who have yet took root a temporary harbor as a transition into the city. It will act as an intermediate threshold that pull unrelated residences together to form bonds as a family; providing senses of belonging and support and live with trust and openness like they would have back home. It is a place to regain what was lost in the leaving of home.
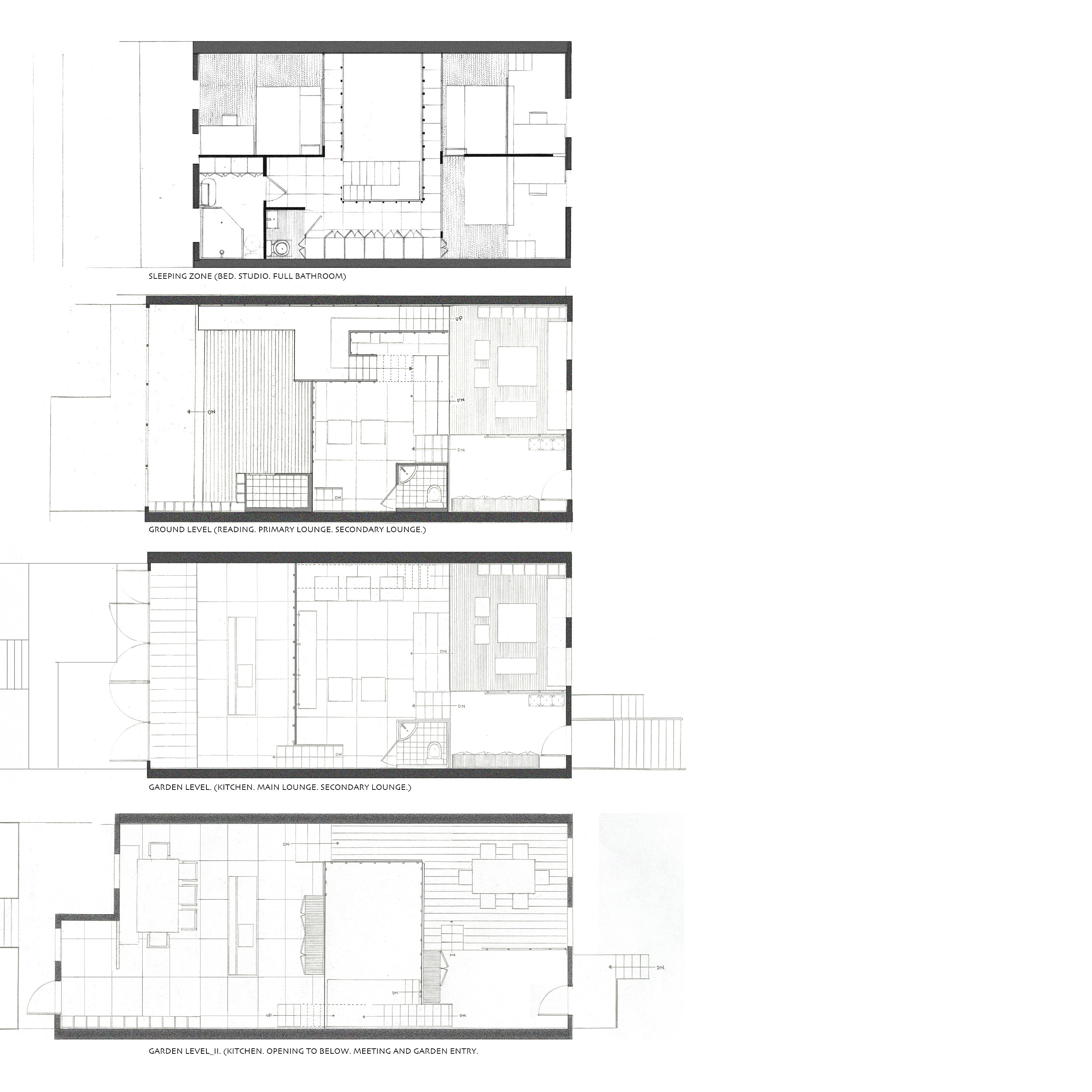
To accommodate unrelated strangers in a single brownstone, creating a new sense of family while also having enough space to the individuals. The design started by challenging conventional understanding of privacy in spaces occupied by unrelated individuals, based on the idea of sharing and openness. Inspired very much by Paul Rudolph and Sou Fujimoto’s residential projects. The idea of sharing was carried out through the shifting of floor plates generating varying height of spaces, by breaking up the boundaries of clearly defined programs creating moments of in betweens that intersects and connects the spaces into a whole.
Status:
School Project
Location:
Brooklyn, NY, US
Floor Plans
Concept Collage
privacy diagram_design methodology
Circulation Diagram_design methodology
Cross Section Render (graphite on paper)
Hand and digital collaged render. (sleeping zone)
Sleeping zone collage. Design Methodology
客服
消息
收藏
下载
最近











