查看完整案例

收藏

下载
בניין היברידי בעיר Nantou בסין / בתכנון URBANUS
בניין היברידי בעיר Nantou בסין / בתכנון URBANUS
ננטו, שבה עיר נסתרת בת אלפי שנים וכפר עירוני תוסס מתנגשים ומשתלבים. בתחילת 2016, URBANUS הוזמנה לערוך מחקר מרחבי מקיף של העיר העתיקה של ננטו, דוגמה מובהקת למורשת העירונית והתרבותית של שנזן, המשתרעת על פני תקופות היסטוריות שונות. באמצעות מסמכים היסטוריים ומחקר שטח, URBANUS פיתחה אסטרטגיית התחדשות המתמקדת בהצערת ננטו באמצעות התחדשות שמשפיעה על אשכולות גדולים יותר עם התערבויות בקנה מידה מיקרו, כמו גם ארגון אירועי תרבות.
בשנת 2017, URBANUS שימש כצוות האוצרים והביא את "הביאנלה הדו-עירונית של שנזן-הונג קונג של עירוניות \ אדריכלות" לעיר העתיקה של ננטו. זה סימן את ההתחלה של שימור והחייאת העיר העתיקה של ננטו על ידי שילוב שיפוץ מרחבי עם התערוכה. ב-2019, URBANUS חידשה את עבודתה בעיר העתיקה של ננטו, תוך שהיא מיישמת את המושג "דו קיום עירוני" על השינוי של הבניין ההיברידי של נאנטו. פרויקט זה מדגים גישת התחדשות מתקדמת, המתמקדת בשימור רבדים היסטוריים באמצעות קולאז' ומיקום זה לצד זה, במקום החלפה.
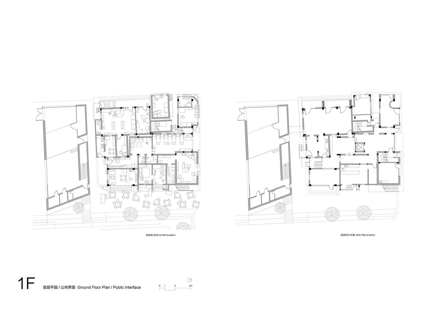
הבניין ההיברידי של ננטו, הממוקם בסמוך לכיכר בלב העיר העתיקה של ננטו, הוא מקבץ היברידי של חמישה מבנים בודדים, שנבנו במהלך תקופות שונות של ההיסטוריה ומציגים פלטות מגוונות של חומרים, מבנה וסגנון. עיצוב השימוש החוזר האדפטיבי משמר את המורכבות, הסתירה והקונפליקטים של המבנים הקיימים.
הקירות החיצוניים של חמשת הבניינים לא רק מסמנים את גבולות הנכס של שלושת הבעלים אלא גם ממלאים תפקיד משמעותי בשלמות המבנית הכוללת. התכנון שומר בקפידה על החזית הקיימת תוך הסרת קירות מחיצה והחלפת התוספות האקראיות המהוות סיכון מבני. חלל מרכזי נוצר כדי להכיל מעלית וגרם מדרגות חדשים, היוצרים "גרעין מחזור". חללים משותפים בכל מפלס משתרעים החוצה מהליבה, מחוררים דרך החזית כדי ליצור תוספות צדדיות מפלדת ברזל אדום המשמשות כפתחים, חופות, מרפסות, גשרים וגרמי מדרגות. זה מעניק מסע יוצא דופן כאילו מנווט דרך הנקיקים בין הבניינים. המרווחים בין הבניינים, יחד עם הוספת חלונות גג, הכניסו אור טבעי לקומת הקרקע, והעצימו משמעותית את הסביבה והאווירה הפנימית.
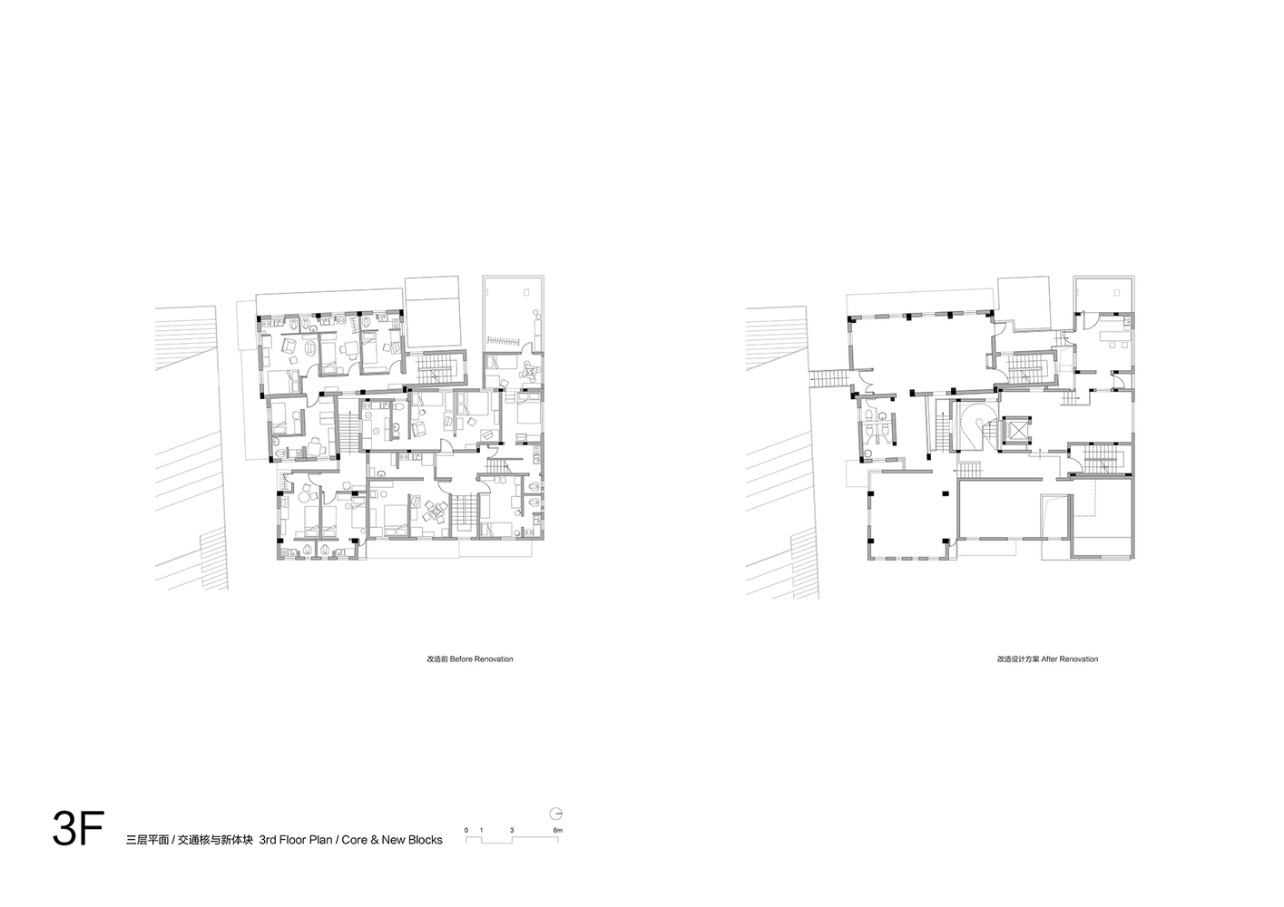
הקומה השנייה עד הרביעית של המבנים הקיימים, חולקו ל-29 יחידות דיור קטנות וצפופות. המחזור הפנימי מסודר מחדש תוך ניצול פתחים קיימים, פתיחה למעברים ויצירת מסדרונות. ה"מחזור הסגור" שנוצר מחבר בין חללים של כל בניין בגבהים שונים כדי להקל על אינטראקציות חברתיות תוך מתן פריסה גמישה להתאמה.
העיצוב שומר בקפדנות על שלל החומרים של החזית הקיימת, תוך החלפה או השלמה סלקטיבית של פסיפסים וצבע צבעוני. הקולאז' הצבעוני של חומרים ישנים וחדשים, יחד עם ההשתלבות המורכבת, משקפים את המהות האותנטית של הבניין ההיברידי של ננטו. כרך חצי עגול אדום משתרע מהקומה הרביעית עד החמישית, לצד כרך ירוק ומלבני הכולל חללים חיצוניים למחצה, שניהם יושבים על הגג. מבנים אלה מקיימים אינטראקציה עם החלל בגובה כפול וחלונות הגג, בהרמוניה עם מרפסת הגג. עיצוב חדשני זה מפגיש את הגגות שהופרדו בעבר לגן אחד ושליו, ויוצר נווה מדבר בתוך ההמולה וההמולה של הכפר העירוני. כל חלק בבניין, מהחנויות בקומת הרחוב והחללים הפנימיים ועד למרפסת הגג, משדר מתח דינמי שמוביל לגילוי האולטימטיבי: מיני "ארקדיה אנכית" הנפרשת ברחבה,
הבניין ההיברידי של ננטו עומד כעדות להיסטוריה המתפתחת של הכפרים העירוניים של שנזן. השיפוץ ארגן מחדש את הכאוס לכדי קוהרנטיות, ויצר קומפלקס פתוח ומיקרו בתוך העיר העתיקה המאוכלסת בצפיפות של נאנטו. הוא עונה על הדרישות החברתיות והתרבותיות של חיים עכשוויים ומציג טיפולוגיה חדשה של מרחבים קהילתיים אנכיים שהם ציבוריים ונגישים כאחד, וסוללת את הדרך לפיתוח כפר עירוני עתידי. לנוכח בנייה עירונית נרחבת, שיפור וייעול גנאלוגיות, מבנים וסביבות מקוריות מתגלה כאסטרטגיה מכרעת נגד הומוגניזציה עירונית. בניין Nantou Hybrid מייצג ניסוי משמעותי של URBANUS, תחת האתוס של "דו קיום עירוני". הוא מתעלה על חדשנות אדריכלית בלבד, המייצג שינוי פרדיגמה במחשבה וברעיון.
Architects: URBANUS
Area:
1090 m²
Year:
2023
Photographs:Chao Zhang
Lighting Design: GD-Lighting Design
客服
消息
收藏
下载
最近




































