查看完整案例


收藏

下载
架构师提供的文本描述。巴克利·格雷约曼为钱宁建造了一座面积8500平方英尺的表演艺术中心,这是一所位于伦敦高盖特的独立女子学校。专业标准设施的设计目的是为戏剧艺术和戏剧技术的教学提供设施,配备可由学龄儿童配置和操作的装置和灯光,使戏剧制作的技术方面与舞台上的行动一样成为教育方案的一部分。
Text description provided by the architects. BuckleyGrayYeoman has completed an 8,500 sq ft Performing Arts Centre for Channing – an independent girls’ school in Highgate London. The professional-standard facility has been designed to provide facilities for the teaching of both the dramatic arts and technical theatre skills, with rigging and lighting that can be configured and operated by school-age children, making the technical aspects of theatre production as much a part of the educational programme as the action on stage.
Text description provided by the architects. BuckleyGrayYeoman has completed an 8,500 sq ft Performing Arts Centre for Channing – an independent girls’ school in Highgate London. The professional-standard facility has been designed to provide facilities for the teaching of both the dramatic arts and technical theatre skills, with rigging and lighting that can be configured and operated by school-age children, making the technical aspects of theatre production as much a part of the educational programme as the action on stage.
© Dirk Lindner
德克·林德纳
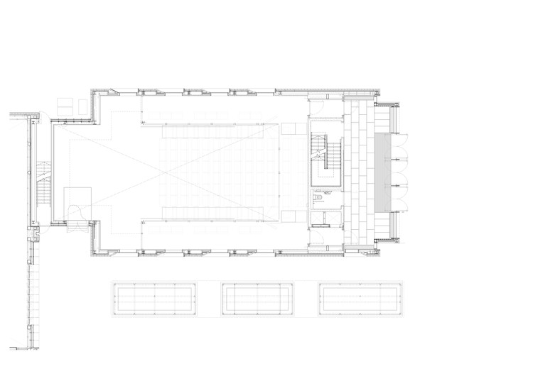
Ground Floor Plan
© Dirk Lindner
德克·林德纳
表演艺术中心的开幕标志着巴克利格雷扬学校六年空间规划的完成,这使得学校能够在高盖特保护区的一个受到严格限制的场地上提供高质量的新体育设施和中六住宿。
The opening of the Performing Arts Centre marks the completion of BuckleyGrayYeoman’s six-year spatial masterplan for Channing School, which has enabled the school to provide high-quality new sports facilities and sixth form accommodation on a tightly constrained site in the Highgate Conservation Area.
The opening of the Performing Arts Centre marks the completion of BuckleyGrayYeoman’s six-year spatial masterplan for Channing School, which has enabled the school to provide high-quality new sports facilities and sixth form accommodation on a tightly constrained site in the Highgate Conservation Area.
巴克利·格雷约曼主任保罗·怀特说:“表演艺术中心的建成也标志着六年总体规划项目的完成,在钱宁的高盖特校区实现了一场小小的革命。在保护区内使用密集的场地的限制下,我们创造了超过2.5万平方英尺的高质量专门设施,使钱宁能够提供独特的教育经验,加强核心课程,并鼓励建立生活技能的实用和协作学习经验,以补充学校的高学术水平。“
Paul White, Director of BuckleyGrayYeoman, said: “The completion of the Performing Arts Centre also marks the completion of a six-year master planning project that has achieved a minor revolution on Channing’s Highgate campus. Working within the constraints of a densely used site within a conservation area, we’ve been able to create over 25,000 sq ft of high quality specialised facilities that enable Channing to provide unique education experiences that enhance the core curriculum and encourage practical and collaborative learning experiences that build life skills to complement the school’s high academic standards.”
Paul White, Director of BuckleyGrayYeoman, said: “The completion of the Performing Arts Centre also marks the completion of a six-year master planning project that has achieved a minor revolution on Channing’s Highgate campus. Working within the constraints of a densely used site within a conservation area, we’ve been able to create over 25,000 sq ft of high quality specialised facilities that enable Channing to provide unique education experiences that enhance the core curriculum and encourage practical and collaborative learning experiences that build life skills to complement the school’s high academic standards.”
© Dirk Lindner
德克·林德纳
钱宁学校坐落在一个保护区内,学校校园有着牢固的建筑遗产。这座新建筑的标志性特征是一系列倾斜屋顶,它对这座建筑的纵向强调力度很大,使其与学校名单中的“创建者堂”(Founders Hall)相协调。将新楼集中在靠近现有学校的场地南端,保存了北面的绿色景观和户外运动场地,通过在庭院周围布置新老建筑,增强了校园的感觉。
Channing School sits in a conservation area and the school campus has a strongly built heritage. The defining characteristic of the new building, a series of pitched roofs, creates a strong longitudinal emphasis to the building that harmonizes it with the school’s listed Founders Hall. The grouping of the new buildings towards the southern end of the site in close proximity to the existing school has conserved the green landscaping and outdoor sports pitches to the north, strengthening the campus feel by arranging new and old buildings around a landscaped courtyard.
Channing School sits in a conservation area and the school campus has a strongly built heritage. The defining characteristic of the new building, a series of pitched roofs, creates a strong longitudinal emphasis to the building that harmonizes it with the school’s listed Founders Hall. The grouping of the new buildings towards the southern end of the site in close proximity to the existing school has conserved the green landscaping and outdoor sports pitches to the north, strengthening the campus feel by arranging new and old buildings around a landscaped courtyard.
Sections B and C
B和C节
表演艺术中心将用于排练和表演,可配置为250个座位的剧院或950平方英尺的表演空间,由两层画廊座位俯瞰。传统的舞台坐落在一个大礼堂的尽头,旁边有两层展厅的座位。可移动的排在舞台中央的座位可以被收回,以便为不同的表演类型或舞台创造一个下沉的地板面积,给学生和工作人员一个高度灵活的空间来进行各种艺术实践。剧院可以作为一个“黑匣子”的环境运作,也可以由三层高的窗户自然照明,当窗帘拉下时,这些窗户会使空间充满自然光。
The Performing Arts Centre will be used both for rehearsal and performance and can be configured as either a 250 seat theatre or a 950 sq ft performance space overlooked by two tiers of gallery seating. A traditional proscenium stage sits at the end of an auditorium flanked by two stories of gallery seating. Movable banked seating facing the stage in the center of the room can be retracted in order to create a sunken floor area for different performance types or staging, giving the students and staff a highly flexible space for a variety of art practices. The theatre can be operated as a “black box” environment or naturally-lit by three-story-high windows that flood the space with natural light when the curtains are drawn.
The Performing Arts Centre will be used both for rehearsal and performance and can be configured as either a 250 seat theatre or a 950 sq ft performance space overlooked by two tiers of gallery seating. A traditional proscenium stage sits at the end of an auditorium flanked by two stories of gallery seating. Movable banked seating facing the stage in the center of the room can be retracted in order to create a sunken floor area for different performance types or staging, giving the students and staff a highly flexible space for a variety of art practices. The theatre can be operated as a “black box” environment or naturally-lit by three-story-high windows that flood the space with natural light when the curtains are drawn.
© Dirk Lindner
德克·林德纳
整个项目都选择了高质量的材料.主要的红砖材料是根据现场内外的建筑环境选择的。手工砖有一个视觉上令人愉悦的颜色和纹理的自然变化,并使巴克利格雷扬约曼创造了许多特殊的砖块形状,以完成关键的建筑细节,如倒角窗口显示。石灰迫击炮被用来尽量减少运动关节的需要,从而产生一个精心制作的,雕塑的完成。
High-quality materials were chosen throughout the project. The predominant red brick material was selected in response to the architectural context within and around the site. The handmade bricks have a visually pleasing natural variegation of color and texture and enabled BuckleyGrayYeoman to create a number of special brick shapes to complete key building details such as the chamfered window reveals. Lime mortar was used to minimize the need for movement joints, resulting in a crafted, sculptural finish.
High-quality materials were chosen throughout the project. The predominant red brick material was selected in response to the architectural context within and around the site. The handmade bricks have a visually pleasing natural variegation of color and texture and enabled BuckleyGrayYeoman to create a number of special brick shapes to complete key building details such as the chamfered window reveals. Lime mortar was used to minimize the need for movement joints, resulting in a crafted, sculptural finish.
© Dirk Lindner
德克·林德纳
Architects BuckleyGrayYeoman
Location Highgate, London, United Kingdom
Area 8500.0 ft2
Project Year 2018
Photographs Dirk Lindner
Category Schools
Manufacturers Loading...
客服
消息
收藏
下载
最近























