查看完整案例

收藏

下载
Raquel Vega
Mexico City, MX
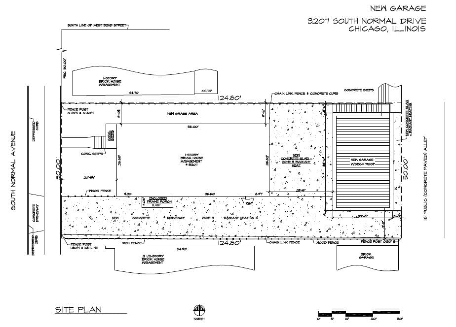
Site Plan
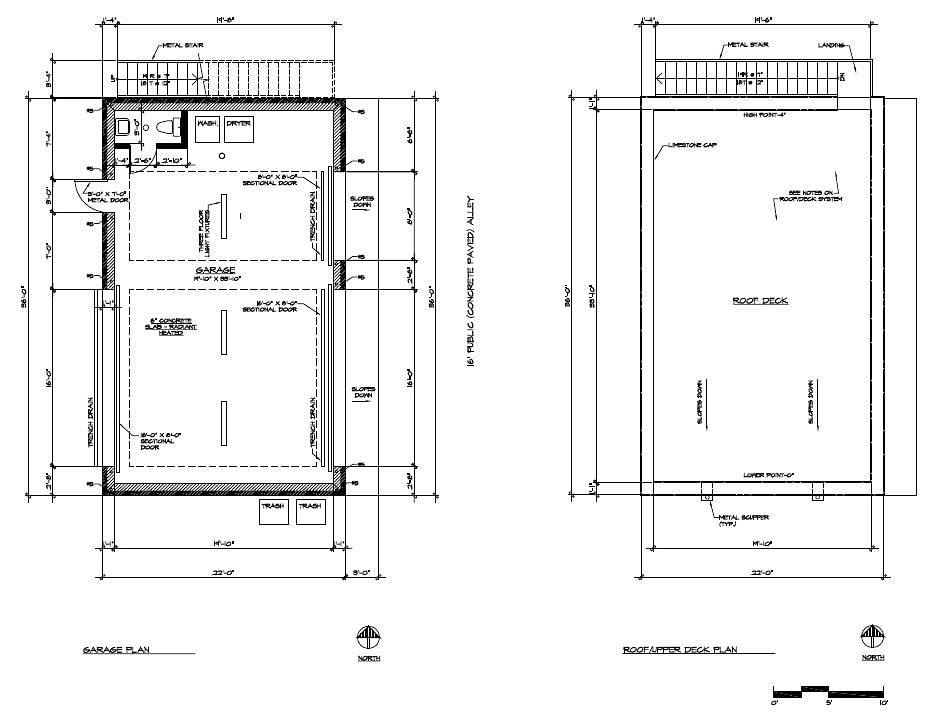
Garage Renovation
This was an existing garage with interior renovations of adding lavatory, new doors, and roof deck.. I based my drawings on photos and field sketch.
Status:
Unbuilt
Location:
Chicago, IL, US
My Role:
Architectural Drafter
Additional Credits:
Ed Yung, supervising architect.
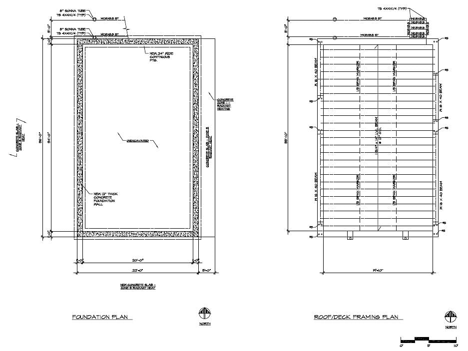
Foundation Plan & Framing Plan
Floor Plan & Roof Deck
Elevations
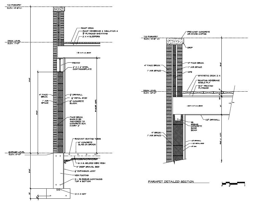
Wall Sections
MEPs
客服
消息
收藏
下载
最近



