查看完整案例

收藏

下载
Leverette House
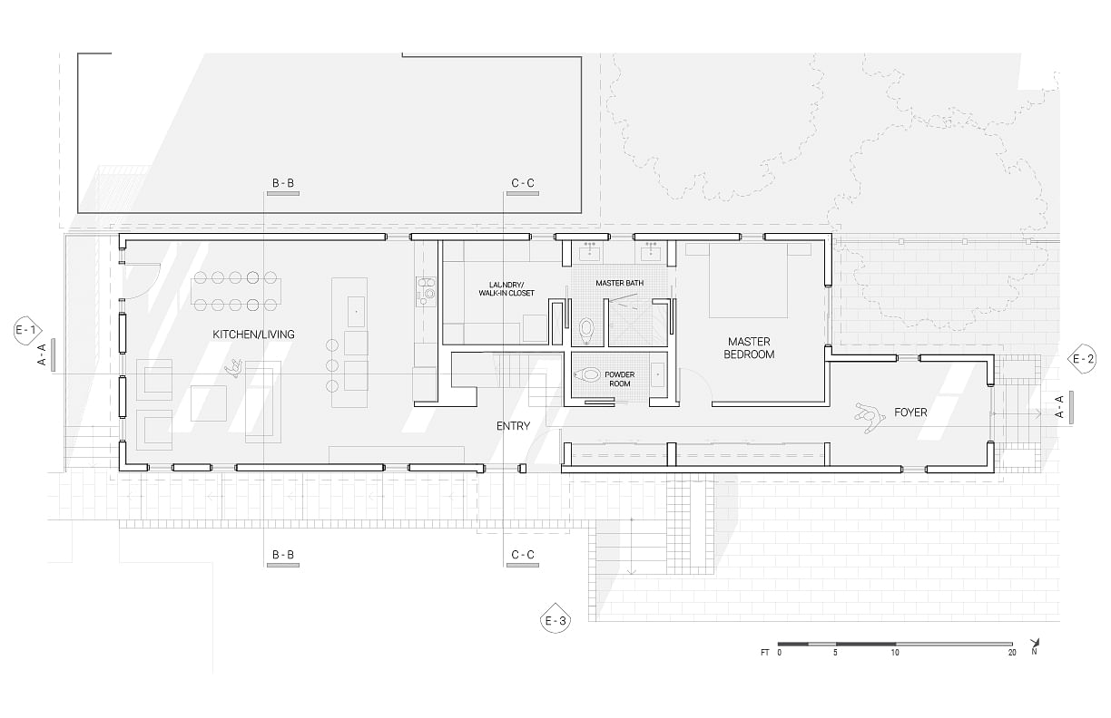
Built in 1896 in Detroit’s Corktown neighborhood, this simple historic home suffered years of vacancy, triggering a complete renovation in 2017. The new owners wished to downsize from their stately suburban home in favor of a walkable, urban lifestyle. Our goal was to respectfully modify the claustrophobic, heavily-partitioned interior to create a simple plan that fosters entertaining through openness, while providing privacy for the sleeping areas.
The crux of the solution was to relocate the stair, which was originally placed just paces inside the front door, where it cordoned off the kitchen, living, and dining rooms. We established a new stair location at the midpoint of the home, creating several opportunities. The new stair figuratively slices the home in half. The Slice serves an organizational function, separating public and private spaces in the long “shotgun” structure. Moreover, relocating the stair has allowed the living, dining, and kitchen functions to come together in one large living space. A monumental door was added at the Slice, serving as a new entry, connecting the interior inflection point with the yard and new walkway.
Exterior modifications were approved by the Historic District Commission. The original cedar clapboard was restored on the front, while fiber cement siding replaced aluminum siding on the sides and rear. Aluminum-clad wood windows supplanted the fiberglass replacement windows from a 1980’s renovation. New operable skylights flood the upstairs office with daylight. Finally, above the stair, a standing-seam metal roof stands out among the asphalt shingles to announce the new entry.
Status:
Built
Location:
Detroit, MI, US
Firm Role:
Architect
客服
消息
收藏
下载
最近
















