查看完整案例

收藏

下载
The Griffin at Signature Theater
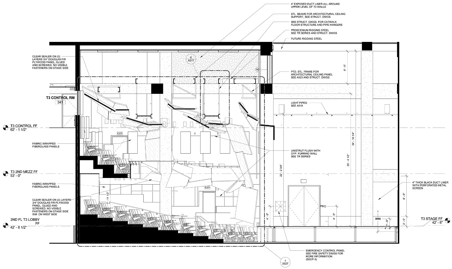
Located on the second floor of a new 59 story mixed-use tower on 42nd Street, H3 collaborated with Gehry Partners on the project to create three new theaters for the Signature Theater Company.
My focus was on the 190 seat jewel box theater defined by angled wood panels along the balcony, ceiling and proscenium framing the performance space. My BIM modeling experience was essential for the coordination and detailing of this space overall and of each and every panel.
Status:
Built
Location:
New York, NY, US
My Role:
Design Architect
Additional Credits:
H3 Hardy Collaboration Architects
客服
消息
收藏
下载
最近









