查看完整案例


收藏

下载
塔拉戈纳的圣玛丽亚阿斯苏普塔教堂,在城市里像一块坚硬的石头。
教堂的设计主要围绕着两个主要思想:
1.纪念碑:教堂作为集体空间,必须作为城市内的一项城市活动得到证明。
神秘:教会作为祈祷的场所,必须考虑一个独特的空间,能够传达超越的思想。
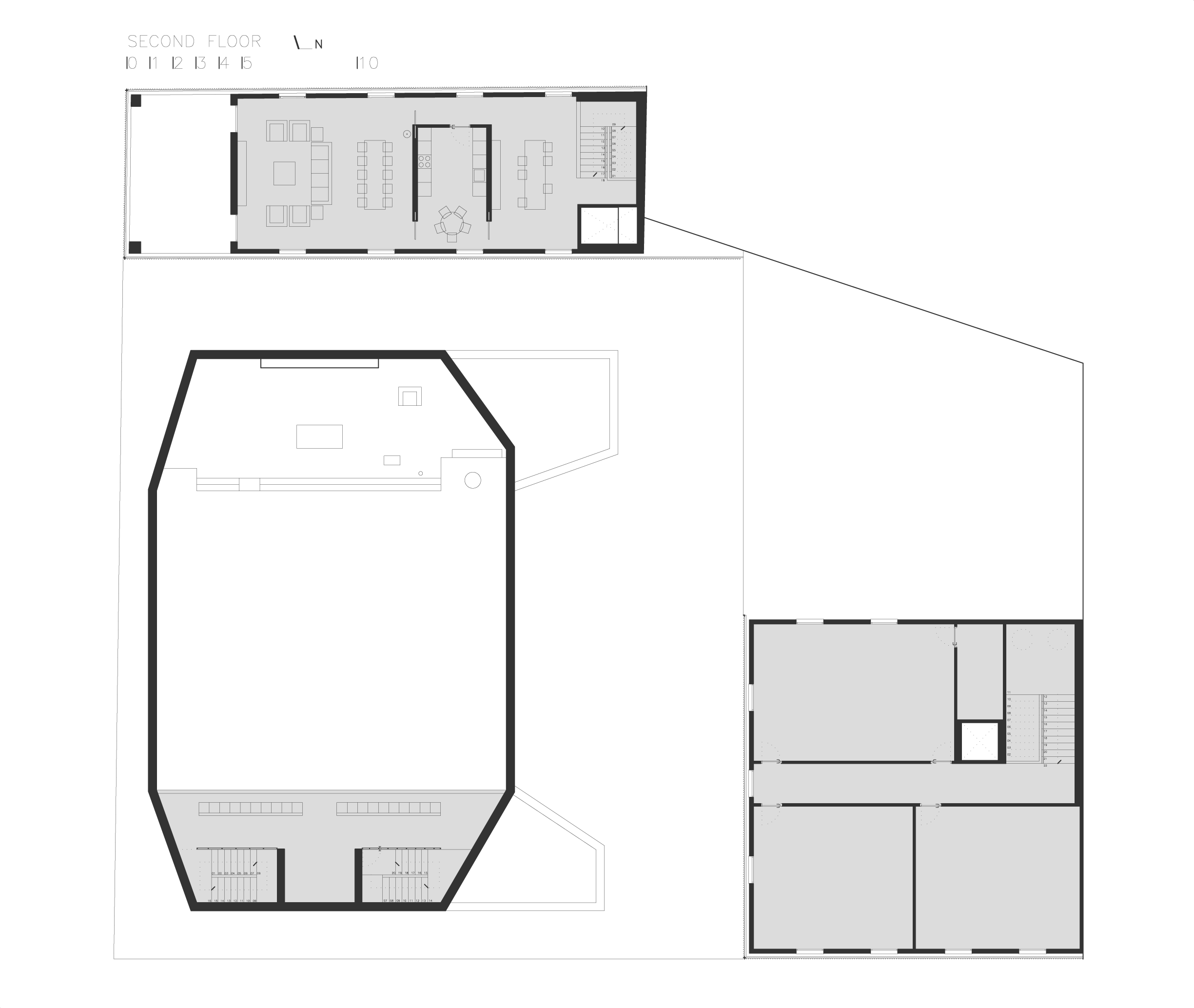
教堂以L形的中性背景建筑作为补充,其中包含了一些补充方案,如:教室、办公室或住宅等。这些软软的书位于遗址的北部和东部,保留了城市的结构,并为教堂的空间腾出了场地最公共的角落。教堂的独特形状,以及中立的背景,构成了它在城市中的可见度和存在性,加强了它的特色重要性和重要性。
有一个多面体的形状,暗示矿物形成,近20米高的岩石表现为一个纪念碑内的城市结构的城市和象征的身份的博纳维斯塔邻里。大体积的存在被翻译为一个坚实、紧凑、垂直的空间。岩石为天主教仪式提供了必要的退避和隐居,天顶照明产生了垂直的空间张力,传达了一种没有重量和精神的感觉。光、尺度和物质性是达到神圣体验的手段。
该设计揭示了一种简朴的方法,其意图是为礼拜仪式营造一个宁静而深刻的空间。这种建筑不涉及文体问题,而是试图重新创造永恒的普世价值观,因此,每个人,不论年龄或背景,都可能感到受到博纳维斯塔教区大家庭的欢迎。
Firm Gimeno Guitart
Type Cultural › Religious
STATUS Built
YEAR 2016
SIZE 10,000 sqft - 25,000 sqft
BUDGET $1M - 5M
keywordsarchitecture, architecture news, interiors, interior design, portfolio, spec, brands, marketplace, products Church and Parish Center Santa Maria Assumpta
建筑、建筑、新闻、室内、室内设计、组合、规格、品牌、市场、产品、教堂和教区中心圣玛丽亚
客服
消息
收藏
下载
最近
































