查看完整案例

收藏

下载
مؤسسهی هنر معاصر بوستن، ماساچوست، آمریکا / دیلر و اسکوفیدیو + رنفرو، 2006
مرکز فرهنگی گوئیانیا، گویاس، برزیل/ اسکار نیمایر، 2006
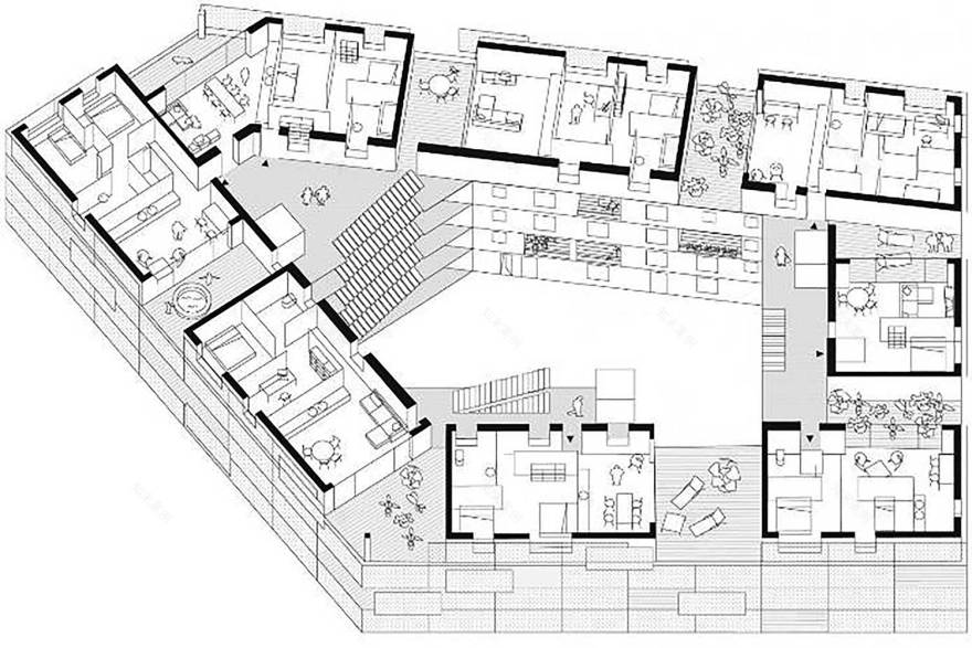
مسکن اجتماعی فرانسه، 2015
خانههای آپارتمانی
اثر گروه معماران LAN
رکسانا خانیزاد
در سال 2015، گروه معماران LAN، پروژهی مسکن اجتماعی 79 واحدی در یکی از محلههای جنوب غربی فرانسه را به اتمام رسانید. کارفرمای این پروژه دولت محلی بود، یکی از مهمترین اهداف این پروژه قابلیت گسترش آن بود تا خانوادهها بتوانند در طول زمان خانهی خود را مطابق با نیاز خود تغییر دهند. همچنین این تغییرات قابل بازگشت هستند و زمانیکه فرزندان برای کار، تحصیل و یا به واسطهی ازدواج خانه را ترک میکنند، پدر و مادرها میتوانند فضای افزوده شده را به فضای باز تبدیل نمایند و از آن استفاده کنند.
در کنار این فضاهای اختصاصی، فضاهای جمعی نیز در سایت تعریف گردیدند. در واقع تمرکز این پروژه، خلق فضایی ترکیبی از خانه و آپارتمان است و چالش اصلی معماران ساخت واحدهایی به صورت آپارتمان با خصوصیات خانههای ویلایی و مستقل بوده است.
این واحدها که از 25 مترمربع شروع میشود و تا 130 مترمربع پیش میروند، دارای پلانهای متنوع و متفاوت هستند. بدین ترتیب متقاضیان میتوانند با توجه به نیاز خود و تعداد افراد خانواده، از بین طرحهای موجود، خانهی خود را انتخاب نمایند. در ادامه این قطعات به صورت پازل طوری در کنار یکدیگر قرار گرفتهاند که فضاهای قابل گسترش در آینده در سمت نما و رو به بیرون قرار گرفتهاند تا مانند حیاط و فضای بازی اختصاصی عمل کنند.
دولت محلی، کارفرمای این پروژه، برای معماران چهار اصول اساسی را مطرح نمودند که در ادامه به آنها میپردازیم.
1- بازتعریف دوبارهی مسکن اجتماعی. طرحی میانهرو که در عین توجه به حریم خصوصی، جنبهی اجتماعی زندگی ساکنان را در نظر گیرد. بر این اساس طراحان، هر واحد از این آپارتمان را همانند یک واحد مستقل طراحی نمودهاند و حس حریم خصوصی، فضای خارجی مخصوص و دسترسی راحت به فضای بیرون را برای ساکنان فراهم نمودهاند و سعی کردهاند تا تاثیرات نامطلوب محیطی مانند، آلودگی جوی و بصری، مصرف بیرویهی مواد و مصالح و… را به حداقل رسانند.
2- طراحی خانهای که مردم بتوانند خودشان آن را تکمیل نمایند بدین ترتیب این پروژه یک خانهی نیمه تمام است. این خانه قابلیت این را دارد که در آینده به دوبرابر متراژ خود برسد. هر یک از ساکنان میتوانند با تبدیل فضای آزاد مخصوص هر واحد به فضای داخلی، خانهی خود را گسترش دهد. خانوادهها میتوانند با بزرگتر شدن خانواده، فضای باز که ساختار سازهای دارد را به اتاق تبدیل کنند و بعدها زمانیکه بچهها خانه را ترک کردند دوباره آن را به فضای باز تبدیل نمایند.
3- تبدیل این خانه به الگویی اقتصادی برای پروژههای مشابه. ساخت هر مترمربع از این ساختمان، هزار یورو است، قیمتی که بسیار پایینتر از قیمت رایج در منطقه است. این کاهش قیمت با توجه به سادهسازی کارها و کنترل و مدیریت بودجه اتفاق افتاد.
4- طراحی مدلی بر اساس اقلیم و پایداری. معماران با در نظر گرفتن روشهای متفاوت تنظیم شرایط محیطی، توانستند فضایی خلق کنند که در روزهای متفاوت با آب و هوای متفاوت فضایی مناسب برای کاربران خلق نمایند.
تجزیه و تحلیل
با توجه به بررسی نمونه موردی مسکن اجتماعی در فرانسه، در جدول ذیل راهحلهای به کار گرفته شده در این پروژهها به اختصار آورده شده است. از ویژگیهای مثبت طرح، امکان گسترش طرح در ارتفاع است. همچنین تبیین قوانینی برای گسترشهای آتی، باعث یکپارچگی طرح شده است.
مدارک فنی
客服
消息
收藏
下载
最近


















