查看完整案例

收藏

下载
Salón multifuncional / SAALS Architecture
Salón multifuncional / SAALS Architecture
Arquitectos: SAALS Architecture SAALS Architecture
Área: 9 m²
Año: 2012
Fotografías: Valts Kleins
Proveedores: Trespa EQUITONE Mapei AutoDesk Keraterm - bloki Paroc Ruukki Siguldas Bloks
Categoria: Arquitectura De Uso Mixto Remodelaciones Centro Cultural
Arquitectos A Cargo: Maris Krumins, Rasa Kleina
Clientes: Rezekne municipality
Ingeniería: Pils M
Paisaje: SAALS
Consultores: Pils M
Colaboradores: Maris Krumins, Rasa Kleina, Ansis Auzins, Eriks Martinovs, Igors Mihailovs, Andrejs Jakovlevs, Andrejs Garders, Ilze Geca, Anna Skredele, Ausma Kibilde, Dace Balode, Elmars Danisev - skis, Janis Zvilna
Ciudad: Malta
Pais: Letonia
Los arquitectos Maris Krumins y Rasa Kleina de SAALS crearon lazos sovieticos para la conversión de un edificio escolar a un nuevo salón multifuncional.
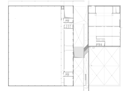
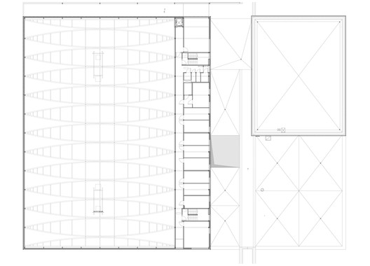
Recientemente, los edificios escolares han sido renovados -y de acuerdo con las normas de los fondos estructurales de la UE- está prohibido realizar transformaciones durante un período de cinco años. Por lo tanto, el nuevo edificio se destaca como el objeto más exitoso en términos visuales. La nueva sala multifuncional está situada en el centro del complejo y une todos los bloques, proporcionando acceso a esta por medio del interior, o a través de la entrada principal.
Los volúmenes del edificio son de diferentes alturas y crean una composición original vista desde cada ángulo -la vista se fusiona con los alrededores. La fachada presenta un diseño de color contrastante de azul, naranja, rojo y verde, mientras que su acabado de madera crea una transición visual de la superficie de un color a otro. Cada fachada tiene su propio color. Para que la presencia de color no sea demasiado deslumbrante, hay una doble fachada de listones de madera dispuestos en diagonal que someten a las paredes de paneles pintados industrialmente con tinte gris neutro.
Para que el acabado de madera fuera sostenible, los autores del proyecto dedicaron mucho tiempo al estudio de los agentes de procesamiento de madera y, como resultado, las partes de madera en la fachada fueron tratadas con sulfato de hierro. Este método se ha utilizado en la construcción de fachadas de madera durante años y garantizará su sostenibilidad.
Debido a la formación arquitectónica y al diseño de doble acabado, las fachadas han adquirido un aspecto dinámico y lúdico: cuando cambian las condiciones de luz y el punto de vista del visitante, también cambian los matices de color, presentando una referencia interesante a la coloración de los edificios circundantes.
En condiciones de presupuesto limitado, se debe realizar una renovación interior con un gasto mínimo. Por lo que en cada bloque, las paredes interiores blancas acentúan algunos de los colores utilizados en el edificio para los estudiantes.
El diseño interior no se incluyó en la licitación del proyecto, sin embargo, los arquitectos crearon un interior que, en contraste con el color exterior, es lacónico en blanco y negro.
Una sala destinada a eventos y conciertos en un espacio de cafetería de dos niveles tienen paredes de madera plegables pintadas de negro. Se pueden abrir o cerrar para ajustar la sala de acuerdo con la escala del evento u otras necesidades.
SAALS Architecture
客服
消息
收藏
下载
最近































