查看完整案例


收藏

下载
© Integrated Studio
综合演播室
架构师提供的文本描述。对许多农村社区来说,学校及其活动提供了一个城市的心跳。这种关系的重要性在位于爱荷华州最大的地理学区(555平方英里)的Cascade高中得到了放大。
Text description provided by the architects. For many rural communities, the school and its activities provide a municipal heartbeat. The significance of this relationship is amplified at Cascade High School, which is located in the largest geographic school district in Iowa (555 square miles).
© Integrated Studio
综合演播室
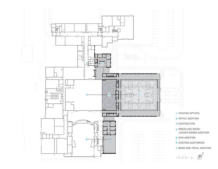
Floor Plan
© Integrated Studio
综合演播室
随着新的行政,娱乐和音乐空间的增加,这个项目加强了学校与其社区之间的关系。新的项目支持学校现有的组织和公共界面,同时将一座经过40年零碎发展的建筑统一起来。
With the addition of new administrative, recreation, and music spaces, this project strengthens the relationship between the school and its community. New program supports the school’s existing organization and public interface while unifying a building that had grown piecemeal over four decades.
故意使用清晰和半透明的外部材料创造了学校的活动与周围城镇之间的视觉对话。体育馆的日间活动成了它所面对的公园的延伸。在沉陷的体育馆里,清澈的玻璃把学生和街道的外部连接起来。
A deliberate use of clear and translucent exterior materials creates a visual dialogue between the school’s activities and the surrounding town. Daytime functions in the gymnasium become an extension of the park it faces. Clear glazing in the sunken gym connects students to the exterior at street level.
© Integrated Studio
综合演播室
在其他地区,玻璃与半透明的聚碳酸酯面板相结合,创造了一个令人愉快的自然光照的学习环境。晚上,随着音乐和体育活动的开始,玻璃变成了通往城镇的灯塔-以及那些经过高速公路的人-因为建筑发出柔和的光芒,宣布里面的活动。
In other areas, the glazing is combined with translucent polycarbonate panels to create a pleasant naturally lit learning environment. At night, as music and sports activities begin, the glazing becomes a beacon to the town – and those passing on the highway – as the building emits a soft glow announcing the activities within.
© Integrated Studio
综合演播室
Architects Neumann Monson Architects
Location Iowa, USA
Area 43090.0 ft2
Project Year 2014
Photographs Integrated Studio
Category Extension
Manufacturers Loading...
客服
消息
收藏
下载
最近
















