查看完整案例

收藏

下载
Új funkciókkal bővült a Miskolci Egyetemváros könyvtára és levéltára
Új funkciókkal bővült a Miskolci Egyetemváros könyvtára és levéltára
Fél évszázaddal megépülte után, az eredeti építészeti koncepció szellemében újult meg a Miskolci Egyetem könyvtára és raktára, amely a felmerülő igényeket kiszolgálandó új levéltári tömbbel és közösségi terekkel is kiegészült.
Miskolci Egyetem
a kommunista ideológia és paranoia különös szüleménye. Elődjét, a nagy hagyományú selmecbányai bányászati-kohászati tanintézetet még 1735‑ben alapították, majd már mint Bányamérnöki és Erdőmérnöki Főiskola költözött 1919-ben Sopronba. 1949-ben a nyugati határtól biztos távolságban, Miskolcon tették le az új, a kor szellemiségének megfelelő, Rákosi Mátyásról elnevezett Nehézipari Műszaki Egyetem alapkövét. Az ország jövőjét a nehéziparban vizionáló vezetés egy kellőképpen biztonságos térségben, a borsodi megyeszékhelytől valamelyest elkülönülő, a dombokkal ölelt Dudujka-völgyben jelölte ki a telepítendő egyetem helyét, ahonnan minden és mindenki megfelelően szemmel tartható.
Az építkezést 1950-ben kezdték a Szovjetunióból kölcsönzött szocialista-realista építészeti szellemiségben, a területre azonban Janáky István készített kellően szellős, parkos környezettel számoló, jó arányú telepítési tervet, valamint az első legjelentősebb épületek is az ő elképzelései szerint születtek. A 85 hektáros terület lazán kapcsolódó épületei nagyjából az 1960-as évek végére álltak össze teljessé, bár további kiegészítések a következő évtizedben is születtek, de az Egyetemváros – leszámítva az azóta jelentősen visszabontott, eredetileg 12 emeletes kollégiumi toronyépületet – egységes építészeti jelleget kapott, mindezt pedig az épületeket befoglaló, arborétummá fejlődött park teszi kellemessé, teljessé.
A biztonságos és kellőképpen őrizhető Miskolci Egyetemváros az ország első és a maga nemében jól végig gondolt egyetemi campusa lett, egyfajta „város a városban”, a befogadó várostól különálló élettel. Az egyetemhez Tolnay Lajos – Janáky munkatársa – tervei alapján épült önálló könyvtárépület, amelyet a park közbülső részére, az oktatási és a kollégiumi tömbök közé helyezték el, közel a központi étteremhez. Az 1969 nyarán átadott, szinte teljesen transzparens, 2800 négyzetméteres könyvtár épülete minden irányból üvegfalakkal körülvett, egybefüggő olvasóteremmel, melybe még a tető felülvilágítói is juttattak természetes fényt.
Időközben kellő magasságot értek el a könyvtárat körbevevő fák, így az olvasók a zölddel teljesen egybeolvadó terekben, lombok védelme alatt, kellemes környezetben tanulhattak, kutathattak. Az emeleti üvegezett olvasóterek alatti tömörebb földszinti részben a kiszolgálóhelyiségeket, valamint a védettség alatt álló, különleges Selmeci Műemlékkönyvtár termeit és a kisebb múzeumi funkciókat helyezték el. A könyvtár lepényépületéhez egy hatszintes raktárépület is csatlakozott.
Az egyetemen a műszaki tudományok mellett az 1980-as évektől fokozatosan új szakok jelentek meg: jog, közgazdaság, bölcsészet-, majd társadalomtudomány. A hallgatói és oktatói létszám bővült, színesedett, ezért az egész Egyetemvárosnak és a könyvtárnak is egyre sokoldalúbb igényeket kellett kiszolgálnia. 1999-ben világbanki forrásból jelentős felújítási és bővítési munkálatok kezdődtek az egyetem több épületén. Megújult a központi épület főbejárata, előadótermek épültek. A tervek között szerepelt a könyvtár felújítása és bővítése is, ez azonban akkor elmaradt.
A könyvtár és a raktár épülete megépítése óta, az elmúlt közel fél évszázadban nem esett át komolyabb megújuláson. Alapelrendezése máig jól működő, műszakilag, energetikailag azonban elavult, tűzvédelme nem felelt meg a jelenlegi előírásoknak, az ablaksor alatti műanyag burkolat és a tetőszerkezet elkopott. A felújításra és a bővítésre még az első nagy építkezést megelőzően Puskás Péter készített terveket, egyeztetve az épületet eredetileg jegyző Tolnay Lajossal. Az akkori pénzügyi keret azonban elapadt, ezért a megvalósulásra két évtizedet kellett várni. A 2018-ban „felmelegített” terveken csak kisebb módosításokat kellett végrehajtani, de a munkálatok már ezek szellemében kezdődhettek el. A műszaki megújulás és az energetikai korszerűsítés mellett a bővülést az újabb funkciók megjelenése, az időközben felmerülő igények és a helyhiány indokolta.
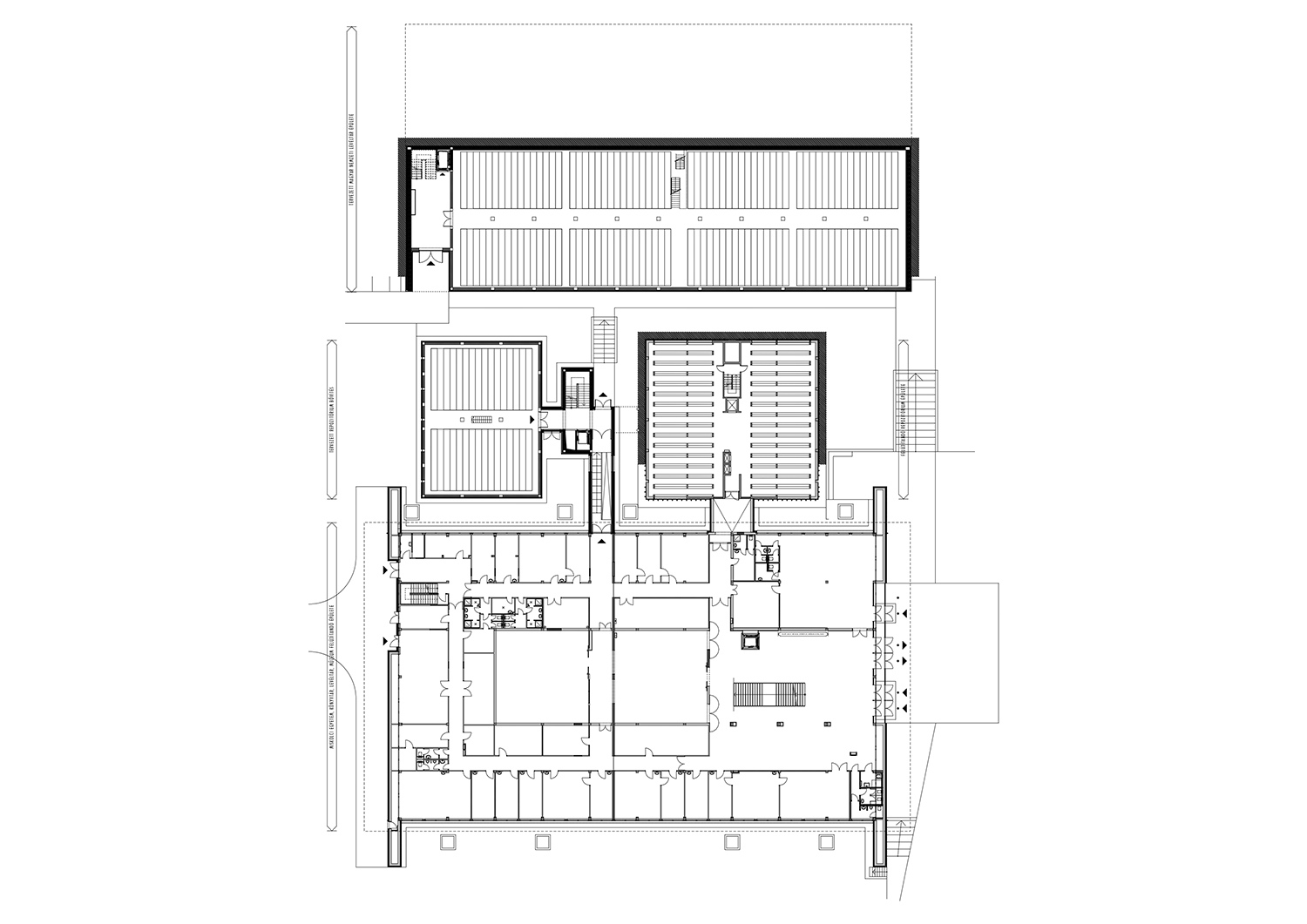
A könyvtár, ami korábban csak az egyetem polgáraira fókuszált, a mai elképzelés szerint már jobban nyitna a városlakók, vagy akár a teljes régió felé is, több programnak, könyvbemutatónak, felolvasóestnek, kisebb kiállításnak helyszínt biztosítva. Ugyanakkor a muzeális és a könyvtári gyűjtés folyamatosságával az 50 évvel ezelőtti raktárkapacitását kinőtte, s emellé még újabb gyűjtéskört, a megyei levéltár anyagát is szükséges befogadni. A bővítés során két új tömb jött létre: a közösségi, illetve a levéltári és a raktározási funkciókra.
A meglévő épület a Tolnay-féle szellemiség maximális tiszteletben tartásával újult meg, megmaradt az épület „lebegése”, nagyfokú transzparenciája. A könyvtári helyiségcsoportok a munkatársakkal folytatott előzetes konzultációk eredményeként rendeződtek át úgy, hogy a szükséges tagolások, irodai kialakítások, termek sem gátolták az épület alapvető átláthatóságát: térelválasztónak homokfújt üvegfalak kerültek. Nagy hangsúlyt fektettek a belső tér kialakítására, bebútorozására. A korábbi állapothoz képest több, élénkebb és világosabb, egyúttal azonban nem zavaró töménységű szín került az olvasótérbe, megjelentek párnázott pihenősarkok, kötetlenebb terek.
Az épület külső homlokzatán, az ablaksáv alatt futó új burkolat arany színvilága az olvasótermek függesztett világítótesteiben is visszaköszön. A földszinti terek komolyabb funkcionális átalakítása során újabb egységek kerültek be az épületbe: az egyetemi polgárokat célzó fitneszterem, valamint a városi közönség felé nyitó, leválasztható kávézó és kisebb előadótér. A korábbi kazánház megszüntetésével felszabaduló belső térbe egy multifunkcionális kiállítóterem került, amely szoros kapcsolatba léphet a Selmeci Műemlékkönyvtárral. Más helyiségcsoportokat, az irodákat és a könyvesboltot újraszervezték, az épület pedig akadálymentes lett, amihez egy liftet is be kellett építeni.
A könyvtárhoz nyugatról kapcsolódó repozitórium is megfelelően megújult, szerkezetéhez, elrendezéséhez nem volt szükséges hozzányúlni, de új fix és egységes polcrendszerrel látták el. A raktári állomány bővítéséhez egy teljesen új, a meglévő pandajakén, azzal egységes párt alkotó, a szimmetriát megteremtő kiegészítő tömb épült, ebben pedig tömörraktárat alakítottak ki. Egy újabb lépéssel nyugati irányba az egész együttest zárja a teljesen új levéltári épületszárny, amely értelemszerűen hátat fordít a raktáraknak, az oktatói tömbök felé pedig nyit.
A tömör hatású, ugyanakkor számos ponton feltárulkozó tömb tömege három alegységre bomlik, mindezt pedig a szimmetria fogja egybe. Az épület nagy részében ablaktalan levéltári raktárakat helyeztek el, az utcára nyíló nyugati oldalon oldja fel a tömörséget a kutatóhelyek és oktatótermek nyitottabb világa. A bástyaszerűen a két sarokra rendezett épületrész közé, a levéltári főbejárat fölé egy
hatású, tengelyében megdöntött elem került, amelybe a nagyközönséget is befogadó, „a szabad szellemiség áramlását” biztosító konferencia- és oktatótermet rendeztek be.
A szellős, faburkolatú tér felső sarkában megtörik, az ide behelyezett üvegbetétek kellő benapozást biztosítanak. A levéltári épület nagy része azonban csendes, a kutatást, az elmélyülést szolgálja, a belsőépítészeti kialakítás pedig jól kapcsolódik a megújult könyvtáréhoz. Az Egyetemváros markáns új épületszárnya kellőképpen zárja a könyvtárral indított folyamot, amely a terepviszonyokkal együtt finoman hullámozva emelkedik a völgy vége felé és alkot egy új, szimmetriával is kiegészített, immár beteljesült egységet.
Tudományos Adatelemző Módszertani Központ és Levéltár Nyílt Kutatási Adatforrástár létesítése a Miskolci Egyetem területén
Tervezés:
2018 – 2019
Kivitelezés:
2020 – 2023
Összes bruttó szintterület:
Felújítás:
7638 m2
Új építés:
5806 m2
Összesen:
13 444 m2
Nettó alapterület:
3150 m2
Generáltervező:
Műépítész Építészeti Tervezőiroda Kft.
Felelős tervező:
Puskás Péter
Építész tervezők:
Kocsis Szilárd, M. Bacskai Andrea
Építész munkatársak:
Zielem Rita, Deres László, Cristobal Romero
Belsőépítészet:
B. Szabó Veronika, Major György
Belsőépítész munkatársak:
Füvessy Klára, Mohamed Hassany, Major Ágnes, Basa Máté
Táj- és kertépítész tervező:
Dobos Sára
Kivitelező:
a Fejér-B.Á.L. Építő és Szolgáltató Zrt. és az Épkar Zrt. konzorciuma
Megbízó:
Miskolci Egyetem
客服
消息
收藏
下载
最近












