查看完整案例

收藏

下载
Tattoo House
Tattoo House: A Surprisingly Leafy Compromise Keeps Everyone Happy
Tattoo House by Andrew Maynard Architects (AMA)
Architect: Andrew Maynard Architects (AMA)
Location: Fitzroy North, Melbourne, Victoria, Australia
Delightfully Leafy Compromise
No one wants the neighbors peering down on them from their new, double - height extension. When you’re lounging in the backyard devouring your guilty pleasure (Fifty Shades of Grey?), you deserve some privacy, right? Well that’s why we have overlooking controls -- to protect your privacy in your private open space.
Unfortunately these planning laws result in a lot of dumb solutions: frosted or obscure glass, timber screens, or (worst of all) huge blank walls.
In Tattoo House, Andrew Maynard Architects (AMA) take the conflicting concerns of their client, neighbors and council and create a leafy compromise everyone is delighted with...
Stick-on Tattoo
The house uses the idea of a stick-on tattoo to create a screen. The scaled-up sticker is made from UV stabilized vinyl. It fulfills the planning requirements which dictate 75% opacity to second-storey windows.
The beautiful tree motif is adapted from photographs of trees in the nearby Edinborough Gardens. It performs numerous functions: provides privacy, shades the house, lets dappled light in, reflects the sun’s heat and it looks good, too!
Delightful Compromise
Left: The design the client wanted, full glass facade to take in views of the city.
Middle: Council/Neighbors’ preferred design, blank facade on upper level to ensure privacy.
Right: Architect’s compromise, a playful and attractive screen that provides privacy to neighbors without blocking views and sunlight.
Covered External Space
The home was designed as a covered external space. Due to budgetary constraints, the form is very simple -- a cube. The tree-shaped stickers let dappled light in, which enhance the sense that this is an external space shaded by trees.
During the day, the stickers shade the living space and keep the heat out. At night, the white trees reflect light back into the house and act as a privacy screen for the occupants.
Bifold doors allows the home to be completely opened to the outdoors, essentially dissolving the entire corner of the house.
Even the floor is treated as an extension of the outdoor decking which folds and turns throughout the house -- continuing the illusion that this is a covered outdoor space.
Multiple Functions
The tree tattoo is just one example of a design element that serves multiple functions.
The kitchen bench doubles as a landing for the stair, making both the stair and kitchen more space efficient. Just make sure to clean up your coffee spills, otherwise someone might come tumbling down the stairs!
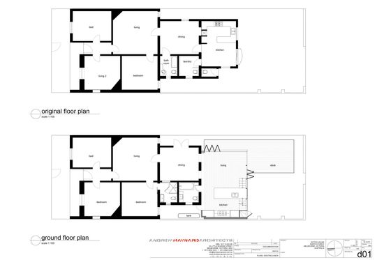
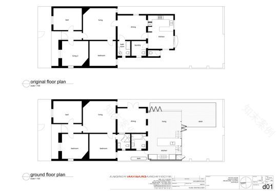
Take It Away, Diagrams!
You know what? I’m going to take a break and let AMA’s terrific diagrams do the talking. They do it better than me anyway...
Tattoo House
Given the limited budgets and other constraints of planning laws and a tight site, AMA’s design is a clever, integrated solution to the brief.
The clients are happy -- they have a light-filled extension with great connection to the garden and glimpses of city views.
Council is happy -- their 75% opacity overlooking restriction is satisfied.
The neighbors are happy -- no one’s peering down on their flushed face as they get to the particularly racy part of their book.
Here’s a tattoo everyone can agree on -- it’s win-win-win.
客服
消息
收藏
下载
最近

















