查看完整案例

收藏

下载
Höher, heller, aufgeräumter! So clever wurde eine 30-Quadratmeter-Wohnung unter den Dächern von Paris umgebaut
Ein Dachboden-Ausbau und ein vielseitig nutzbarer Stauraum-Einbau veränderten alles und machten aus einer beengten Studentenbude ein lichtdurchflutetes Duplex-Studio
Annabelle Dufraigne
Sarah Rottach
Im Pariser Stadtviertel Les Batignolles wurde ein Mini-Apartment zu einer 45 Quadratmeter großen Dachgeschosswohnung mit zwei Ebenen umgestaltet.
überzeugt nicht nur mit einem funktionalen und charmanten Interior, sondern auch mit einer raffinierten Erweiterung der Wohnfläche: Um ganze 15 Quadratmeter (!) wuchs das
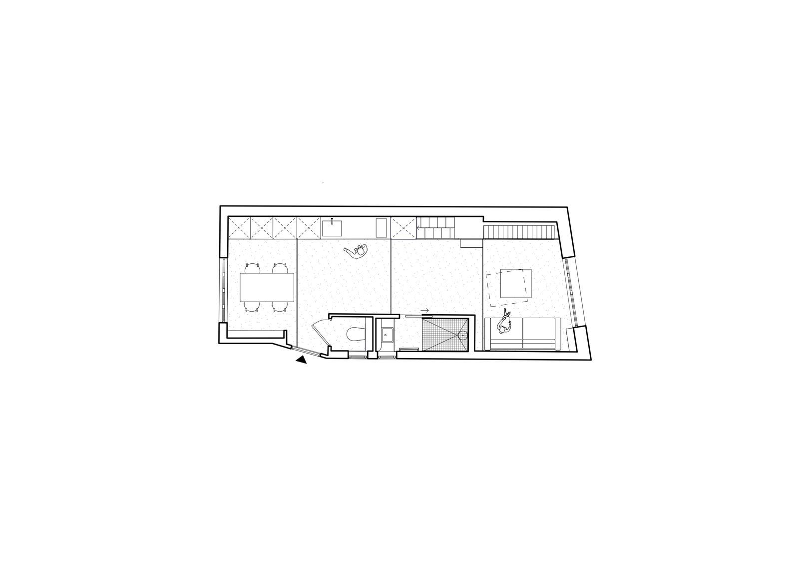
liegt in der siebten und damit obersten Etage eines der höchsten Gebäude des Viertels Les Batignolles. Der originale Grundriss umfasste 30 Quadratmeter, verteilt auf einen Wohnbereich, ein viel zu großes Badezimmer sowie eine winzige, abgegrenzte Küche. Aufgrund der Raumaufteilung verfügte das Studio nur über wenig Helligkeit.
effizienter zu gestalten, beauftragte er das Architekturbüro Atelier 1060 – und dessen Architektinnen gelang es, die 30 Quadratmeter Wohnfläche zur 45 Quadratmeter großen
Unter den Möbeln finden sich sowohl neue Stücke als auch Vintage-Exemplare, wie zum Beispiel der Couchtisch aus den 1970er-Jahren, das La- Redoute-Sofa oder die Wandleuchte von Zangra.
Das Gitter-Geländer aus weißem Stahl erstreckt sich bis ins Zwischengeschoss und fungiert als Bindeglied zwischen den beiden Etagen.
Obwohl Atelier 1060 erst vor einem Jahr von Fanny Boquien und Victoire Sebaux gegründet wurde, wird das Büro bereits für eine Vielzahl an Projekten engagiert. Das Duo hat zwar vorwiegend mit größeren Bauprojekten zu tun, doch ist es mindestens genauso gut darin,
Die Architekt:innen haben den gesamten unteren Wohnbereich, der einst von mehreren Zwischenwänden geprägt war, geöffnet, sodass Tageslicht durch das große Fenster des ehemaligen Badezimmers in die Wohnung strömen kann; dadurch entstand außerdem genügend Fläche für einen gemütlichen Essbereich. Noch mehr
fällt durch das neu eingebaute Dachfenster im Schlafzimmer, das nach oben verlegt wurde, sodass nun insgesamt eine sonnige, helle Atmosphäre herrscht. „Der durchgängige Charakter [des neuen Grundrisses] bringt auch thermische Vorteile mit sich“, erklärt Atelier 1060. „Durch das Velux-Fenster entsteht eine natürliche Durchlüftung, was in einem Dachgeschoss, in dem es heiß werden kann, sehr angenehm ist.“ Das absolute Highlight ist jedoch die spektakuläre Aussicht aus dem siebten Stock. Darüber hinaus verfügt das zweigeschossige Mini-Apartment über Öffnungen auf beiden Seiten, wodurch man „einen unglaublichen Blick auf die Dächer von
Der multifunktionale, eigens geschreinerte Einbau umfasst nicht nur die Küche, sondern auch Stauraum sowie eine Waschmaschine. Die Treppe wird von der „Elgar“-Wandleuchte von Sammode beleuchtet.
Für den Essbereich neben der Einbauküche wurden von Atelier 1060 der „Clavex“-Glastisch von Maximum und „All Plastic Chairs“ von Jasper Morrison für Vitra gewählt.
Die Architekt:innen haben nicht nur durch den Ausbau des Dachbodens mehr Platz gewonnen, sie integrierten obendrein eine raffinierte Holzkonstruktion in der unteren Etage: Der lange geschreinerte Einbau erstreckt sich über die gesamte Wohnungslänge und bietet eine Vielzahl nützlicher Funktionen. Er umfasst
Gegenüber dem Mehrzweck-Einbau liegen die Badezimmer, die, wie der Rest der
, kompakt gestaltet und auf die wesentlichen Funktionen beschränkt sind. „Und trotzdem großzügig“, merkt Atelier 1060 an, „denn die Toilette ist separat untergebracht, im Bad gibt es eine große Dusche und beide Räume sind mit einem Fenster ausgestattet.“ Sobald die Grundstruktur stand, musste sich das Studio nur noch um das Mobiliar kümmern. Eine Aufgabe, die keine besonderen Schwierigkeiten mit sich brachte, da Ess- und Wohnbereich – trotz der stark
Durch das neu eingefügte Dachfenster ist das Dachgeschoss trotz der niedrigen Decke genauso lichtdurchflutet wie der darunter liegende Wohnbereich.
„Da das Schlafzimmer nicht sehr hoch ist, haben wir es wie einen schlichten, weißen
Die eingebaute Schrankwand erstreckt sich über die gesamte Wohnungslänge und mündet schließlich in einer gepolsterten Sitzbank. Wandleuchte „Alcove Verde“ von Violaine d’Harcourt.
Die schlichte Einrichtung wurde zum Teil von Atelier 1060 ausgesucht, so zum Beispiel die Hängeleuchte „Ama“ von Zuri Objects. Schalter und Steckdosen aus gebürstetem Edelstahl von Modelec.
Im Einklang mit dem Wunsch des Wohnungsbesitzers eines minimalistischen Interieurs entschied sich Atelier 1060 für einen hellen Boden aus Beton Ciré und weiße Wände, die das entfallende Tageslicht reflektieren würden. „Daraufhin haben wir mit ausdrucksstärkeren Materialien gearbeitet, um ein schlichtes, aber dennoch warmes Ambiente zu erzeugen.“ So sorgt beispielsweise das dunkle, lackierte Holz des langen Einbaus für Wärme und spielt dezent auf den Stil der 1960er-Jahre an. Dank vereinzelt in den Beton-Boden eingelassener Holzleisten verschmelzen die eigentlich kontrastierenden Materialien nahtlos miteinander. „Grundsätzlich wurden vier Hauptmaterialien eingesetzt, wobei zwischen den verschiedenen Materialien gleichermaßen Balance und Kontrast herrschen sollte“, so das Architektur-Studio. Während der Beton Ciré einen mineralischen, dezent brutalistischen Charakter aufweist, strahlt das Holz sanfte Wärme aus; für Reflexionen sorgen wiederum Details aus Edelstahl und weißem Stahl. Die Bäder wurden in demselben minimalistischen und ruhigen Stil eingerichtet wie der Rest der Wohnung, „wobei zusätzlich große Spiegel eingesetzt wurden, die in Dialog mit dem reflektierenden Edelstahl treten und die kleinen Räume größer wirken lassen“.
Da das Interior schlicht und ohne Schnickschnack gestaltet werden sollte, beschränkt sich die Einrichtung auf Möbel und Leuchten, die gemeinsam mit dem Eigentümer ausgesucht wurden, der „selbst ein Auge für Details hat“ – wie beispielsweise das blaue Sofa, der Couchtisch aus Fiberglas aus den 1970er-Jahren, der auf dem Flohmarkt erworben wurde, oder der Esstisch, dessen Gestell aus alten Gerüststangen hergestellt wurde (der Hersteller, Maximum, verwendete hierfür alte Materialien von Baustellen wieder). Hinzu kommen einige persönliche Schätze des Besitzers, wie die Bilder an den Wänden oder die Uhr, die mit Objekten kombiniert wurden, die von den Architektinnen ausgewählt wurden – darunter die bunten Kerzenhalter oder die „Atollo“-Leuchte auf der Treppe. Das Resultat: Ein heller, minimalistischer Kokon, in dem jeder Zentimeter optimal ausgenutzt wurde.
Im Badezimmer werde die schlichten Materialien und Farben des Wohnzimmers aufgegriffen.
Eine im Boden integrierte Holzleiste grenzt das Esszimmer visuell vom Wohnzimmer ab.
Das Schlafzimmer wurde im neu erschlossenen Dachgeschoss untergebracht.
Eine Seitenansicht des Mini-Apartments, dessen Dachboden ausgebaut wurde.
Der Grundriss des ehemaligen Studentenstudios mit viel zu großem Badezimmer und zu starker Raumaufteilung.
Der Grundriss der umgestalteten Maisonettewohnung, in der jeder Zentimeter optimal ausgenutzt wurde.
客服
消息
收藏
下载
最近
















