查看完整案例

收藏

下载
Sadar Vuga Arhitekti appartment ljubljana 2016
Novi kontrasni enterijer stana u staroj ljubljanskoj zgradi
Salonski stan u užem gradskom jezgru prestonice Slovenije doživeo je totalnu transformaciju. Pogledajte kako on sada izgleda!
Arhitektonski biro
SADAR + VUGA
dobio je zadatak da kompletno transformiše stan smešten u staroj ljubljanskoj zgradi iz 19. veka u savremen apartman po željama klijenta.
Novonastalo enterijersko rešenje međusobno je suprotstavljeno:
ujedno je i toplo i hladno, mekano i oštro
. U isto vreme je i otvoreno i zatvoreno prema okruženju, a takođe i povezano ali i u konfliktu sa istorijskim nasleđem.
Kako navode arhitekti
Jurij Sadar, Boštjan Vuga i Tina Hočevar
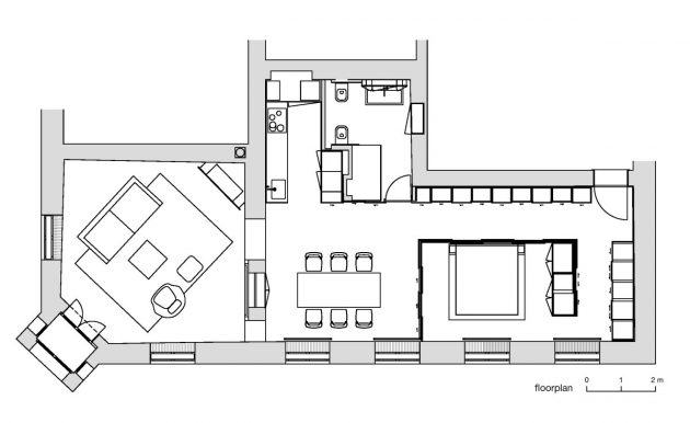
, ovaj enterijer od 90 kvadrata interpolacija je dva različita ali vizuelno povezana ambijenta sa kontrasnim identitetom i materijalima.
Dnevna soba, ušuškana u tople i izražene teksture, reinterperacija je klasičinih
Art Nouveau
salona. Materijalizacija privlači pažnju posmatrača: od kamina optočenog u oniks, preko vintage podova pa sve do
ogledala na plafonu koje izgleda kao barokna iluzionistička freska
.
Posebna pažnja posvećena je i rasveti u dnevnom boravku: pored savremenog lustera čije se svetlo odbija o ogledalo na plafonu i o polirani kamen, i sam kamin sa oniksom postaje izvor svetlosti.
Ostatak stana je u potpunoj kontri sa samim salonom.
Mreža aluminijumskih greda okačenih o plafon
definiše strukturu ostalih prostorija: kuhinju, kupatilo, spavaću sobu i garderober. Oni su međusobno odvojeni
kliznim vratima
koja su okačena o konstruktivne grede.
Prostorije su međusobno odvojene kliznim vratima od aluminijuma i pleksiglasa koja dozvoljavaju menjanje funkcije stanovanja.
Otvaranjem kliznih vrata dnevni boravak može se proširiti čime se ceo stan pretvara u jedan
open-space apartman
lišen vizuelnih ograničenja.
Sistem reflektora okačenih o plafon osvetljava stan i naglašava bogate ali vizuelno ujednačene teksture ovog dela stana:
aluminijum, pleksiglas, tekstili, betonski pod i ogledala
koji enterijeru daje pomalo
industrijski stil
.
Struktura stana omogućava jednu vrstu
voajerizma
. Naime, pozicija sofe nudi pogled ka Kongresnom trgu, spavaćoj sobi pa i, ako se pogleda u plafon, ka samom posmatraču. S druge strane, sedenjem za trpezarijski stolom otvara se pogled ka kuhinji, spavaćoj sobi ali i ka
tuš-kabini koja je provokativno urađena u staklu
.
Zatvaranjem kliznih vrata stvaraju se prikladni i funckionalno izdvojeni prostori. Klijent je taj koji može u svakom trenutku da ovaj kontrasni stan potpuno transformiše prema sopstvenim željama.
Koncept stanovanja
Osnova stana
Presek stana
Foto:
Miran Kambič
客服
消息
收藏
下载
最近














