查看完整案例

收藏

下载
Transport hub in Belfast, Northern Ireland by Hall McKnight
The granite prow of Colin Connect Transport Hub emerges dramatically from the roadside corner
An oriel window suspended above the entrance frames the activity within
The strident geometry is softened by the orange-red brick colour of the poured-concrete interior. The angles nudge passengers through, while triangular roof
lights illuminate the generous spaces
As part of an ambitious masterplan for Colin, Belfast, Hall McKnight’s transport hub is hoped to catalyse regeneration of the hitherto neglected, dislocated and disconnected city fringe
Despite having a population estimated at over 25,000 (with 50 per cent of this figure being under 25 years old), the exact location and parameters of Colin, Belfast, is difficult to ascertain. Historically, it has tended to be identified within the wider community of Poleglass, part of its series of clustered neighbourhoods separated by patches of mown grass and trees, and laid out exclusively in cul-de-sacs. On maps, the trees constitute the tertiary, capillary-type forms of an urbanism that, while ubiquitous throughout the UK, has had a special and definite resonance within Belfast.
Poleglass and Colin were mostly built in the 1980s at the height of the Troubles to accommodate the decanting of a Nationalist population from the overcrowded Falls area of the city. Like similar clearances of working-class areas elsewhere in the UK, this often involved a movement from the centre to the periphery, and a reduction in density to a firmly suburban idiom of semi-detached, two-storey dwellings, effected here mainly in brick. The single entry-exit point of the cul-de-sac, following Oscar Newman’s edicts in
Defensible Space
(1972), allows such spaces to be watched, controlled or sealed off if and when necessary. This suburban typology was greatly favoured by the British Army and the Royal Ulster Constabulary in their attempts to police a community – one of many and on both sides of the sectarian divide – that was perceived potentially as a threat. However, during the conflict, occupants and potential occupants of cul-de-sacs also saw their lack of permeability as a positive factor in their own safety. In Belfast, the cul-de-sac became an omnipresent urban and suburban motif, creating a landscape that tends towards enclaves, often sterile territories of single-type, single-use housing where there is little value placed on meaningful shared or public space but an abundance of unclaimed emptiness.
Transport hub in belfast, northern ireland by hall mcknight drawings
So describes Colin, out on the south-west fringes of the city, dislocated, disconnected, disaffected and underdefined – until 2015 it was in the West Belfast parliamentary constituency but located inside the Lisburn Council boundary. Acutely lacking in investment and other resources, it has suffered from a familiar mixture of poverty, lack of social mobility, unemployment and some anti-social behaviour. What built resources do exist – in the form of small factories, government agencies, schools and a shopping centre – have often been positioned in isolation, an additive string of autonomous pavilions ringed with car parks and protected by various species of fencing. The result is an aggressive, almost paranoiac built landscape inhabited by speeding cars and security signs, where even the grass seems to propose a compulsion not to linger but to move on, to disperse.
It is this complex spatial and cultural context Hall McKnight have responded to in a small building that presently acts as a fragment of a future civic environment that may or may not be. The Good Friday Agreement of 1998 allowed a softening of the security imperatives concerning space, an increasing self-consciousness of the paucity of offerings of built environments such as Colin, and the beginnings of a political will to do something about them.
‘The hub offers an image of a field-of-dreams urbanism that, through sculptural gravitas and permanence, might ultimately persuade people to
come’
In the summer of 2013 – drawing on the
Colin Neighbourhood Strategy
(2003) and the area’s designation as a Neighbourhood Renewal Area – the Department for Social Development and Colin Neighbourhood Partnership published a draft masterplan. This proposed a new identifiable town centre for Colin on an area of green space straddling both sides of the Stewartstown Road artery, adjacent to the existing shopping centre. Following this in 2014, landscape architecture firm, the Paul Hogarth Company, was appointed to lead a multi-disciplinary team (which included the architects Hall McKnight) to further refine these proposals and produce another masterplan. What emerged was a proposition for a park to the north-west of the road joined by a ‘green link’ to a rather more civic collective of forms opposite, containing a new leisure centre, health centre, secondary school, some housing, some parking and Hall McKnight’s transport hub. To date, this last is the only part of the masterplan to be built.
The transport hub has been designed partly to accommodate the Belfast Rapid Transit Glider, a new, frequent bus service linking Colin and Poleglass to the city centre then beyond – significantly and positively – to the predominantly Unionist East Belfast. At Colin, the hub also provides connections to local bus routes. Approaching from the city in a taxi, it becomes clear that the building presents a signpost in the landscape – not unlike Venturi and Rauch’s Dixwell Fire Station – immediately identifiable at speed across the lawnscape and emphasised by its prow-like peak rising at the roadside corner of the square plan. Also readable from the space of an approaching car, or indeed the Glider, is the monumentality of the forms here: the sharp granite ariss of the leading edge, its folding as you pass by (redolent of Terragni’s Monumento ai Caduti at Como); and the two heavy, rust-coloured granite framed oriel window elements – one portrait, one landscape; one grounded, one suspended. The windows give a first suggestion of the space inside as it breaks through what the architects have described as the exterior’s grey granite carapace.
Transport hub in belfast, northern ireland by hall mcknight drawings
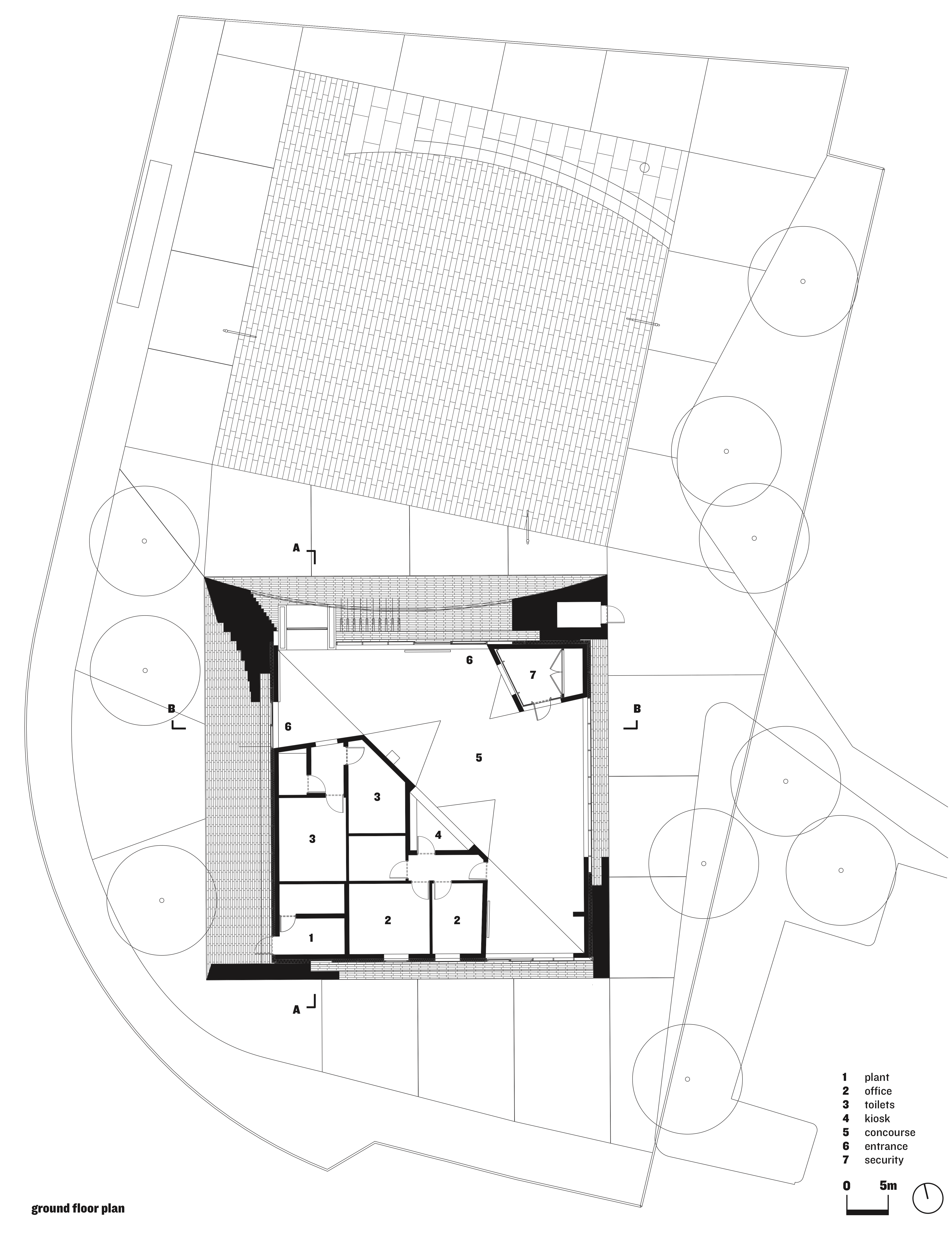
Circulating the building on foot, you become aware that two spaces are proposed here, one positive and one negative: the building itself and a type of forum or piazza, each of which occupies the same footprint as the other, interrupting the landscape in two squares. The curve effected in the piazza as it cuts into the slope behind is echoed in the facing facade of the building’s outer shell and again as it turns the corner at the prow into the facade addressing the main road. This shell touches the ground on the reverse sides less heroically – the local buses pull in and the building addresses a slope leading to some nondescript offices.
As hinted at by the framed elements, but nonetheless still surprising, the interior is of a soft orange-red brick colour, effected in poured concrete. The plan is simple, the gathering of formal functions into a single block, the interior angles of which provide diagonal leads to the flow of pedestrians through the space, and an outlier ticket office, the form of which posits to do the same. The rest of the building is generous unprogrammed space to accommodate the movement of passengers between the Glider and local transport connections. A coffee servery is provided to induce them to linger, as do the benches located in the corners of the plan and within the interior of the orange granite portrait oriel. From these positions, the gaze can occupy the fullness of the diagonal, setting up views towards the road and slopes beyond, or upwards to where the apex of the roof is broken by a number of triangular roof lights. In an area of big suburban skies, these give more circumspect glimpses.
Transport hub in belfast, northern ireland by hall mcknight drawings2
What the Colin Connect Transport Hub does
not
look like is a transport hub. Tickets can be bought outside at the generic shelters where people actually sit and wait the 10 minutes or so for the Glider or other to arrive. Looking down on it from the housing estate opposite, it could be an art gallery or something ecclesiastical – certainly its cranking interior could pass as the asymmetrical nave of an austere church, and the prow and the poured concrete roof do have something of Ronchamp about them. If we take the Greek word for church
ecclesia
into its broader meaning of assembly, then perhaps we are closer to a more substantive function, a type of civic infrastructure that facilitates a community gathering in various forms – the space has already been used to host a choral event.
What the hub also does is offer an image of what civic space in the suburbs could look like – a field-of-dreams urbanism that, through an architectural language of sculptural gravitas and permanence in a landscape otherwise of movement, expediency and neglect, might ultimately persuade other buildings and users to
come
. This, however, is a big ask for any single building and one is aware, when sitting in its beautifully designed precincts, of the contradictions on site, the juxtapositions apparent from the carefully considered, here, to the wider landscape of Colin, or the cost of a very expensive project that, presently, seems acutely under-programmed.
What is needed for Colin is a bigger vision, one that, despite the advocacy and community involvement in the masterplan, might not actually require a town centre. Or even a masterplan as understood in its present form, which seems to propose another additive layer onto Colin without engagement with the hectares of existing cul-de-sacs and whatever potential for alternative urbanisms might lie dormant there. In a landscape of fenced pavilions, there is a suspicion that the town centre – should it be built – may become another collection of isolated forms. Housed in the carapace of the Colin transport hub are four heavy industrial shutter systems to protect the inner glass of each facade from adversity when the building is closed. However admirable the civic optimism expressed by the building and however good the architecture is, the present reality of Colin lags somewhere behind.
Transport hub in Colin, Belfast, Northern Ireland by Hall McKnight
The transport hub, home to the Glider bus service, links Colin and Poleglass to the city centre and, more significantly, to Unionist East Belfast. Other civic structures are in the pipeline for the site
Transport hub in Belfast, Northern Ireland
Architect: Hall McKnight
Photographs: Donal McCann
客服
消息
收藏
下载
最近












