查看完整案例

收藏

下载
废土乐园、虚张声势与巨大火锅 / 察社办公室
主人决心把这处废土改造成到访者的乐园。假期的时候,未来的院子能够提供5个完整的卧室;同时设置户外可以看到山景的平台,还有露天泡池,秋千和滑梯一类设施。无论成年人或小朋友都能乐在其中。
这处山中居所被主人废弃多年。因为地处梯形台地一阶的尽端,远离邻里日常生活,不易抵达;渐渐的,房舍倒塌,树木野草丛生,遍布垃圾,俨然一片村中废土。初看场地时,接近手掌大的蜘蛛,各种鸟类,蜜蜂和流浪动物把这里当作了家。庇佑大家的是那两颗无人照料反而生意盎然村上的椿树。
多年以后,主人决心把这处废土改造成到访者的乐园。假期的时候,未来的
院子
能够提供5个完整的卧室;同时设置户外可以看到山景的平台,还有露天泡池,秋千和滑梯一类设施。无论成年人或小朋友都能乐在其中。
对于场地来说,从废土到乐园,似乎是一个重返青春的过程。在Lucas Cranach the Elder 1573年的画作“Fountain of youth - 不老泉”中,矩形下沉的浴池和背景中粗粝的荒丘形成对比。这种在不确定中获取确定的形式,似乎隐喻着从悲苦到欢愉的对比和历程。结合紧张的预算,像画作中简单几何形态约束的体量,也可以扮演乐园的身份。
改造预算大概可以支撑零层 300 平方米建设规模。400 平方米的原院落由此显得过于空旷。恰恰唯一的邻居新建建筑高大宽阔,在三个维度下都充满到边界。如果设计仅仅把 300 平方米简单布置进去,似乎无法与邻里形成恰当的体量抵对关系。
设计团队决定盖一个拥有多处半室外空间和独立构造物的房子。有限面积却拥有大得多,虚张声势的体量感。各种类型的空间都被一个 4.5米 x 4.5米的基本单元来架构。它们最后变成房子或者廊子,或者“空架子”。其中场地角落的单元,为了退让邻居的采光或视线,或者弱化对附近街道的压迫感,被除掉一半。最终,那些高高低低进进出出的空间,也协助塑造了“乐园”的气氛。
主入口在场地西北角的高位。进入入口后,转折沿梯走下二层通高的主空间。由南至北,厨房,起居,餐厅一字排开。而二层入口南侧正对着的,是南部裸框架之下的户外泡池。泡池由阶梯状混凝土折梁和下面的竖向支撑来完成。竖向混凝土落下的位置恰恰是一层的厨房,以及厨房中心的火炉。我们一度想把这个建筑物命名为火锅之家,正是因为这个上面水池下面火焰的场景。
“虚张声势之家”显现简单的几何形态。如同画作“不老泉”一样,新建筑在本来混沌的场所中建造了秩序。同时外立面暴露,整个建筑物采用内保温系统。室内利用暖调的粉刷石膏作为完成面,那些突出的框架又被板材龙骨重新覆盖。同样设计利用两种材料,在室内也暗示了结构与围护体系的二元并置。也为最终的建筑情境贡献了素材。
项目图纸
▲爆炸图
▲基地模型图
▲基地示意图
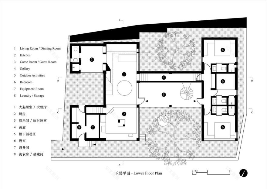
▲下层平面图
▲上层平面图
▲剖面图
▲剖面图
▲剖面图
▲剖透视
▲细部结构大样图
项目信息
建筑师: 察社办公室
面积: 305 m²
项目年份: 2024
摄影师:朱雨蒙
厂家: Dongfanggang Wood Industry, Forbo, NVC Lighting
主创设计师: 成直
设计团队: 武迪
结构设计: 高雪梅
施工方: 张友江
委托方: 刘菲
地点:
门头沟
区
中国
北京
客服
消息
收藏
下载
最近


















































