查看完整案例

收藏

下载
Белая квартира с элементами ретро в Арбатских переулках
Небольшая квартира с видом на Дом Мельникова
Автор проекта: Цуцаева Снежана, Дубровская Евгения
Объект: Белая квартира с элементами ретро в Арбатских переулках
Общая площадь: 70 кв.м.
Уникальные характеристики обьекта: осевая планировка с открытыми перспективами, вид на Дом Мельникова из окна спальни, белая палитра, чистые линии, простая геометрия, встроенная, корпусная и мягкая мебель под проект
Прихожая. Пуф и зеркало со встроенной консолью, по эскизам дизайнеров. Бра, Nemo.
Прихожая в квартире небольшая. Изогнутая стена мягко приглашает пройти вправо в парадные помещения, незаметно минуя гостевой санузел.
Гостиная оформлена в белом цвете. Использована краска, Tikkurila, оттенок F485.
Квартира в эстетике авангарда для молодого человека. Интерьер гостиной.
Гостиную и кухню разделяет широкий портал винного цвета. Он задает тон парадности пространства, а двери, оформленные со стеклом, добавляют простора и только условно отделяют кухню от гостиной. Напольный светильник, Швеция, винтаж.
Гостиная с белыми стенами. Стул, Vitra. Кресло, Porro. Столик, Woud, коллекция Sentrum. Вышивка на стене – Александр Браулов.
Почти вся мебель в квартире сделана на заказ. ТВ-тумба, диван, журнальный столик, на заказ, по эскизам дизайнеров. Лампа, &Tradition.
Много окон с низкими подоконниками позволили обыграть их для места для отдыха или системы хранения. Например, окна гостиной объединены длинной лавкой, где можно разместить большую компания.
Портал из прихожей в гостиную был совсем невысокий и увеличить его не было возможности, так как стена несущая. Тут авторы проекта использовали архитектурный прием, который «добавил высоты»: выстроили систему хранения в цвет стен по обеим сторонам портала, обрамив ею низкий проем.
Квартира с видом на Дом Мельникова. Гостиная-кухня со стойкой и баром.
Кухня. От обеденного стола отказались в пользу эффектного острова, плюс есть места чтобы удобно разместиться на подоконнике большой компанией. Барные стулья, Fritz Hansen. Барный табурет, Magis.
Кухня и остров изготовлены специально под проект. Люстра над островом, Louis Poulsen.
Кухня. Шкаф-бар с фасадами из массива дуба с мелким ритмом квадратов сделан на заказ. Внутри он выкрашен в нежно-лимонный цвет. Дверки складываются по принципу раскладушки, можно открыть отдельно верхние или нижние створки. И в этом тоже есть смысл – так как кухня небольшая, даже при большом застолье, баром пользоваться удобно.
Кухня также оформлена белым цветом. Кухонный гарнитур сделан на заказ. Фартук – металлическая панель, за которой размещена система хранения. Люстра над островом, Louis Poulsen.
Белая квартира в эстетике авангарда для молодого человека. Вид из кухни на гостиную. Свет, Louis Poulsen.
Вид из прихожей на приватную часть со спальней и мастер-ванной. Пространство квартиры нанизано на центральную ось вдоль фасадных окон.
Интерьер спальни. Дверь в ванную комнату спрятана среди встроенных шкафов в цвет стен. На потолке – датская винтажная лампа. Кровать изготовлена по эскизам на российском производстве.
Фрагмент спальни. Кровать изготовлена на заказ. Изголовье со встроенными тумбочками имеет лаконичную форму. Ручки на тумбочках одновременно служат местом для хранения книг.
Главная ценность квартиры – вид на Дом Мельникова из спальни.
Проход из спальни в ванную комнату. Дверь-невидимка спрятана между шкафами до потолка.
Белая квартира в эстетике авангарда для молодого человека. Хозяйский санузел с эргономичной мебелью.
Белая квартира в эстетике авангарда для молодого человека. Душевая в хозяйском санузле. Отделка стен в ванной и оконных откосов в гостиной керамической плиткой с мелким квадратом не спроста: она перекликается с ритмом окон Дома Мельникова.
Небольшая квартира с видом на Дом Мельникова. Гостевой санузел.
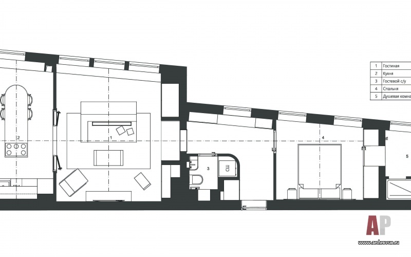
План маленькой двухкомнатной квартиры в новом доме на Арбате.
Концепция
Заказчик SE design buro (дизайнеры Снежана Цуцаева и Евгения Дубровская) приобрел эту квартиру едва ли не только ради одного лишь вида на дом-мастерскую Константина Мельникова. И для него, и для дизайнеров она стала чистым экспериментом, вдохновленным знаменитым памятником архитектуры.
Квартира площадью 70 кв. м расположена в одном из корпусов клубного дома Artisan. Молодому человеку она понравилась своей локацией (тихие Арбатские переулки), размером и видом из окна спальни на шедевр конструктивизма. Именно памятник архитектуры 1920-х и вдохновил дизайнеров на проект: с чистой архитектурной формой, геометрическими объемами, тотальным белым цветом, контрастирующим со строгой и ритмичной отделкой дверей, оконных рам, бара. В итоге получился интерьер вне времени: эргономичный, с элементами сканди и ретро и эстетикой русского авангарда.
Планировка
Квартира имеет форму неправильной трапеции, сильно вытянутой по фасаду. Такой исходник, да еще и небольшой площади увеличивает риск получить интерьер замкнутый и тесный. План от застройщика заказчику совсем не подошел, и дизайнеры разработали проект в традициях классической школы, с центральной анфиладой, которая объединяет все помещения: от гостиной до санузла в спальне.
Осевое построение позволило максимально раскрыть пространство, впустить воздух, свет (плюсом стало большое количество окон, пусть и по одной стене) и создать идеальное жилье для активной жизни в центре города.
От входа квартира делится на 2 части: правая часть – приватная с одной спальней и просторной ванной комнатой, левая часть – парадная с гостиной и кухней-столовой.
Прихожая в квартире небольшая, изогнутая стена мягко приглашает пройти вправо в парадные помещения, незаметно минуя гостевой санузел. Гостиную и кухню разделяет широкий портал винного цвета. Он задает тон парадности пространства, а двери, оформленные со стеклом, добавляют простора и только условно отделяют кухню от гостиной.
Портал из прихожей в гостиную был совсем невысокий и увеличить его не было возможности, так как стена несущая. Тут авторы проекта использовали архитектурный прием, который «добавил высоты»: выстроили систему хранения в цвет стен по обеим сторонам портала, обрамив ею низкий проем.
Декор
Декоративное наполнение квартиры – реверанс в сторону архитектуры дома-мастерской Константина Мельникова и принципов проектирования жилых пространств русскими архитекторами-конструктивистами 1920-х годов. Чистые линии, простые формы, белый монохром, обилие встроенных элементов и минимум мебели с максимумом функционала
лежат в основе дизайна квартиры.
Кухня с островом, лаконичный двусторонний диван, функциональные низкие подоконники, кухня и остров сделаны специально под проект. «Наша гордость и любовь — это шкаф-бар с фасадами из массива дуба с мелким ритмом квадратов, внутри выкрашенный в нежно-лимонный цвет. Дверки складываются по принципу раскладушки, можно открыть отдельно верхние или нижние створки. И в этом тоже есть смысл – так как кухня небольшая, даже при большом застолье, баром пользоваться удобно», - отмечают авторы проекта.
Все предметы в интерьере оптимальны для маленьких квартир: имеют несколько функций, компактные размеры, обтекаемые формы (например, раковины), чтобы не задевать при движении. Важную роль здесь имеют детали – винтажные люстры, предметный декор в стилистике авангарда. И даже отделка оконных откосов керамической плиткой в мелкий квадрат не спроста: она перекликается с ритмом окон Дома Мельникова.
Комплектация объекта
Строительные и отделочные материалы и изделия
Изделия из дерева, двери, компания MV Production
Финишная отделка стен, краска Tikkurila
Инженерная доска, поставщик «Хороший пол»
Керамогранит CE.SI
Свет декоративный &Tradition, Louis Poulsen, Nemo, Michael Anastassiades, Danish Design, Pholc; винтаж
Свет встроенный StellaNova
Керамика WoodzenArt, Manner & Matter, Atelier Leto, Sand Vintage
Сантехника Tece, Blanco, полотенцесушитель Margaroli
Мебель
Прихожая пуф и зеркало на заказ, по эскизам дизайнеров
Гостиная стул Vitra, кресло Porro, столик Woud (коллекция Sentrum); ТВ-тумба, диван, журнальный столик, на заказ, по эскизам дизайнеров
Кухня-столовая барные стулья Fritz Hansen, барный табурет Magis, кухня и бар из массива дуба, на заказ, по эскизам дизайнеров
Спальня кровать, шпон дуба, на заказ, по эскизам дизайнеров; встроенные шкафы, на заказ, по эскизам дизайнера
Мебель для санузлов на заказ, по эскизам дизайнера, тумба и раковина из искусственного камня на заказ, по эскизам дизайнера
Встроенная и корпусная мебель из дерева, изделия из искусственного камня на заказ – изготовление MV Production
Мягкая мебель на заказ – изготовление Tseh Group
Оборудование
Оборудование кухни, встроенная техника Miele
客服
消息
收藏
下载
最近



























