查看完整案例

收藏

下载
Reviving Beijing Railway Station: A Stunning Transformation
Project Information
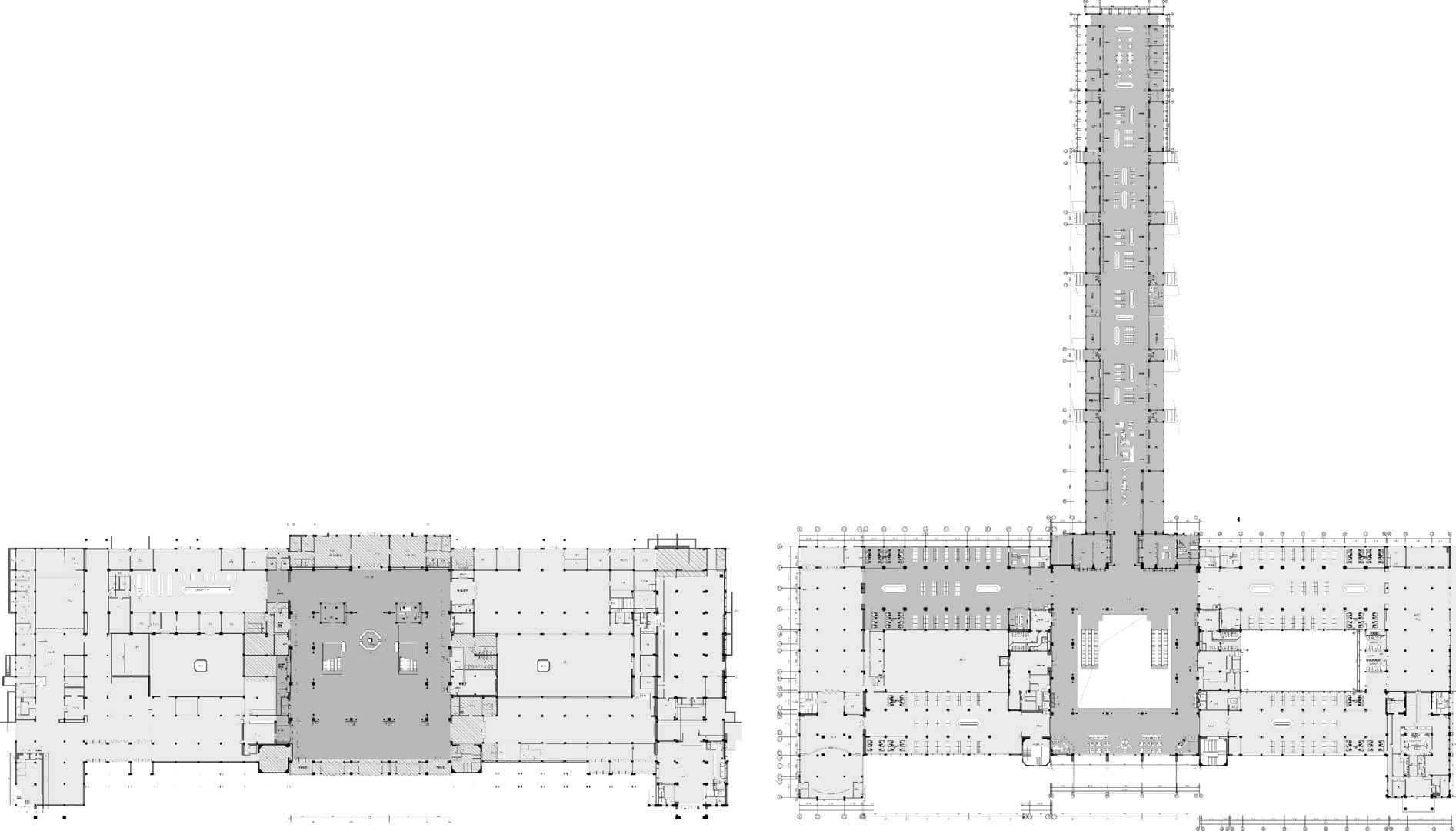
Project Name: The Interior Renovation of Beijing Railway Station
Acknowledgment: China Railway Beijing Bureau Corporation Limited
Project Location: Beijing, China
Project Area: 10,000 square meters
Interior Design: WIT Design & Research
Design Team: Luo Zhenhua, Zhao Gongpu, Niu Qianxuan, Tao Rui, Yang Lin, Zhao Liang, Chen Wenyi, Zhang Yaqi
Architectural Collaboration: Fangdao Architecture & Finger Mark
Structural Consultant: Cao Yuanping & Finger Mark
Mechanical and Electrical Design: Liu Jun, Liang Liang & Finger Mark
Facade Design: Shidai Biaogao
Graphic Consultant: Jizhi Pinpai
Lighting Design: PROL
Oil Painting: Chen Ke
Photography Team: Simon & TOPIA
Video Editing: Bai Yuxia & Zhongxiaye
Copywriting and Planning: NARJEELING
Project Planning: Le Brand Strategy Agency
Beijing Railway Station, a remarkable architectural gem from the 1950s, has undergone a remarkable transformation thanks to the visionary work of WIT Design & Research. This project has revitalized the Central Hall, the Fourth Waiting Room, and the Central Waiting Room, breathing new life into this iconic transportation hub. The renovation isn’t just about aesthetics; it’s a testament to the enduring spirit of China and its commitment to a brighter future.
A Historical Marvel
Built in 1959 under the watchful eye of Premier Zhou Enlai, Beijing Railway Station was an exemplar of top - tier passenger rail stations. In 2019, it was officially designated as a listed building by the National Key Cultural Relics Protection Unit. Its grandeur and intricate details have captured the imagination of both locals and visitors. As mainstream media once noted, the Chinese people’s demand for architecture goes beyond mere material satisfaction; it’s a spiritual longing.
Reviving the Central Waiting Room
One of the central questions during the renovation was whether Beijing Railway Station could meet the spiritual needs of the people. The answer lies in the station’s potential to become a warm calling card in the bustling international metropolis, reaching the hearts of all who pass through.
A Nostalgic Journey in the Fourth Waiting Room
The renovation has not only preserved history but also restored it. The leather seats, now a vibrant green reminiscent of the 1950s, invoke nostalgia and a sense of tradition. The addition of nostalgic loop seats enhances the overall atmosphere, connecting the present to the past.
Enhancing the Central Hall
The renovation of Beijing Railway Station goes beyond aesthetics; it enhances the overall traveler experience. As we emerge from a challenging pandemic era, this architectural design reinforces confidence and belief. Six months of design work culminated in a comprehensive interior renovation completed within a mere three months. The improved space bolsters travel efficiency, commercial services, and cultural experiences. It seamlessly combines the station’s rich history with contemporary functionality.
A Journey to Beauty
Beijing Railway Station sees an average of 60,000 passengers daily. Over time, it had become somewhat chaotic, with disjointed facilities, confusing signage, and an absence of systematic lighting design. This did not befit its prominent status. Drawing inspiration from New York’s Grand Central Terminal, the transformation has made Beijing Railway Station an architectural masterpiece, successfully integrating history with modernity.
Conclusion
Today, Beijing Railway Station stands as a beacon of beauty and functionality, a warm calling card of the city. This transformative project, carried out by WIT Design & Research, has rekindled the station’s historical charm and adapted it for the contemporary traveler. This architectural marvel is now ready to take its place among the world’s most beautiful railway stations.
客服
消息
收藏
下载
最近

























