查看完整案例


收藏

下载
场地规划在很多情况下,场地条件决定了建筑物的方向。东山教堂也是如此,那里有长三角形状的土地.我们把Chaple放在土地的右边,在那里我们可以得到最大的体积。停车场在左边。
Site plan In many cases, site conditions determine the direction of the building. The same was true of the Dongsan churches, which had long-triangled shaped land. We put the chaple on the right side of the land where we can get the largest volume. The parking lot is on the left.
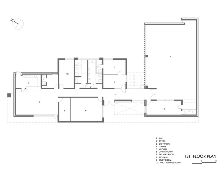
First Floor Plan
一层平面图
我们将建筑物分散在一段很长的土地上,正门设置在建筑物的中心,以有效地配置人流。在建筑物的后面是一个舒适的花园。
We spread the building over a long stretch of land The main entrance is set in the center of the building to configure the flow of human movement efficiently. On the back side of the building is a cozy garden.
Courtesy of Oh Jongsang
吴宗生
在长而低质量的一侧,附加了一座高而纤细的塔。当它比中间箱更清晰时,它的形式对比在视觉上是有趣的。交叉塔位于右侧大教堂的对面,因此它起到平衡整体形状的作用。
external for On one side of the long and low mass, a tall, slender tower was attached .The contrast of the form is visually fun when it is clearer than in the middle case. The cross tower is located on the opposite side of the high volume of the chapel on the right, so it serves as a counterbalance that balances the overall shape.
Courtesy of Oh Jongsang
吴宗生
虽然整个表单是一个简单的表单,它包含了三个或四个基本卷,但几个层是通过挖掘立方体块并将其清空而成的。这些层被用作设备,包括有用的外部空间,如檐篷、入口等。以及通过深度感获得视觉愉悦的设备。
Although the overall form is a simple form that combines three or four basic volumes, several layers were made by digging the lump of cube and empty out it. Such layers are used as the equipment including useful external space, such as canopy, entrance, etc. and the equipment of visual pleasure through the sense of depth.
Courtesy of Oh Jongsang
吴宗生
内部平面内,所有的空间都放置在一个走廊的前、后、左、右。它被迫形成一条长长的走廊,以保证人流在长平面上流动。但走廊不仅仅是一条通道。有时窄,有时宽,它也是礼拜堂前面的门厅和前厅。花园布置在走廊的左右两侧,并打开了一扇大窗户。走廊不是一条狭窄、闷热的通道,而是一条通向Chaple的宽敞通道,感受着大自然的气息。
internal plane In the inner plane, all the spaces is placed in front, back, left and right of one corridor. It is forced to form a long corridor to secure the flow of human movement in a long plane. But the corridors don’t just serve as a passageway. Sometimes narrow and sometimes wide, It also serves as an entrance hall and a front hall in front of the chapel. The garden is arranged on the left and right sides of the corridor and a large window is opened. Corridor is not a narrow, stuffy passage, but a plentiful access space leading to the chaple, feeling the nature.
Courtesy of Oh Jongsang
吴宗生
材料外部材料简单设置白色灰泥和红砖。考虑到最初计划中的混凝土外露,考虑到成本,我们将其改为白色灰泥。裸露混凝土表面的固体味道减少,但白色和红色的结合是令人耳目一新的。红砖是一种室内材料,用来维持环境,促进建筑的经济可行性。
materials External materials are simply set with white STUCCO and red bricks. Considering the exposure concrete finish at the initial plan, we changed it to white STUCCO considering the cost. Solid taste of exposed concrete finish is lessen, but the combination of white and red is refreshing. Red brick is used as an interior material to maintain the context and to promote the economic feasibility of the construction.
Courtesy of Oh Jongsang
吴宗生
Architects Oh Jongsang
Location 47-3 Jinam-ri, Janghowon-eup, Icheon, Gyeonggi-do, South Korea
Area 470.0 m2
Project Year 2018
Category Churches
Manufacturers Loading...
客服
消息
收藏
下载
最近
























