查看完整案例

收藏

下载
Yale Students Propose Alternative Model That Introduces Food Processes Into The Home
Yale Students Propose Alternative Model That Introduces Food Processes Into The Home
Beds & Beds project by students of Yale School of Architecture, rethinks the relationship between housing and food systems.
Project: Beds & Beds
Location:
Auroville,
India
Design Team: Alex Pineda, Camille Chabrol, Thomas Mahon
University: Yale School of Architecture
Typology:
Housing
Images: Alex Pineda, Camille Chabrol, Thomas Mahon
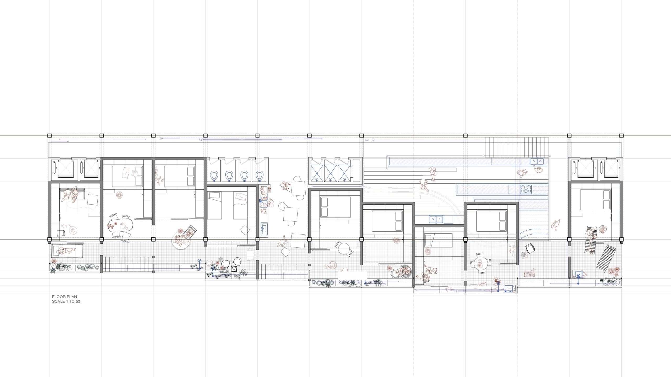
Beds & Beds project by Alex Pineda, Camille Chabrol, Thomas Mahon of Yale School of Architecture, project rethinks the relationship between housing and food systems, across multiple scales
of processing and production. Compact bedroom units allow for space to be given to a ‘Food Commons’. Bedrooms form clusters, creating mid-scaled social units. The clusters reach out to access a thickened ‘growing facade.’ In this way, the traditional housing ‘unit’ is expanded to encapsulate a bedroom, a piece of the facade, and participation in the Food Commons.
Project Goals
The site for the projects is in Auroville, a model city for the future founded in 1968, in Tamil Nadu,
India
. The studio calls for the design of ecological urban co-housing prototypes in a high-density
context. The team selected a narrow, 11-story plot within the “Line of Goodwill” masterplan, a compact residential area connected by a continuous elevated plinth and interior ramps. The team’s design rethinks the relationship between housing and food, across multiple scales of processing and production, in response to problems within the current food systems. While industrialized
increases crop yields, it destroys ecosystems. While domestic labor around food is relieved by moving outside of the home, other forms of labor exploitation, poor food quality, and increased isolation between individuals results. The design prototype is intended to bring together housing and the activities around food to imagine an alternative.
Compact bedroom units allow for space to be given to a ‘commons’ based around food processes and production: a ‘Food Commons.’ Bedrooms shift around this Food Commons to form clusters, creating mid-scaled social units. These clusters then reach out to access a thickened ‘growing facade.’ In this way, the
traditional
housing ‘unit’ is expanded to encapsulate a bedroom, a piece of the
facade
, and participation in the Food Commons.
Moving diagonally through the building, weaving in out of the facade, down through the podium and continuing out to the cultivated fields in front, the Food Commons circulates people, food,
water, and waste. This blended space is developed from a series of hybrid social and productive typologies. A kitchen / auditorium, a pickling area / game room, a mushroom-farm / children play-space, a fish-farm /
library
and a
greenhouse
/ bathhouse collapse together processing, production and social spaces.
Ecology of the facade
These communal programs allow for the development of circularity and the creation of a new ecology that continues the legacy of the Auroville project. The dense development is leveraged
as a source of greywater to be reintegrated into food growing activities, while gradients of soil and water are mediated through the facade and raised podium. Oriented to the south, the
modular system of the facade supports anything that needs sunlight: planters, hanging laundry, sun drying, or a daybed. Embedded water access points allow sinks and kitchenettes to plug
into the facade. The facade also hosts a secondary system of circulation which connects groupings of units vertically to form mid-scale clusters. The programmatic and formal specificity
of the Food Commons is balanced by the flexibility of the facade. While the Food Commons presents a public thoroughfare to Auroville, the facade accommodates a scale suited to the
changing needs of individuals. In this way, we rethink the binary between “public” and “private” as well as the gradient between food as social activity and food as labor.
Ultimately, the project poses an alternative model that introduces food processes into the home, exhibiting daily rituals around growing, cooking, and eating as avenues to explore collective living.
Project Images
客服
消息
收藏
下载
最近


















