查看完整案例

收藏

下载
Midden Studio | Artist’s Cabin by Studio Weave
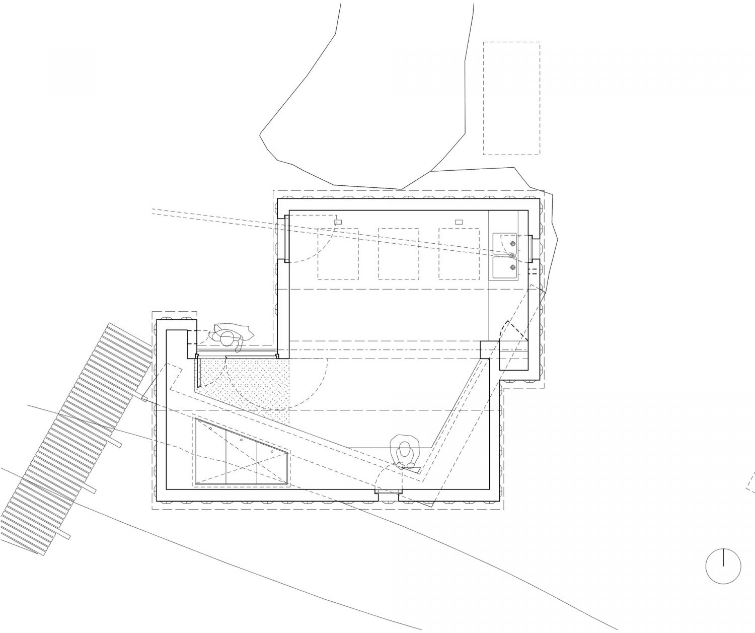
Studio Weave has designed an artist’s cabin called Midden Studio. Perched by a stream on the west coast of Scotland, the spiky zinc-clad cabin is structurally designed to withstand the extreme conditions of the site.
The building functions as an artist’s studio and nestles into the coastal landscape – an important component of the brief was to reflect the artist’s lifelong connection to the site and that much of their practice is associated with the place.
Recalling simultaneously the vernacular agricultural buildings nearby, the granite rocks that punctuate the landscape, and the flourish of the ‘Scottish Baronial’ style, the new studio intends to silently immerse itself in this ancient landscape, only revealing its surreal details on closer inspection. Details such as the cantilever which apparently floats over the burn, the uncanny twin gables and the echoed stone mouldings.
— Studio Weave
Models and Drawings:
Photographs by Johnny Barrington
Studio Weave
客服
消息
收藏
下载
最近


























