查看完整案例

收藏

下载
Необычный дизайн кинотеатра от Csutoras & Liando и Kineforum
Необычный дизайн кинотеатра в Индонезии
Kineforum Misbar – временный необычный кинотеатр под открытым небом, построенный в 2013 в Джакарте во время международного фестиваля современного искусства. Работали над проектом архитектурное бюро Csutoras & Liando и некоммерческая организация Kineforum, которая управляет единственным кинотеатром в городе, транслирующим местные артхаусные и независимые фильмы.
Кинотеатр под открытым небом Kineforum Misbar
Группа поставила перед собой задачу создать место, где люди всех поколений, которые не могут позволить себе места в кинотеатрах в больших развлекательных центрах, смогут посмотреть кино на большом экране.
Проект получил название Kineforum Misbar, и в итоге был спроектирован недорогой кинотеатр под открытым небом. В декабре 2013 этот кинотеатр транслировал фильмы совершенно бесплатно.
Ограждение кинотеатра Kineforum Misbar
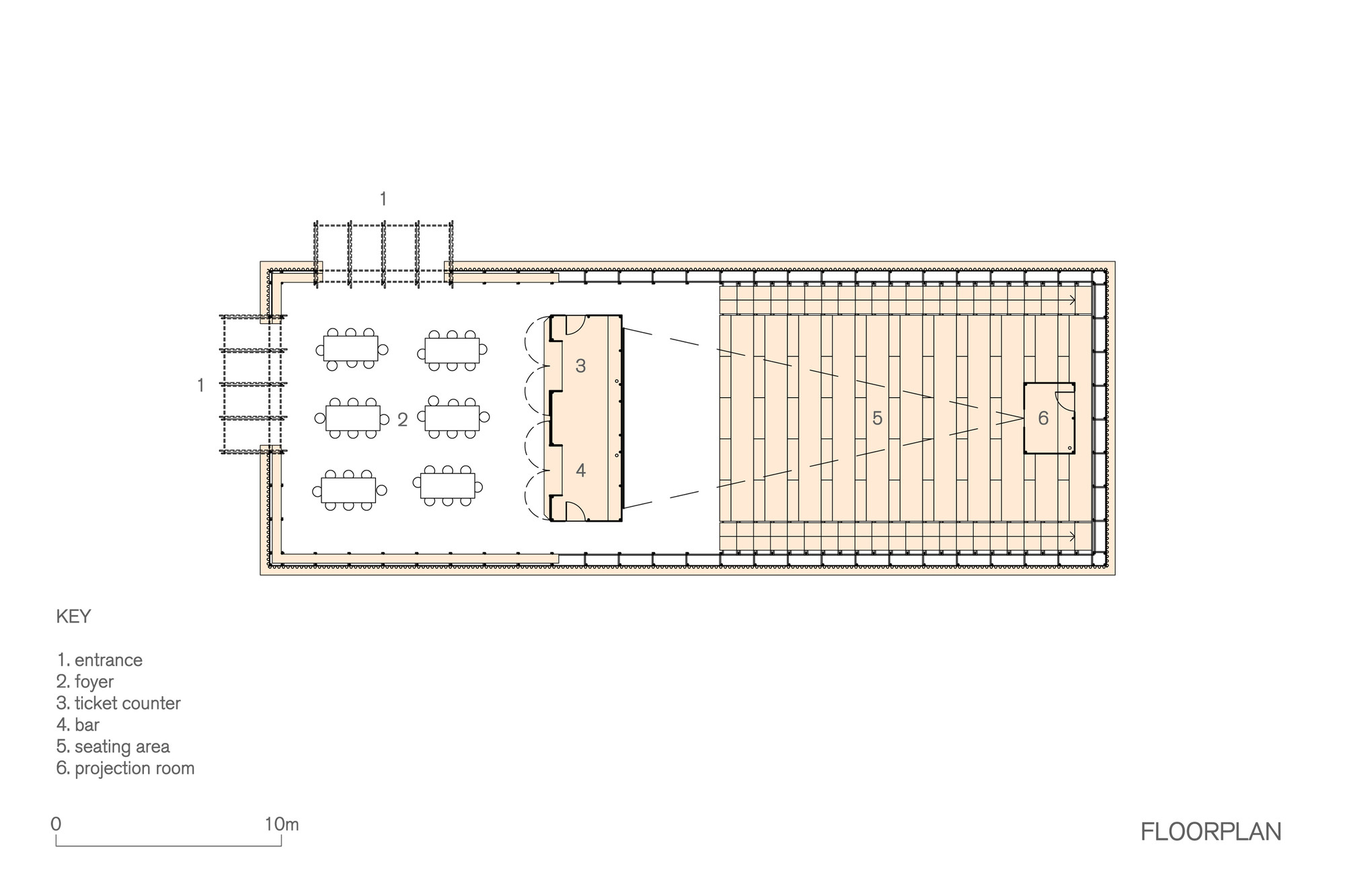
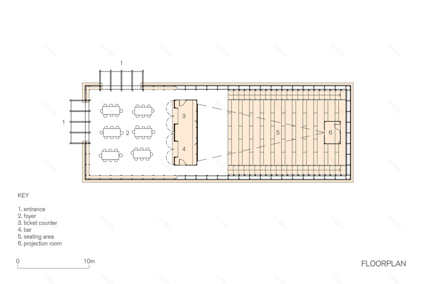
Kineforum Misbar был расположен в центре Джакарты рядом с национальным монументом Индонезии. Территорию конструкции площадью 38х14 м окружало шестиметровое ограждение из полупрозрачной ткани.
В самом кинотеатре расположен большой вестибюль и кинозал. В вестибюле стоит касса для покупки билетов и буфет. В кинотеатре есть все необходимое для просмотра: профессиональный киноэкран, цифровой проектор и система объёмного звучания.
Ограждение кинотеатра Kineforum Misbar
Буфет в кинотеатре
План кинотеатра
По всей площади кинотеатра расставлены скамейки. Днём это уютное место для встреч и посиделок, откуда можно понаблюдать за футбольной игрой на мини-площадке, а ночью под открытым небом транслируют интересные фильмы.
Мини-площадка для игры в футбол на территории кинотеатра
Кинозал под открытым небом
Кинотеатр соорудили за 10 дней из недорогих материалов, которые легко переделать и быстро собрать. Для тканевого ограждения была использована полупрозрачная ткань, которую обычно применяют в сельском хозяйстве. Пол и стены сделали из фанеры.
Стены и пол сделаны из фанеры
Стены также украсили яркими абстрактными светящимися изображениями, которые показывали направление посетителям. Абажуры для светильников были вырезаны из тонких алюминиевых листов и изнутри покрашены белым цветом, чтобы равномерно отражать свет.
Данный проект поддержали Художественный совет и Департамент туризма культуры Джакарты.
Кинотеатр Kineforum Misbar днём
客服
消息
收藏
下载
最近























