查看完整案例

收藏

下载
Residential care-home for the elderly by AZC
27/05/2015
[Paris] France
Residential care-home for the elderly by AZC
Atelier Zündel Cristea, with their main office in París have designed a residential care-home for the elderly in París.
In the plot occupied by the hospital Notre-Dame de Bon Secours, after the demolition of part of the buildings, the office
AZC
has designed a new residence and home care for older people. The project has involved the reorganization of the plot and communications between different access points. A six-storey building whose volume is divided in half by a level of common uses with a large area dedicated to an outdoor terrace on which to enjoy the sun.
Atelier Zündel Cristea
The project, which involved a comprehensive rethink of the whole site, began by considering its organisation. First, the access routes and thoroughfares across the site were revised. The main entrance at 68 Rue des Plantes has been maintained, but a secondary entrance on Rue Giordano Bruno has been added. Between these two access points, pedestrian and vehicular circulation has been reorganised, separated by category, and made secure.
The two major axes through the site have been reinforced by careful landscaping. The principal east–west axis linking the main entrance to the ‘big garden’ has been redefined by the insertion of the new building, set back, and by continuous paving that affirms the ensemble. The ‘big garden’ now comprises a park, allotments and a garden for the creche. The new axes are accessible for those with reduced mobility and have been resurfaced. This redevelopment of the site provides residents with the opportunity to sit in the sun, get a breath of fresh air, and enjoy the greenery. The environment promotes the use of these spaces by the residents. They have been carefully orientated, with open views and plenty of light.
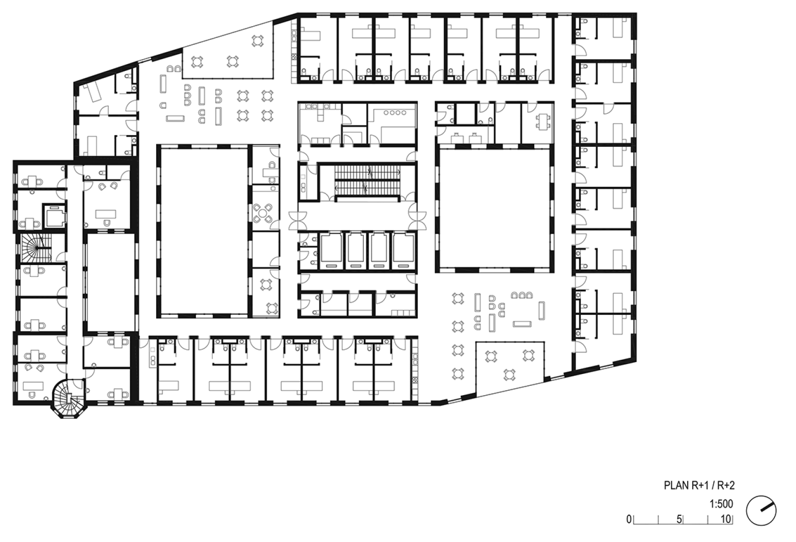
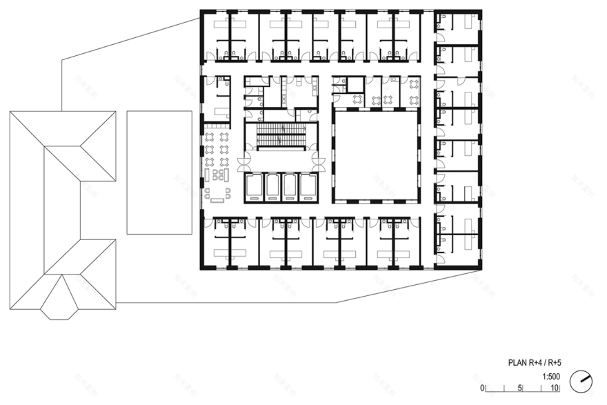
AZC have designed a six-storey building that adjoins the ‘chateau’. Its wide floors are arranged around two internal planted courtyards, its domestic architecture deliberately distancing it from the functional image of a hospital. The ground floor is reserved for entrance areas, public spaces and the creche. The residential units are found on the first, second, fourth and fifth floors. They are distributed around the perimeter of the building. Residents’ circulation is arranged in a figure-of-eight around the courtyards, at the heart of the buildings, with gentle natural lighting for comfort and a feeling of security.
Whereas communal areas in this type of building are often found on the ground floor, AZC has put them in the middle of the building, on the third floor. Indeed the third floor is a horizontal break in the shape of the project. Above it, floors four and five have a smaller footprint than the three lower floors, enabling the creation of broad terraces. It also creates a break in the functions of the building, with the floor reserved for group activities, which are held in the large, glazed spaces that give onto the internal gardens. Covered terraces, like large intermediary loggias, are also found on the first two floors. The ground floor is freed up for maximum transparency towards the creche garden. This allows light into the terraces and patios, opening broad views of the city and the landscaped areas.
Residential accommodation is broken up into units of 12 to 14 beds. This scale enables not only efficient organisation and passage, but also improves working conditions for the carers and the daily life of the residents. Each unit comprises an open kitchen, a dining room and a sitting-room giving onto a covered terrace.
AZC Architectes.
Lead architects.- Grégoire Zündel and Irina Cristea, Nicolas Souchko, Mario Russo.
Design studies.- Elena Melzoba.
Site.- Célia Horn, Alberto Gatti.
General engineering consultants.- Igrec Ingénierie.
Landscape architect.- Atelier Villes et Paysages.
Facade engineers.- VS-A.
Acoustic engineers.- Acoustique & Conseil.
Project type.- Public works.
Footprint.- 27,000 m².
Useable surface area.- 8,460 m².
Circulation: 3,312 m².
Competition.- 2009.
Work on site begins.- July 2012.
Completion dates.- Phase 1, November 2014; Phase 2, 2017.
Notre-Dame de Bon Secours, 68 rue des Plantes 75014 Paris.
Approx € 28.6M.
Sergio Grazia.
Grégoire Zündel-Irina Cristea. AZC Architectes
AZC Architectes
is an architecture practice founded in 2001 by
Irina Cristea
and
Grégoire Zündel
based in Paris, France. The studio was born out of the idea that the exploration of architecture and its techniques could help to improve the built environment. Their interest does not lie in the invention of concepts, they have always tried to realise buildings for real life needs.
Through competitions and direct commissions, the office has worked on more than a hundred projects of varied scales and uses. Most of its built projects are intended for a wider public; sports facilities, conference halls, office and residential buildings, some of which very specifically for vulnerable populations. They also have eight metro stations under construction, four of them in Paris and four in Rennes and studies for a new station in Lyon.
Most of their work has been published, exhibited, sometimes awarded and they have often been given the opportunity to speak on issues of sustainability, diversity and innovative techniques that illustrate all their commitments.
Irina Cristea
, born in Bucharest, graduated from ENSA Strasbourg in 1995 and studied architecture at London South Bank University and Bucharest Ion Mincu institute.
Grégoire Zündel
, born in Colmar, graduated from ENSA Strasbourg in 1995. He is a visiting professor at ENSA Strasbourg from 2004-2006.
客服
消息
收藏
下载
最近
























